Pronájem bytu 2+kk, Praha - Záběhlice, Kosatcová, 55 m2

Kosatcová, Praha, Záběhlice

20 000 Kč
/za měsíc
provize 10.000,-Kč, vratná kauce 20.000,-Kč, měsíční zálohová platba (voda, plyn, elektřina, internet, odpady) 4.500,-Kč
Získejte výhodnou HYPOTÉKU Chci hypotéku

Parametry bytu

AdresaKosatcová, Praha, Záběhlice
IDDS-517
StavbaCihlová
Stav objektuVelmi dobrý
Patro2. z 2
VybavenoČástečně
VlastnictvíOsobní
Užitná plocha55 m2
Podlahová plocha55 m2
Třída energetické náročnostiG - Mimořádně nehospodárná
Elektřina230V
PlynPlynovod
OdpadVeřejná kanalizace
TopeníLokální plynové
KomunikaceAsfaltová
TelekomunikaceInternet
DopravaVlak, Dálnice, Silnice, MHD, Autobus
VodaVodovod
Topné tělesoWAW, Infrapanel
Zdroj topeníWAW, Infrapanel
Sklep
Bezbarierový přístup
Parkování

Origo partneři v Praze 10

Stěhovací služby

Výkup a prodej starého nábytku

Popis

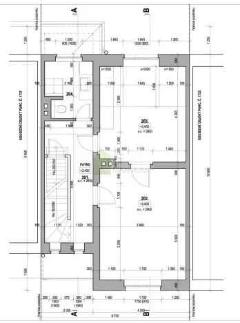
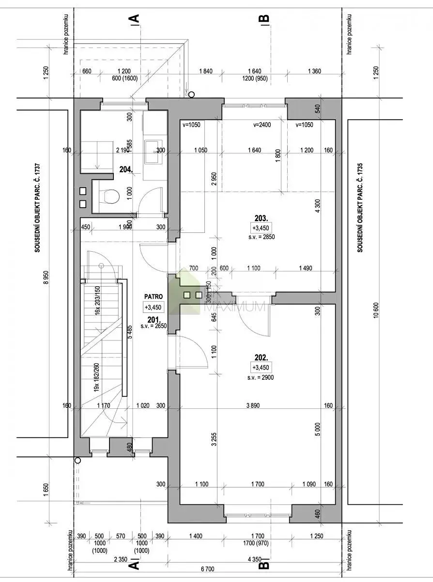
Ve velice příjemné klidné části Zahradního Města nabízíme k pronájmu na cca 1-2 roky nadčasově zrekonstruovaný a v podstatě zařízený (vybavení viz fota) byt ve 2. nadzemním podlaží řadového rodinného domu. Plocha cca 55 m2, dispozice viz. plánek, příslušenstvím je půdní prostor a menší sklep v suterénu domu. Ohřev vody elektrickým boilerem, vytápění obytných místností WAW, koupelny s toaletou elektrickým infrapanelem. V bytě jsou nové rozvody vody a elektřiny, repasované dveře, podlahy dřevěné, terazzo a vinyl. Dům není zateplený, okna jsou původní špaletová. Místo je velice příjemné pro bydlení, ulice je tichá, v těsné blízkosti je veškerá občanská vybavenost (obchody, restaurace, kavárna, parky, lékaři, tenisové kurty, fitness a jiná sportoviště,..). Vynikající dopravní dostupnost veřejnou dopravou - zastávka tramvají do centra a autobusů k metru A či C cca 7 min chůze, vlaku Praha - Zahradní Město do 10min chůze. Parkování na ulici před domem. Aktuální celková měsíční zálohová platba (plyn, elektřina, vodné, odpady a internet) 4.500,-Kč. Při delším pronájmu přepis plynu a elektřiny na nájemce. Minimální délka pronájmu 6 měsíců. Majitel si vyhrazuje právo výběru nájemce dle vlastních kritérií. Makléřka sdělí více informací a zajistí prohlídku.

Makléř

Máte zájem o tento byt?

Tímto, v souladu s nařízením Evropského parlamentu a Rady (EU) 2016/679, v platném znění, prohlašuji, že mi je alespoň 16 let a uděluji tak svůj souhlas se zpracováním zadaných údajů (jméno, telefon, e-mail, ip adresa) společnosti B3 Technology, s.r.o., IČ: 07330600, se sídlem Novostavby 126/23, 435 11 Lom (správce dat), za účelem předání dotazu z tohoto formuláře Vámi vybranému inzerentovi a zpětného kontaktování mé osoby. Osobní údaje bude správce zpracovávat manuálně i automaticky přímo prostřednictvím svých zaměstnanců. Informace předané tímto formulářem budou uloženy v databázi správce maximálně po dobu 10 let. Odvolání souhlasu s uložením a zpracováním poskytnutých dat lze e-mailem na info@origo-reality.cz. V případě podezření na neoprávněné použití Vámi poskytnutých údajů máte právo předat podnět k šetření Úřadu pro ochranu osobních údajů. Více informací
Chystáte se prodat nemovitost?
Pomůžeme Vám!