Pronájem rodinného domu, Vysokov, 196 m2 (ID: 1943730)

Vysokov

45 000 Kč
/za měsíc
Získejte výhodnou HYPOTÉKU Chci hypotéku

Parametry domu

AdresaVysokov
ID929861
StavbaCihlová
Stav objektuVelmi dobrý
VybavenoČástečně
Druh objektuSamostatný
Lokalita objektuCentrum obce
VlastnictvíOsobní
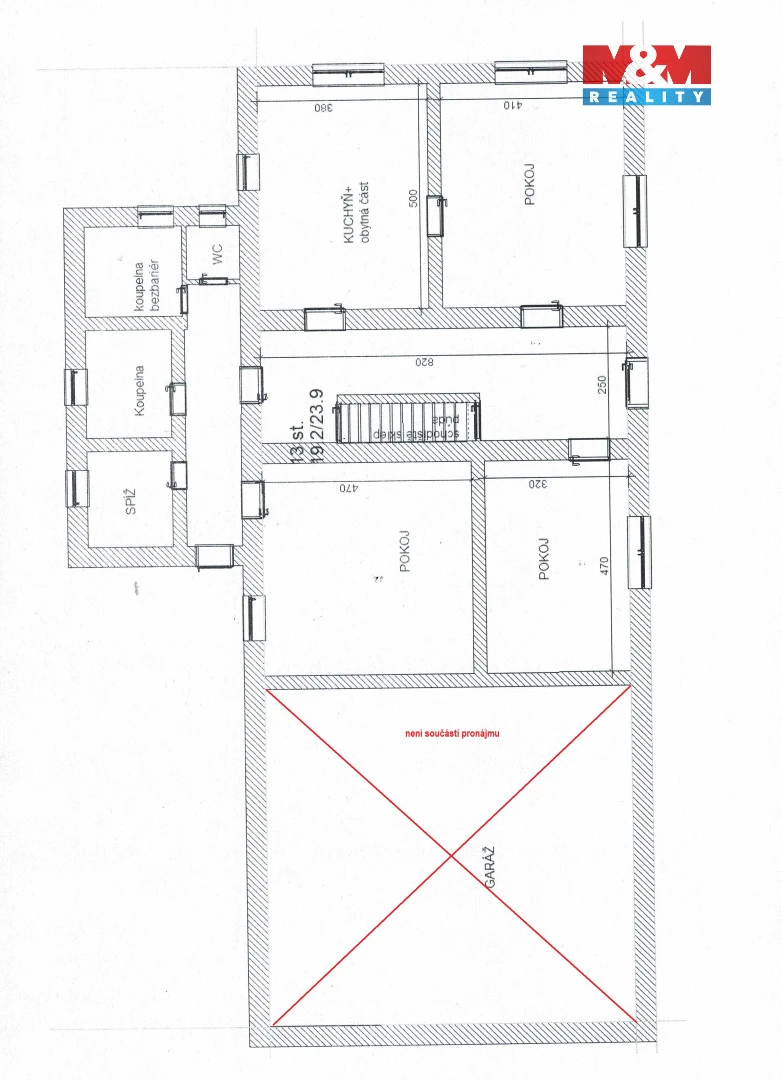
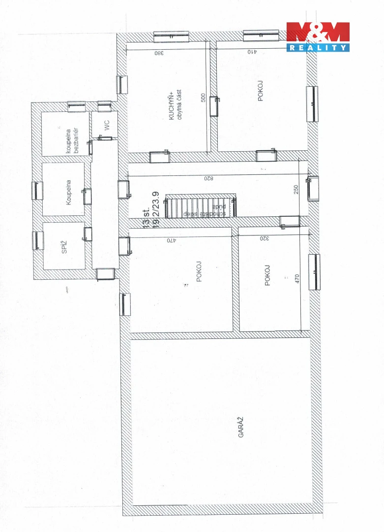
Užitná plocha196 m2
Plocha pozemku1439 m2

Origo partneři v Vysokově

Popis

Nabízíme pronájem prostorného rodinného domu v klidné části obce Vysokov, Náchod. Tento samostatný cihlový dům o užitné ploše 196 m² je ideální pro ubytování 10 až 15 osob, což je ideální pro firmy hledající klidné a pohodlné zázemí pro své zaměstnance. Dům má dvě nadzemní podlaží, jedno podzemní podlaží a celkem pět místností. Nachází se na rozlehlém pozemku o velikosti 1439 m², který zahrnuje zahradu a pergolu pro relaxaci a volnočasové aktivity. Nemovitost je v centru obce, s budoucím obchvatem Náchoda v blízkosti, což zajišťuje výbornou dopravní dostupnost. Neváhejte nás kontaktovat pro více informací či sjednání prohlídky.

Makléř

Máte zájem o tento dům?

Tímto, v souladu s nařízením Evropského parlamentu a Rady (EU) 2016/679, v platném znění, prohlašuji, že mi je alespoň 16 let a uděluji tak svůj souhlas se zpracováním zadaných údajů (jméno, telefon, e-mail, ip adresa) společnosti B3 Technology, s.r.o., IČ: 07330600, se sídlem Novostavby 126/23, 435 11 Lom (správce dat), za účelem předání dotazu z tohoto formuláře Vámi vybranému inzerentovi a zpětného kontaktování mé osoby. Osobní údaje bude správce zpracovávat manuálně i automaticky přímo prostřednictvím svých zaměstnanců. Informace předané tímto formulářem budou uloženy v databázi správce maximálně po dobu 10 let. Odvolání souhlasu s uložením a zpracováním poskytnutých dat lze e-mailem na info@origo-reality.cz. V případě podezření na neoprávněné použití Vámi poskytnutých údajů máte právo předat podnět k šetření Úřadu pro ochranu osobních údajů. Více informací
Chystáte se prodat nemovitost?
Pomůžeme Vám!

Přihlášení k odběru

Nenechte si ujít nejnovější nabídky pronájmu rodinných domů v Vysokově.