Pronájem skladu, Plzeň - Doubravka, Hřbitovní, 2513 m2 (ID: 1943294)

Hřbitovní, Plzeň, Doubravka

Cena na vyžádání
/za metr čtvereční / měsíc
Získejte výhodnou HYPOTÉKU Chci hypotéku

Parametry nemovitosti

AdresaHřbitovní, Plzeň, Doubravka
IDN6605
StavbaSkeletová
Stav objektuVelmi dobrý
Typ objektuPřízemní
Lokalita objektuRušná část obce
Užitná plocha2513 m2
Třída energetické náročnostiD - Méně úsporná
Parkování

Origo partneři v Plzni

Podlahy

Stěhovací služby

Popis

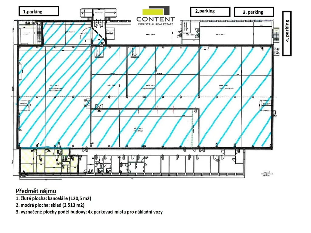
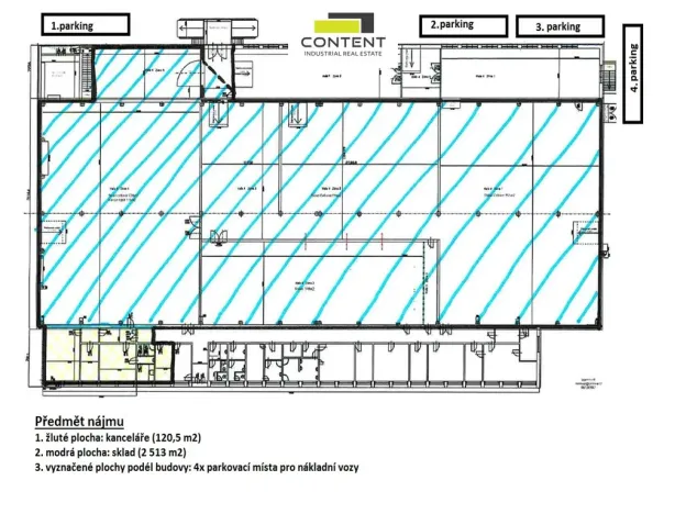
Pronájem skladu, výrobních prostor 2513 m² Plzeň - Doubravka.
V zastoupení majitele a bez provize nabízíme industriální prostory vhodné pro sklad nebo výrobu o velikosti 2513 m², umístěné v průmyslovém areálu, nedaleko dálnice D5, EXIT 67.

- k dispozici od 12/2025 (budova 4),
- nosnost podlahy 5 t/m²,
- výška stropu 5 m,
- vjezdy v úrovni vozovky, vstup z rampy,
- kancelářské a soc. zázemí celkem až 378 m²,
- parkování i manipulace i pro nákladní vozy,
- zastávka MHD, vlakové nádraží v blízkosti,


Cena k jednání: nájemné sklady: 110 Kč/m²/měsíc, nájemné kanceláře: 250 Kč/m²/měsíc + poplatky za údržbu areálu: 19 Kč/m², spotřeba energií dle vlastní spotřeby.
Pro více informací nás kontaktujte, rádi Vám zajistíme prohlídku nemovitosti.

Makléř

Máte zájem o tuto nemovistost?

Tímto, v souladu s nařízením Evropského parlamentu a Rady (EU) 2016/679, v platném znění, prohlašuji, že mi je alespoň 16 let a uděluji tak svůj souhlas se zpracováním zadaných údajů (jméno, telefon, e-mail, ip adresa) společnosti B3 Technology, s.r.o., IČ: 07330600, se sídlem Novostavby 126/23, 435 11 Lom (správce dat), za účelem předání dotazu z tohoto formuláře Vámi vybranému inzerentovi a zpětného kontaktování mé osoby. Osobní údaje bude správce zpracovávat manuálně i automaticky přímo prostřednictvím svých zaměstnanců. Informace předané tímto formulářem budou uloženy v databázi správce maximálně po dobu 10 let. Odvolání souhlasu s uložením a zpracováním poskytnutých dat lze e-mailem na info@origo-reality.cz. V případě podezření na neoprávněné použití Vámi poskytnutých údajů máte právo předat podnět k šetření Úřadu pro ochranu osobních údajů. Více informací
Chystáte se prodat nemovitost?
Pomůžeme Vám!

Přihlášení k odběru

Nenechte si ujít nejnovější nabídky pronájmu skladů v Plzni.