Pronájem kanceláře, Liberec, 1. máje, 17 m2 (ID: 1943000)

1. máje, Liberec III-Jeřáb

5 883 Kč
/za měsíc
bez DPH, včetně poplatků, včetně provize, včetně právního servisu
Získejte výhodnou HYPOTÉKU Chci hypotéku

Parametry nemovitosti

Adresa1. máje, Liberec III-Jeřáb
ID00293
StavbaPanelová
Stav objektuVelmi dobrý
Patro6. z 8
VybavenoČástečně
Lokalita objektuCentrum obce
Užitná plocha17 m2
Třída energetické náročnostiG - Mimořádně nehospodárná
Elektřina230V
PlynPlynovod
OdpadVeřejná kanalizace
KomunikaceAsfaltová
TelekomunikaceInternet
DopravaVlak, Dálnice, Silnice, MHD, Autobus
VodaVodovod
Výtah
Bezbarierový přístup

Origo partneři v Liberci

Rekonstrukce

Úklidové služby

Popis

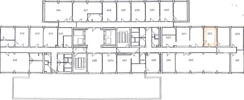
Pronájem pěkné kanceláře o výměře 17 m2 v Liberci-centrum, ulice 1. máje (na Rybníčku).

Kancelář v 5.NP se nachází v budově, kde sídlí finanční úřad.
Kuchyňka i WC je přímo na patře.
V objektu je zajištěna nepřetržitá ostraha pracovníky recepce a zároveň nepřetržitý přístup do budovy.
Možnost pevného připojení k internetu, počítačové sítě a ISDN přípojky.
Zdarma k dispozici 2 jednací místnosti (max. 13 hodin měsíčně)

V blízkosti vlakové a autobusové nádraží, zastávka MHD.

Měsíční nájem včetně služeb je 5.883,-Kč. Provizi RK platí pronajímatel.

Makléř

Máte zájem o tuto nemovistost?

Tímto, v souladu s nařízením Evropského parlamentu a Rady (EU) 2016/679, v platném znění, prohlašuji, že mi je alespoň 16 let a uděluji tak svůj souhlas se zpracováním zadaných údajů (jméno, telefon, e-mail, ip adresa) společnosti B3 Technology, s.r.o., IČ: 07330600, se sídlem Novostavby 126/23, 435 11 Lom (správce dat), za účelem předání dotazu z tohoto formuláře Vámi vybranému inzerentovi a zpětného kontaktování mé osoby. Osobní údaje bude správce zpracovávat manuálně i automaticky přímo prostřednictvím svých zaměstnanců. Informace předané tímto formulářem budou uloženy v databázi správce maximálně po dobu 10 let. Odvolání souhlasu s uložením a zpracováním poskytnutých dat lze e-mailem na info@origo-reality.cz. V případě podezření na neoprávněné použití Vámi poskytnutých údajů máte právo předat podnět k šetření Úřadu pro ochranu osobních údajů. Více informací
Chystáte se prodat nemovitost?
Pomůžeme Vám!

Přihlášení k odběru

Nenechte si ujít nejnovější nabídky pronájmu kanceláří v Liberci.