Pronájem bytu 3+1, Ostrava, Pelclova, 84 m2

Pelclova, Moravská Ostrava

15 000 Kč
/za měsíc
Cena nájmu BEZ služeb, kauce a provize
Získejte výhodnou HYPOTÉKU Chci hypotéku

Parametry bytu

AdresaPelclova, Moravská Ostrava
ID0367
StavbaCihlová
Stav objektuVelmi dobrý
Patro3. z 5
VybavenoNe
Lokalita objektuCentrum obce
VlastnictvíOsobní
Užitná plocha84 m2
Podlahová plocha84 m2
Třída energetické náročnostiC - Úsporná
Elektřina230V
PlynPlynovod
OdpadVeřejná kanalizace
KomunikaceAsfaltová
TelekomunikaceInternet, Kabelové rozvody
DopravaVlak, Dálnice, Silnice, MHD, Autobus
VodaVodovod
Topné tělesoRadiátory
Balkon
Výtah

Origo partneři v Ostravě

Popis

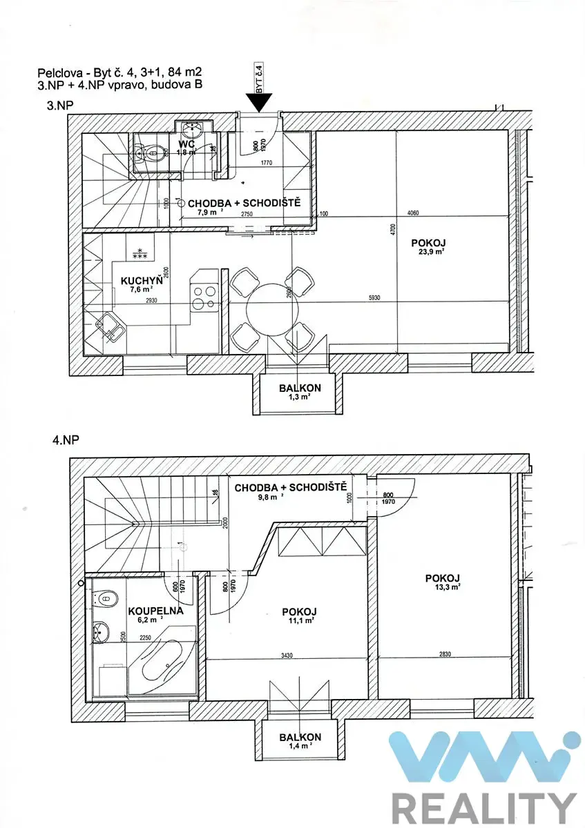
Nabízíme k pronájmu MEZONETOVÝ byt 3+1 o celkové ploše 84 m2. Byt se nachází ve III. a IV. NP z celkových pěti NP v domě s výtahem. Kuchyň je vybavená linkou, sklokeramickou deskou, elektrickou troubou a myčkou, nachází se ve III. NP společně s obývacím pokojem s balkónem a toaletou, v horní části bytu (IV. NP) jsou další dva pokoje (součástí jednoho pokoje je balkón) a koupelna s toaletou.

Možnost pronájmu parkovacího stání v ohrazené části za domem za 800,- Kč měsíčně.

Velmi žádaná lokalita v blízkosti centra města a Komenského sadů, oblíbená lokalita také cizinci - v blízkosti mezinárodní škola i školka. Cena pronájmu je Kč 15.000,- bez služeb (služby cca 5 tisíc - teplo-vlastní plynová kotelna pro dům, teplá a studená voda, elektřina, výtah, úklid a elektrická energie společných prostor, internet), vratná kauce je stanovena ve výši Kč 30.000,- a provize Kč 15.000,-. K dispozici ihned.
Doporučujeme prohlídku.

Makléř

Máte zájem o tento byt?

Tímto, v souladu s nařízením Evropského parlamentu a Rady (EU) 2016/679, v platném znění, prohlašuji, že mi je alespoň 16 let a uděluji tak svůj souhlas se zpracováním zadaných údajů (jméno, telefon, e-mail, ip adresa) společnosti B3 Technology, s.r.o., IČ: 07330600, se sídlem Novostavby 126/23, 435 11 Lom (správce dat), za účelem předání dotazu z tohoto formuláře Vámi vybranému inzerentovi a zpětného kontaktování mé osoby. Osobní údaje bude správce zpracovávat manuálně i automaticky přímo prostřednictvím svých zaměstnanců. Informace předané tímto formulářem budou uloženy v databázi správce maximálně po dobu 10 let. Odvolání souhlasu s uložením a zpracováním poskytnutých dat lze e-mailem na info@origo-reality.cz. V případě podezření na neoprávněné použití Vámi poskytnutých údajů máte právo předat podnět k šetření Úřadu pro ochranu osobních údajů. Více informací
Chystáte se prodat nemovitost?
Pomůžeme Vám!