Prodej bytu 2+kk, Bar, Černá Hora, 43 m2 (ID: 1942610)

Bar

129 870 €
/za nemovitost

Parametry bytu

AdresaBar
IDF22987
StavbaCihlová
Stav objektuVe výstavbě
Patro3. z 9
VybavenoČástečně
Lokalita objektuKlidná část obce
VlastnictvíOsobní
Užitná plocha43 m2
Podlahová plocha48 m2
Elektřina230V
OdpadVeřejná kanalizace
TopeníLokální elektrické
TelekomunikaceInternet
DopravaDálnice, Silnice, MHD, Autobus
VodaVodovod
Terasa
Výtah
Parkování

Origo partneři

Popis

V prestižní čtvrti Topolica, přímo v srdci přímořského města Bar, vzniká nový exkluzivní rezidenční komplex, který přirozeně propojuje moderní bydlení, středomořskou atmosféru a dlouhodobou hodnotu. Ve 3. nadzemním podlaží je k dispozici světlý a promyšleně řešený apartmán o dispozici 2+kk s podlahovou plochou 48 m². Součástí bytu je terasa o velikosti 4 m², ideální místo pro ranní kávu, klidné chvíle po práci i večerní relax s výhledem na zeleň a okolní přírodu.

Dispozice bytu působí vzdušně a funkčně. Vstupní předsíň nabízí praktický prostor pro každodenní fungování, obývací pokoj s kuchyňským koutem je přirozeným centrem bytu a ložnice poskytuje dostatek soukromí i klidu. Koupelna je vybavena prvotřídním sanitárním zařízením a celý interiér je navržen s důrazem na kvalitu, dlouhou životnost a nadčasový design, který nestárne ani po letech.

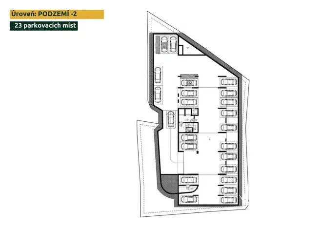
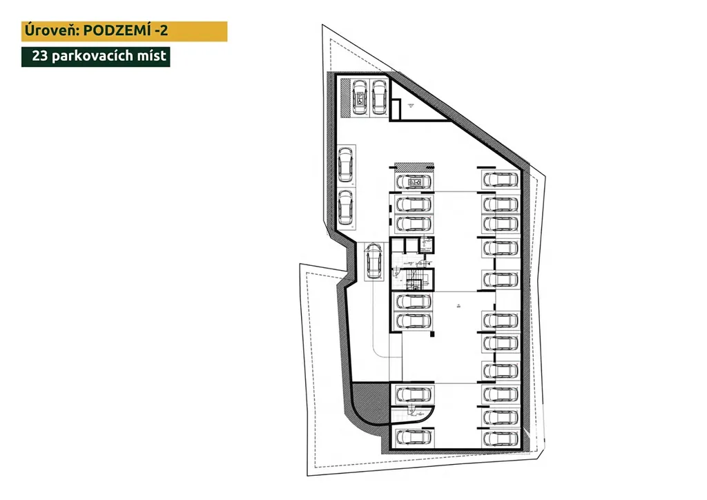
Standardem vybavení jsou dubové parkety nejvyšší třídy, italská keramika od renomovaných výrobců, luxusní armatury značek Villeroy & Boch a Hansgrohe, moderní okenní a dveřní rámy z kombinace hliníku a dřeva a multisplit klimatizace zajišťující příjemné klima po celý rok. Součástí rezidence jsou také chytré domácí technologie pro vyšší komfort a bezpečnost, dva tiché výtahy značky OTIS, solární panely snižující energetickou náročnost budovy a dvě podzemní podlaží s celkem 58 parkovacími místy. Dokončení výstavby je plánováno na konec roku 2026.

Topolica patří dlouhodobě mezi nejžádanější lokality v Baru. V pěší vzdálenosti se nachází sportovní centrum Topolica, připravovaný národní aquapark s bazény a wellness zónou, promenáda, marina, pláž s pozvolným vstupem do moře, řeka Željeznica i majestátní pohoří Rumija. Lokalita nabízí ideální rovnováhu mezi městským životem a přírodním klidem, navíc v prostředí s více než 270 slunečnými dny ročně, které lákají k celoročnímu pobytu.

Rezidence Pohled na vodu představuje stabilní a smysluplnou investici s vysokým potenciálem budoucího zhodnocení. Díky atraktivní poloze je nemovitost vhodná jak pro vlastní bydlení, tak pro krátkodobý i dlouhodobý pronájem, o který je v této části Černé Hory dlouhodobě rostoucí zájem. Tento apartmán není jen místem k bydlení, ale prostorem pro život, odpočinek a tvorbu vzpomínek, které mají hodnotu.

Rádi vám zajistíme kompletní servis od výběru nemovitosti až po právní a administrativní podporu. Pokud hledáte druhý domov u moře nebo investici, která dává smysl dnes i do budoucna, tento apartmán si vaši pozornost zaslouží.

Makléř

Máte zájem o tento byt?

Tímto, v souladu s nařízením Evropského parlamentu a Rady (EU) 2016/679, v platném znění, prohlašuji, že mi je alespoň 16 let a uděluji tak svůj souhlas se zpracováním zadaných údajů (jméno, telefon, e-mail, ip adresa) společnosti B3 Technology, s.r.o., IČ: 07330600, se sídlem Novostavby 126/23, 435 11 Lom (správce dat), za účelem předání dotazu z tohoto formuláře Vámi vybranému inzerentovi a zpětného kontaktování mé osoby. Osobní údaje bude správce zpracovávat manuálně i automaticky přímo prostřednictvím svých zaměstnanců. Informace předané tímto formulářem budou uloženy v databázi správce maximálně po dobu 10 let. Odvolání souhlasu s uložením a zpracováním poskytnutých dat lze e-mailem na info@origo-reality.cz. V případě podezření na neoprávněné použití Vámi poskytnutých údajů máte právo předat podnět k šetření Úřadu pro ochranu osobních údajů. Více informací
Chystáte se prodat nemovitost?
Pomůžeme Vám!

Přihlášení k odběru

Nenechte si ujít nejnovější nabídky prodeje bytů 2+kk.