Soccer reality

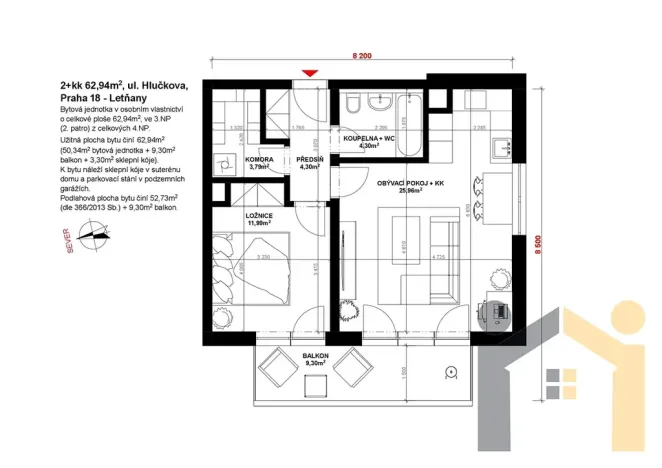
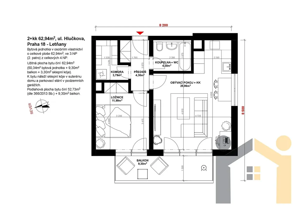
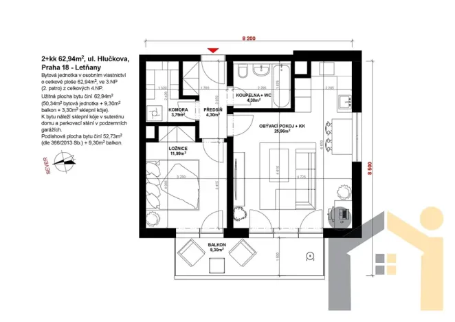
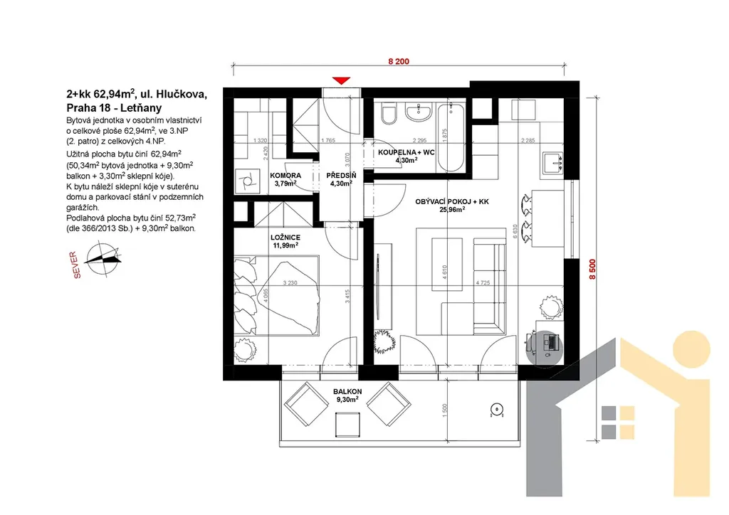
Prodej bytu 2+kk, Praha - Letňany, Hlučkova, 63 m2

Hlučkova, Praha, Letňany

Rezervováno
8 850 000 Kč
/za nemovitost
Včetně provize RK, právních služeb, advokátní úschovy.
Hypotéka od 39 554 Kč /měs. Chci hypotéku

Parametry bytu

StavRezervováno
AdresaHlučkova, Praha, Letňany
StavbaSmíšená
Stav objektuNovostavba
Patro3. z 4
Lokalita objektuKlidná část obce
VlastnictvíOsobní
Užitná plocha63 m2
Třída energetické náročnostiB - Velmi úsporná
Elektřina230V
OdpadVeřejná kanalizace
KomunikaceAsfaltová
DopravaVlak, Dálnice, Silnice, MHD
VodaVodovod
Topné tělesoRadiátory
Zdroj topeníCentrální dálkové
Zdroj teplé vodyCentrální dálkový ohřev
Balkon
Sklep
Výtah
Bezbarierový přístup
Parkování

Origo partneři v Praze 9

Stěhovací služby

Výkup a prodej starého nábytku

Popis

REZERVOVÁNO! Byt 2+kk s balkonem, sklepem a parkovacím stáním v ul. Hlučkova, Praha 9, Letňany, je v osobním vlastnictví a nachází se přesně na rozhraní Čakovic a Starých Letňan. Bytový dům byl zkolaudován v roce 2017 v rámci projektu „Letňanské zahrady“ od společnosti CENTRAL GROUP.

Podlahová plocha bytu je 52,73m2, užitná plocha 50,34m2. K bytu náleží velký balkon 8,80 m2, sklep 3,30m2 a vnitřní parkovací stání v podzemní garáži. Druhé parkovací stání mají současní majitelé pronajaté od sousedů a s velkou pravděpodobností bude možné v nájemní smlouvě pokračovat. Je zde umístěn kamerový systém.

Velkou výhodou tohoto bytového domu je jeho komornější pojetí. Jednotlivé domy mají jen 4NP. Stejně tak je zde velmi nadstandardně funkční SVJ, což se v pozitivním smyslu odráží na pohodovém a klidném fungování.

Byt se nachází ve 2. patře (3.NP) bytového domu s výtahem. Orientace bytu na JZ a Z a je určen pro ty, kteří chtějí žít v klidu, a přesto ne odříznuti od civilizace. Vřele tento byt s příslušenstvím doporučuji jako startovací bydlení pro mladý pár, jednotlivce, či seniory (výhoda bezbariérovosti). A samozřejmě se jedná i o skvělou nemovitost na investici.

V lokalitě Nových Letňan, v ulici Hlučkova, se nachází projekt Letňanské zahrady, v němž v němž na nového majitele čeká tento pěkný a světlý byt střední velikosti. Přímo v areálu projektu naleznete MŠ, restauraci, dvě dětské hřiště a skvělý obchod s potravinami. Za zmínku stojí i nadstandardní a udržovaná zeleň přímo v projektu. Projekt Letňanské zahrady je obklopen lesoparkem Havraňák, lesoparkem Letňany s workoutovým hřištěm, discgolfovým hřištěm, singltraily. Pár minut chůze se nachází v Čakovicích koupaliště, tenisové kurty, další sportovní a dětské hřiště. Přímo vedle projektu je Jungle sport park. Autobusová zastávka je pouhé 2 min. od domu. Lidl 3 stanice autobusem, OC Letňany, aquapark, zimní stadion a tenisová hala se nacházejí pouhé 4 stanice autobusem. Obchodní centrum Čakovice a Hypermarket Globus se nachází 4 min. jízdy autobusem, nebo autem. V centru Prahy (Florenc) budete za 30 min., na vlaku (Praha-Čakovice) za 7 min. autobusem. Nové Letňany navazují přímo na Staré Letňany, kde je v docházkové vzdálenosti pošta, Úřad městské části Praha 18, Poliklinika Frýdecká, Albert, Penny, restaurace, kavárny, MŠ, ZŠ, apod. Stanice metra „C – Letňany“ je vzdálena 11min. jízdy MHD. Velmi dobře se zde žije, sportuje, relaxuje, nakupuje. Výhodou je i blízký nájezd na D8 a D10.

Nemovitost lze bez problému financovat hypotečním úvěrem. V případě více zájemců o koupi si majitelé nemovitosti vyhrazují právo učinit výběr kupujících dle svých priorit. PENB: „B“, což bude výhodou i pro vyjednání případné lepší úrokové sazby u hypotečního úvěru. Cena bytové jednotky je 8.850.000,- Kč včetně právních služeb, advokátní úschovy kupní ceny, provize RK. Pro dotazy či domluvení prohlídky jsem kdykoli k dispozici. Budu se těšit na osobní setkání při prohlídce nemovitosti, na které vám předložím kompletní podklady.

Makléř

Máte zájem o tento byt?

Tímto, v souladu s nařízením Evropského parlamentu a Rady (EU) 2016/679, v platném znění, prohlašuji, že mi je alespoň 16 let a uděluji tak svůj souhlas se zpracováním zadaných údajů (jméno, telefon, e-mail, ip adresa) společnosti B3 Technology, s.r.o., IČ: 07330600, se sídlem Novostavby 126/23, 435 11 Lom (správce dat), za účelem předání dotazu z tohoto formuláře Vámi vybranému inzerentovi a zpětného kontaktování mé osoby. Osobní údaje bude správce zpracovávat manuálně i automaticky přímo prostřednictvím svých zaměstnanců. Informace předané tímto formulářem budou uloženy v databázi správce maximálně po dobu 10 let. Odvolání souhlasu s uložením a zpracováním poskytnutých dat lze e-mailem na info@origo-reality.cz. V případě podezření na neoprávněné použití Vámi poskytnutých údajů máte právo předat podnět k šetření Úřadu pro ochranu osobních údajů. Více informací
Chystáte se prodat nemovitost?
Pomůžeme Vám!

Přihlášení k odběru

Nenechte si ujít nejnovější nabídky prodeje bytů 2+kk v Praze 9.