Remax Power 2

Prodej obchodního prostoru, Příbram - Příbram II, Pražská, 407 m2

Pražská, Příbram II

19 800 000 Kč
/za nemovitost
Hypotéka od 88 494 Kč /měs. Chci hypotéku

Parametry nemovitosti

AdresaPražská, Příbram II
IDAR1021
StavbaCihlová
Stav objektuVelmi dobrý
VybavenoNe
Typ objektuPatrový
Užitná plocha407 m2
Plocha pozemku233 m2
Třída energetické náročnostiD - Méně úsporná
Ukazatel energetické náročnosti157 kWh/m2 za rok
Elektřina230V, 400V
OdpadVeřejná kanalizace
TopeníLokální elektrické
TelekomunikaceInternet
DopravaVlak, Dálnice, Silnice, MHD, Autobus
VodaVodovod
Topné tělesoPřímotop
Zdroj topeníPřímotop
Bezbarierový přístup
Parkování

Origo partneři v Příbrami

Revize elektrických zařízení

Popis

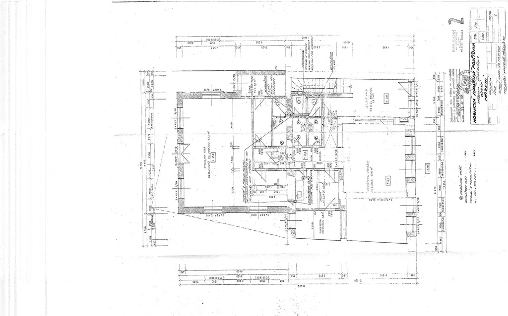
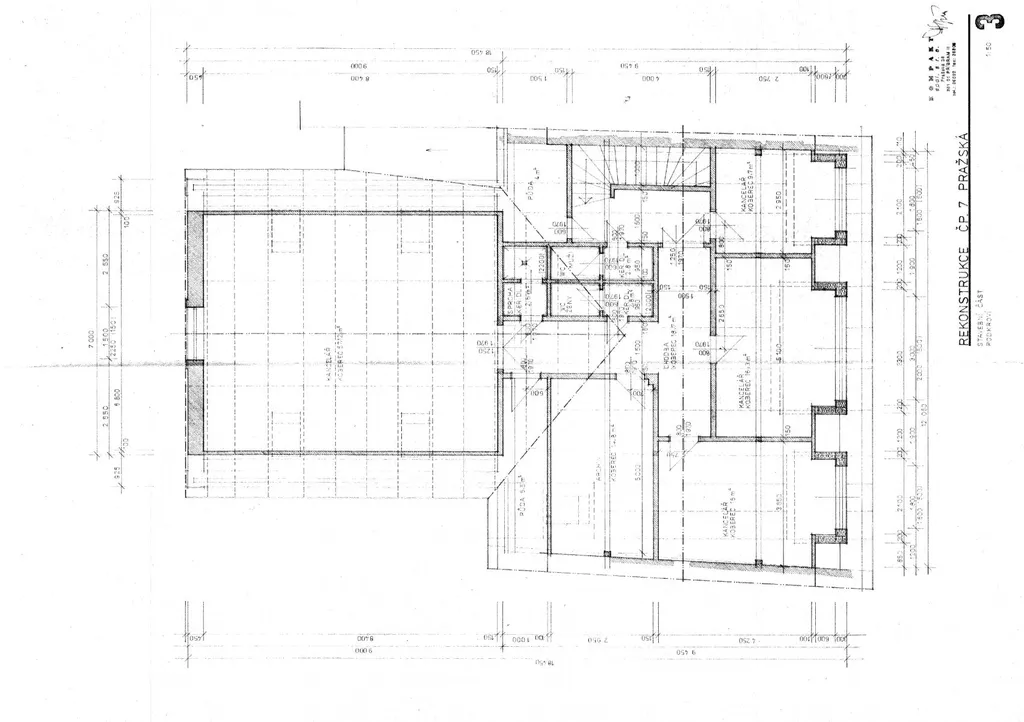
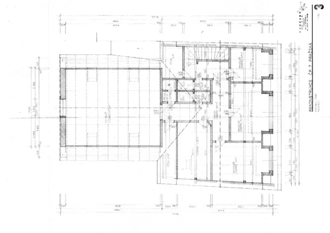
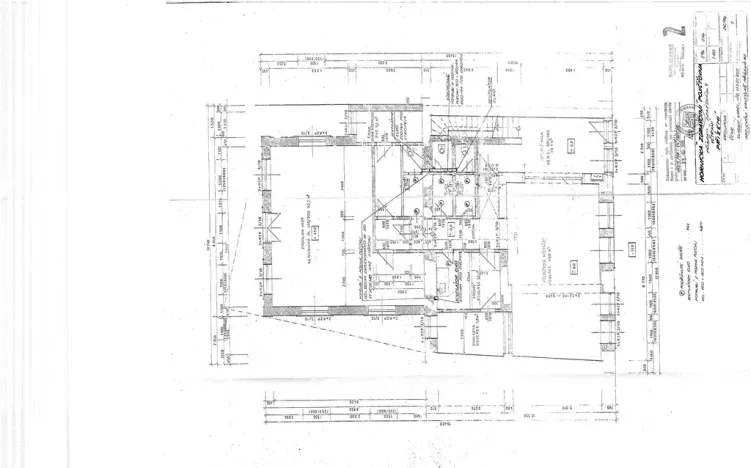
Prodej komerční víceúčelové budovy ve velmi dobrém technickém stavu v centru okresního města Příbram, část Příbram II - Pražská 7. Dům se nachází na velmi frekventované centrální části města, z jedné strany pěší zóna Pražská ulice a z druhé části příjezd autem a možnost parkování - Jiráskovy Sady. Obchod i všech 12 kanceláří je pronajato. Celková výměra pozemku je 233 m2. Z toho je cca 220 m2 zastavěné plochy. V přízemí budovy je obchod s oděvy / zavedený - již dlouhá léta / a opravna oděvů. Výměra obchodu je 150 m2, opravna oděvů 17 m2. Do obchodu je vstup z obou uvedených ulic. 1.patro - 7 kanceláří různých velikostí / plány budovy ve fotkách /, toalety dámské a pánské, společná kuchyňka / cca 126 m2 kancelářské plochy + soc. zázemí a chodby /. 2.patro - podkroví - 5 kanceláří různé velikosti, dámské a pánské toalety, společná kuchyňka / cca 114 m2 kancelářské plochy + soc. zázemí a chodby /. Předností je 6 vlastních parkovacích míst. Vybavenost : v nemovitosti je řešeno vytápění elektrickými přímotopy, odpad je do kanalizace, voda je z obecního vodovodního řádu, internet je v budově řešen společností Vyladěný internet Příbram. Celková užitná plocha obchod + kanceláře je 400 m2 + soc. zázemí a chodby. Podrobné informace o měsíčním nájemném, nákladech a dalších podrobnostech v RK. Prohlídka nemovitosti po domluvě.

Makléř

Máte zájem o tuto nemovistost?

Tímto, v souladu s nařízením Evropského parlamentu a Rady (EU) 2016/679, v platném znění, prohlašuji, že mi je alespoň 16 let a uděluji tak svůj souhlas se zpracováním zadaných údajů (jméno, telefon, e-mail, ip adresa) společnosti B3 Technology, s.r.o., IČ: 07330600, se sídlem Novostavby 126/23, 435 11 Lom (správce dat), za účelem předání dotazu z tohoto formuláře Vámi vybranému inzerentovi a zpětného kontaktování mé osoby. Osobní údaje bude správce zpracovávat manuálně i automaticky přímo prostřednictvím svých zaměstnanců. Informace předané tímto formulářem budou uloženy v databázi správce maximálně po dobu 10 let. Odvolání souhlasu s uložením a zpracováním poskytnutých dat lze e-mailem na info@origo-reality.cz. V případě podezření na neoprávněné použití Vámi poskytnutých údajů máte právo předat podnět k šetření Úřadu pro ochranu osobních údajů. Více informací
Chystáte se prodat nemovitost?
Pomůžeme Vám!

Přihlášení k odběru

Nenechte si ujít nejnovější nabídky prodeje obchodních prostor v Příbrami.