Prodej bytu 2+kk, Šenov, Do Dědiny, 49 m2

Do Dědiny, Šenov

3 700 000 Kč
/za nemovitost
Hypotéka od 16 537 Kč /měs. Chci hypotéku

Parametry bytu

AdresaDo Dědiny, Šenov
ID28696
StavbaCihlová
Stav objektuNovostavba
Patro1. z 3
Lokalita objektuKlidná část obce
VlastnictvíOsobní
Užitná plocha49 m2
Zastavěná plocha325 m2
Podlahová plocha87 m2
Plocha zahrady2395 m2
Třída energetické náročnostiG - Mimořádně nehospodárná
Elektřina230V
PlynPlynovod
OdpadVeřejná kanalizace
KomunikaceAsfaltová, Šotolina
TelekomunikaceInternet, Kabelové rozvody
DopravaDálnice, Silnice, MHD, Autobus
VodaVodovod
Bezbarierový přístup
Nízkoenergetický

Origo partneři v Šenově

Popis

Nabízíme k prodeji byt 1KK nebo 2KK v NOVÉ Rezidenci Šenov ll. Jenž navazuje na předchozí projekt Rezidence Šenov. Tento byt 1KK necháme zatím otevřenou budoucímu majiteli zda bude chtít velké 1KK nebo menší 2KK.
Jedná se o byt v nově zahájené výstavbě bytového domu v Ostravě - Šenově. Která již započala na konci roku loňského roku 2025.
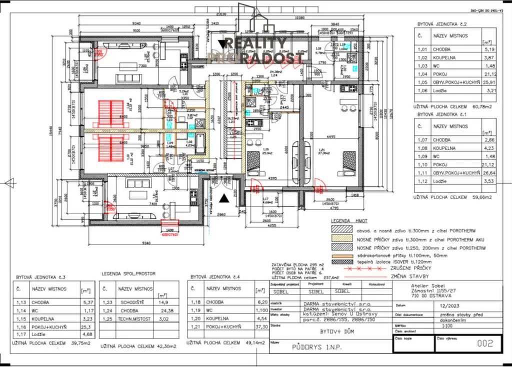
Byt je o velikosti 1KK s podlahovou plochou 49,14m2 Vám však nabídne další výhodu a to je předzahrádka o velikosti 33m2 a sklep o velikosti 2,05m2. Jenž jsou jeho součástí.
V domě se bude nacházet celkem 10 bytových jednotek a to této dispozici a umístění:
1.NP - Byty ( 1kk, 1kk-2kk, 2x2kk - všechny tyto byty mají svou vlastní krásnou předzahrádku )
2NP - Byty ( jsou dva byty 2kk a jeden 3kk - všechny byty s balkóny )
3NP - Byty ( jsou dva byty 2kk a jeden 3kk - všechny byty s balkóny )
Koupelna a toaleta jsou samostatně odděleny. Vstupní hala je součástí každého bytu.
Vzhledem k tomu, že se jedná o novostavbu bytového domu tak máme v bytech všechno nové ( sádrové omítky, nové el. rozvody, voda v plastu, okna plastová tří komorová, plovoucí podlaha s podlahovým el. vytápěním, obklady moderního vzhledu, nová sanita a nové dveře i s obložky ). Stropy se sádrokartonovým podhledem.
Všechny byty mají krásný balkón a výhled po okolí na nedaleké Beskydy či okolní krajinu.
U domu je možnost zakoupení parkovacího stání na oploceném pozemku s pojezdovou bránou na dálkové ovládání.
Cena parkovacího stání činí 100 000,- 1/Ks. Parkovací místo je nad rámec inzerované ceny. Kuchyně je v režii nového vlastníka.
Celkové náklady na bydlení jsou velice nízké. K domu náleží dále i oplocená zahrada.
V dostupnosti máme jak ZŠ, MŠ, obchody a MHD. Tato nemovitost zaručuje velice klidné a krásné bydlení na samém okraji Ostravy a Havířova.
V inzerci nejdete jak půdorys tak vizualizace s dispozičním řešením daného bytu.
V případě zájmu o byt 1kk které si můžete změnit na 2kk v 1NP Vám ráda zprostředkuji prohlídku a sdělím bližší informace. Kolaudace plánována ke konci roku 2027.
Máme svého hypotečního specialistu, který Vám zajistí ten nejlepší úvěr s nejnižší úrokovou sazbou.
Velice ráda Vám pomohu jak s koupí této nemovitosti tak prodejem té Vaší. Veškeré fotky s výstavbou Vám průběžně budu přidávat.

Makléř

Máte zájem o tento byt?

Tímto, v souladu s nařízením Evropského parlamentu a Rady (EU) 2016/679, v platném znění, prohlašuji, že mi je alespoň 16 let a uděluji tak svůj souhlas se zpracováním zadaných údajů (jméno, telefon, e-mail, ip adresa) společnosti B3 Technology, s.r.o., IČ: 07330600, se sídlem Novostavby 126/23, 435 11 Lom (správce dat), za účelem předání dotazu z tohoto formuláře Vámi vybranému inzerentovi a zpětného kontaktování mé osoby. Osobní údaje bude správce zpracovávat manuálně i automaticky přímo prostřednictvím svých zaměstnanců. Informace předané tímto formulářem budou uloženy v databázi správce maximálně po dobu 10 let. Odvolání souhlasu s uložením a zpracováním poskytnutých dat lze e-mailem na info@origo-reality.cz. V případě podezření na neoprávněné použití Vámi poskytnutých údajů máte právo předat podnět k šetření Úřadu pro ochranu osobních údajů. Více informací
Chystáte se prodat nemovitost?
Pomůžeme Vám!

Přihlášení k odběru

Nenechte si ujít nejnovější nabídky prodeje bytů 2+kk v Šenově.