Prodej bytu 2+kk, Praha - Libeň, Prosecká, 47 m2

Prosecká, Praha, Libeň

6 490 000 Kč
/za nemovitost
Hypotéka od 29 006 Kč /měs. Chci hypotéku

Parametry bytu

AdresaProsecká, Praha, Libeň
ID26002
StavbaCihlová
Stav objektuPřed rekonstrukcí
Patro2. z 5
VybavenoNe
Lokalita objektuCentrum obce
VlastnictvíOsobní
Užitná plocha47 m2
Podlahová plocha48 m2
Třída energetické náročnostiF - Velmi nehospodárná
Ukazatel energetické náročnosti306 kWh/m2 za rok
Elektřina230V
PlynPlynovod
OdpadVeřejná kanalizace
TopeníLokální elektrické
KomunikaceAsfaltová
TelekomunikaceInternet
DopravaSilnice, MHD, Autobus
VodaVodovod
Topné tělesoPřímotop, Infrapanel
Zdroj topeníPřímotop, Infrapanel
Zdroj teplé vodyElektrokotel, Bojler - elektro
Balkon
Výtah
Bezbarierový přístup

Origo partneři v Praze 8

Stěhovací služby

Výkup a prodej starého nábytku

Popis

Realitní společnost Dvořák&Petrášková reality vám nabízí k prodeji byt 2+kk na Praze 8 v Libni.

Do not hesitate to contact me i speak fluently English.

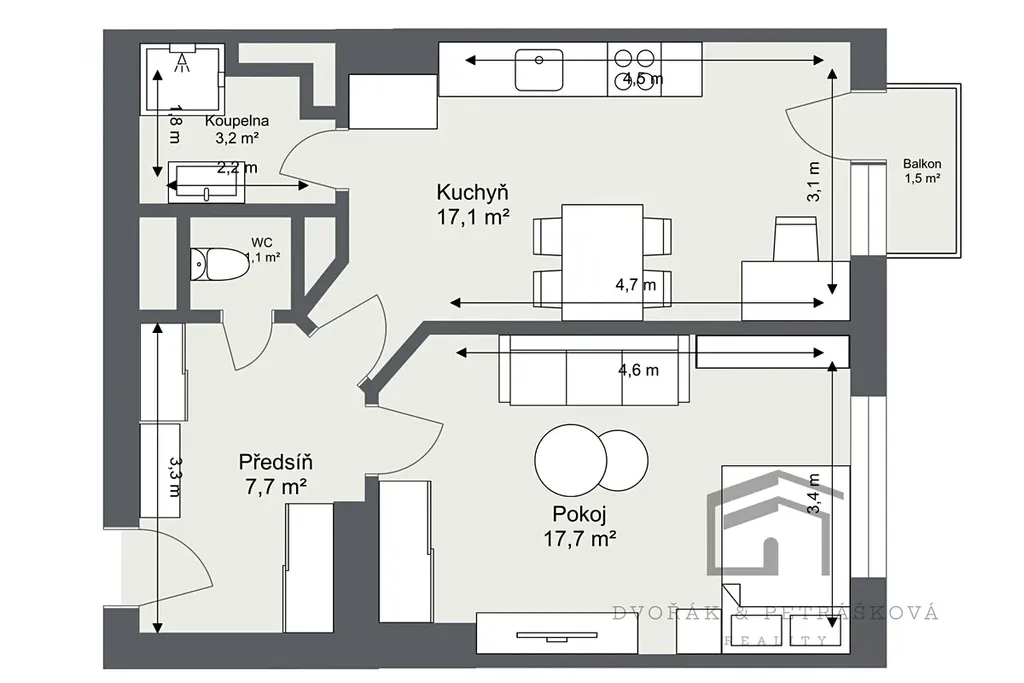
V nabídce pro Vás aktuálně máme dvoupokojový byt v pražské Libni před rekonstrukcí.
Tento byt s podlahovou plochou 46,8m2 se nachází na 2. podlaží 5 podlažního samostatně stojícího cihlového domu v ulici Prosecká.
Byt nabízí vstupní předsíň, kde najdete prostor pro možnost vestavby skříní a vstup na samostatné WC. Dále vstupy do dvou samostatných světlých pokojů se slušnou výměrou 18,84m2 a 17,78m2.

K bytu dále náleží k užívání 1,48m2 balkon přístupný z levého pokoje.
Měsíční platby do SVJ jsou 2732,– Kč.
Měsíční platba elektřiny za vytápění a ohřev vody bude cca. 2500 Kč. Plyn je v bytě taktéž zaveden a je možné ho případně využít pro ohřev vody a vytápění.
PENB kategorie F.

Samostatně stojící dům se nachází u křižovatky silnic Prosecká a Zenklova, minutu od tramvajové zastávky U Kříže. Odtud jste tramvají u OC Galerie Harfa za 16 minut.
Za 5 minut dojdete k autobusové zastávce Kundratka.
Ze zastávky jste na Metru C - Prosek za 12 minut.

Tento byt nejvíce zaujme zájemce o startovní bydlení s ideální polohou pro cestování centrem Prahy a nabídkou všech služeb co lokalita nabízí.

Samozřejmostí je rychlé vyřízení hypotéky bez poplatků, za velmi příznivých podmínek. Základní propočet hypotéky je možné získat při domluvené prohlídce nemovitosti. Pro více informací mě neváhejte kontaktovat.

Makléř

Máte zájem o tento byt?

Tímto, v souladu s nařízením Evropského parlamentu a Rady (EU) 2016/679, v platném znění, prohlašuji, že mi je alespoň 16 let a uděluji tak svůj souhlas se zpracováním zadaných údajů (jméno, telefon, e-mail, ip adresa) společnosti B3 Technology, s.r.o., IČ: 07330600, se sídlem Novostavby 126/23, 435 11 Lom (správce dat), za účelem předání dotazu z tohoto formuláře Vámi vybranému inzerentovi a zpětného kontaktování mé osoby. Osobní údaje bude správce zpracovávat manuálně i automaticky přímo prostřednictvím svých zaměstnanců. Informace předané tímto formulářem budou uloženy v databázi správce maximálně po dobu 10 let. Odvolání souhlasu s uložením a zpracováním poskytnutých dat lze e-mailem na info@origo-reality.cz. V případě podezření na neoprávněné použití Vámi poskytnutých údajů máte právo předat podnět k šetření Úřadu pro ochranu osobních údajů. Více informací
Chystáte se prodat nemovitost?
Pomůžeme Vám!

Přihlášení k odběru

Nenechte si ujít nejnovější nabídky prodeje bytů 2+kk v Praze 8.