Pronájem bytu 3+kk, Benešov, Ulrichova, 61 m2

Ulrichova, Benešov

22 500 Kč
/za měsíc
+ poplatky za služby
Získejte výhodnou HYPOTÉKU Chci hypotéku

Parametry bytu

AdresaUlrichova, Benešov
IDPPDO5889
StavbaCihlová
Stav objektuNovostavba
Patro1. z 3
Lokalita objektuKlidná část obce
VlastnictvíOsobní
Užitná plocha61 m2
Podlahová plocha68 m2
Plocha zahrady74 m2
Třída energetické náročnostiB - Velmi úsporná
Elektřina230V
OdpadVeřejná kanalizace
KomunikaceAsfaltová
TelekomunikaceInternet
DopravaVlak, Silnice, Autobus
VodaVodovod
Topné tělesoPodlahové vytápění
Sklep
Bezbarierový přístup
Převod do OV

Origo partneři v Benešově

Popis

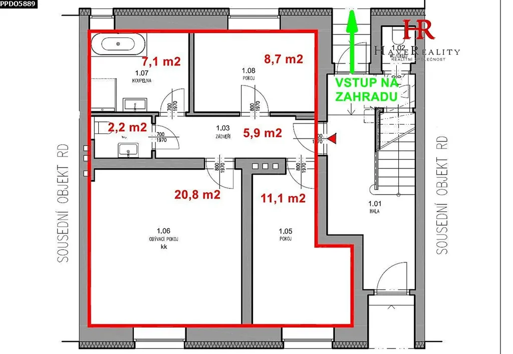
Nabízíme k pronájmu velmi pěkný, zcela nový byt s dispozicí 3+kk, se zahradou a sklepem.
Podlahová plocha bytu je 61 m2, sklepa 7 m2, zahrada má výměru 74 m2.
Byt je umístěn v 1. nadzemním podlaží domu (v tomto podlaží je pouze jeden byt), v ulici Ulrichova. Byt je zcela nový, kolaudovaný v letošním roce. Při jeho výstavbě byly použity výhradně moderní a kvalitní materiály. Dům je cihlový, se zateplenou fasádou (polystyren tl. 18 cm) – předpoklad nízkých nákladů na vytápění. Dispozice bytu: prostorný obývací pokoj se s kuchyňským koutem, vč. kuchyňské linky se spotřebiči (vestavěná myčka, lednice, mrazák, mikrovlnná trouba, trouba, sklokeramická deska), ložnice, pokoj, koupelna s vanou a sprchovým koutem, samostatná toaleta a chodba. Okna jsou plastová, opatřená venkovnímu žaluziemi. Podlahy jsou plovoucí, v koupelně je dlažba. Topení je v celém bytě podlahové, s regulací teploty samostatně pro každou místnost. K dispozici je internet – optický kabel. Nastěhování je možné ihned. K bytu patří samostatná, oplocená zahrada o výměře 74 m2, majitel zahradu na jaře dovybaví zahradním domkem a kompostérem. Parkování je bezproblémové, na ulici u domu. Veškerá občanská vybavenost je v blízkém okolí – MŠ, ZŠ, koupaliště, plavecký, zimní a atletický stadion, lesopark Sladovka, obchody, restaurace, vlakové i autobusové nádraží. Velmi dobré je dopravní spojení do Prahy, autem, vlakem i autobusem. Cena za pronájem: 22.500 Kč měsíčně + záloha na služby: dohodou – cca 4.000 Kč měsíčně včetně elektřiny. Vratná jistota (kauce) – 45.000 Kč. Odměna za zprostředkování: ve výši jednoho nájmu. V případě zájmu o pronájem nás neváhejte kontaktovat na uvedeném telefonním čísle, prohlídky po dohodě kdykoliv, vč. víkendů.

Makléř

Máte zájem o tento byt?

Tímto, v souladu s nařízením Evropského parlamentu a Rady (EU) 2016/679, v platném znění, prohlašuji, že mi je alespoň 16 let a uděluji tak svůj souhlas se zpracováním zadaných údajů (jméno, telefon, e-mail, ip adresa) společnosti B3 Technology, s.r.o., IČ: 07330600, se sídlem Novostavby 126/23, 435 11 Lom (správce dat), za účelem předání dotazu z tohoto formuláře Vámi vybranému inzerentovi a zpětného kontaktování mé osoby. Osobní údaje bude správce zpracovávat manuálně i automaticky přímo prostřednictvím svých zaměstnanců. Informace předané tímto formulářem budou uloženy v databázi správce maximálně po dobu 10 let. Odvolání souhlasu s uložením a zpracováním poskytnutých dat lze e-mailem na info@origo-reality.cz. V případě podezření na neoprávněné použití Vámi poskytnutých údajů máte právo předat podnět k šetření Úřadu pro ochranu osobních údajů. Více informací
Chystáte se prodat nemovitost?
Pomůžeme Vám!

Přihlášení k odběru

Nenechte si ujít nejnovější nabídky pronájmu bytů 3+kk v Benešově.