Pronájem kanceláře, Praha - Nové Město, Opletalova, 94 m2

Opletalova, Praha, Nové Město

32 185 Kč
/za měsíc
Získejte výhodnou HYPOTÉKU Chci hypotéku

Parametry nemovitosti

AdresaOpletalova, Praha, Nové Město
StavbaCihlová
Stav objektuPo rekonstrukci
Patro2.
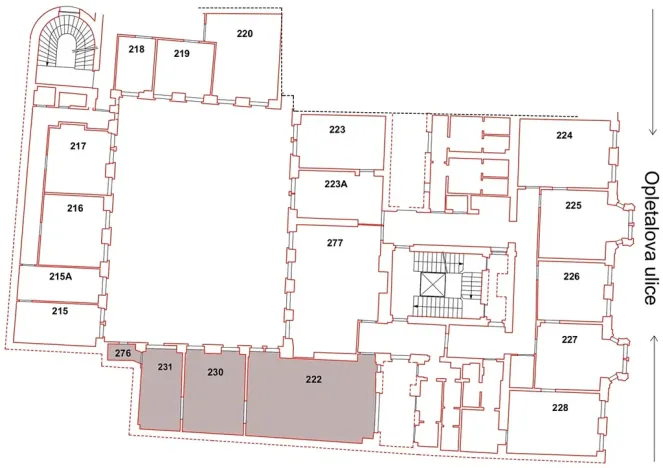
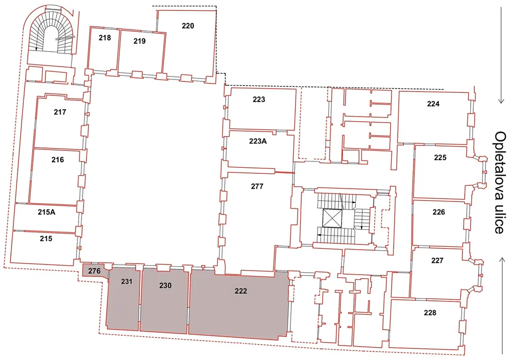
Užitná plocha94 m2
Třída energetické náročnostiC - Úsporná

Origo partneři v Praze 1

Stěhovací služby

Výkup a prodej starého nábytku

Popis

Prostorné svĕtlé kanceláře v administrativním domĕ s recepcí v bezprostřední blízkosti Václavského námĕstí.Kanceláře jsou dispozičnĕ rozdĕleny do 3 místností dle plánku s tím že součástí je kuchyn̈ka a toalety.Podlahová krytina zátĕžové koberce a dlažby.V oknech jsou žaluzie,klimatizace, zabezpečení atd.V objektu je také ostraha.K dispozici jsou ihned.

Makléř

Máte zájem o tuto nemovistost?

Tímto, v souladu s nařízením Evropského parlamentu a Rady (EU) 2016/679, v platném znění, prohlašuji, že mi je alespoň 16 let a uděluji tak svůj souhlas se zpracováním zadaných údajů (jméno, telefon, e-mail, ip adresa) společnosti B3 Technology, s.r.o., IČ: 07330600, se sídlem Novostavby 126/23, 435 11 Lom (správce dat), za účelem předání dotazu z tohoto formuláře Vámi vybranému inzerentovi a zpětného kontaktování mé osoby. Osobní údaje bude správce zpracovávat manuálně i automaticky přímo prostřednictvím svých zaměstnanců. Informace předané tímto formulářem budou uloženy v databázi správce maximálně po dobu 10 let. Odvolání souhlasu s uložením a zpracováním poskytnutých dat lze e-mailem na info@origo-reality.cz. V případě podezření na neoprávněné použití Vámi poskytnutých údajů máte právo předat podnět k šetření Úřadu pro ochranu osobních údajů. Více informací
Chystáte se prodat nemovitost?
Pomůžeme Vám!

Přihlášení k odběru

Nenechte si ujít nejnovější nabídky pronájmu kanceláří v Praze 1.