Pronájem bytu 2+kk, Praha - Staré Město, Na Perštýně, 73 m2 (ID: 1937652)

Na Perštýně, Praha, Staré Město

Rezervováno
29 000 Kč
/za měsíc
+ poplatky na osobu/měsíc: 1250 Kč + převod na nájemce: elektřina + plyn
Získejte výhodnou HYPOTÉKU Chci hypotéku

Parametry bytu

StavRezervováno
AdresaNa Perštýně, Praha, Staré Město
ID523767
StavbaCihlová
Stav objektuVelmi dobrý
Patro6. z 6
VybavenoNe
VlastnictvíOsobní
Užitná plocha73 m2
Třída energetické náročnostiG - Mimořádně nehospodárná
Výtah
Převod do OV

Origo partneři v Praze 1

Stěhovací služby

Výkup a prodej starého nábytku

Popis

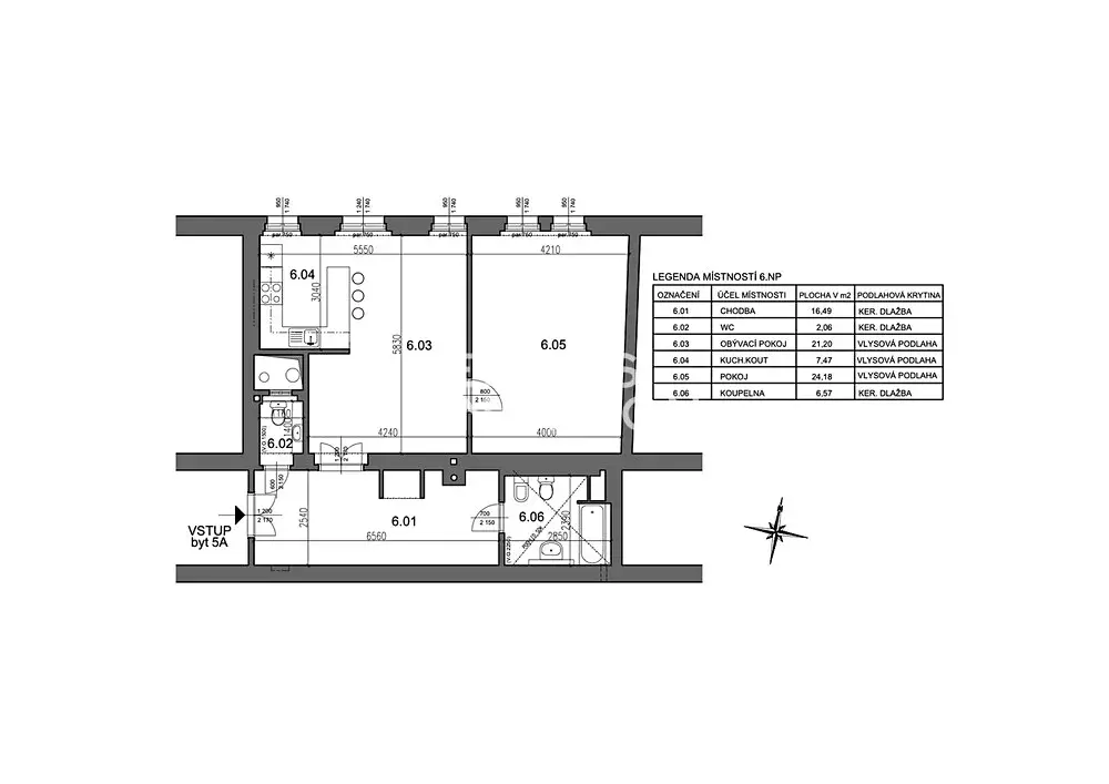
Nabízíme k pronájmu nezařízený byt 2+kk o velikosti 73 m2 situovaný v 6. nadzemním podlaží rekonstruovaného domu. Nemovitost se nachází v krásné lokalitě Prahy 1 - Staré Město, disponující veškerou občanskou vybaveností a dobrou dopravní infrastrukturou.


Dispozice bytu zahrnuje vstupní chodbu, prostorný obývací pokoj s kuchyňským koutem, ložnici, koupelnu a samostatnou toaletu.


Nabízíme k pronájmu nezařízený byt, který disponuje vstupní chodbou s vestavěnými šatními skříněmi. Kuchyňský kout je plně vybaven sklokeramickou varnou deskou, troubou, lednicí s mrazákem a myčkou nádobí. Byt dále nabízí ložnici s vestavěnou skříní, koupelnu s vanou a samostatnou toaletu.


Bydlení v srdci staré Prahy, podél pravého břehu řeky Vltavy. V okruhu 10 minut chůze jsou zastávky MHD  - 3 stanice metra (Staroměstská, Národní třída, Můstek), autobusy a tramvaje. Na dálnici dojedete autem za 17 minut a na letiště Václava Havla za 22 minut. V pěší dostupnosti leží nákupní centrum Palladium, obchodní dům Máj, Havelské tržiště, nemocnice s lékárnou, banky, úřady, restaurace, kavárny a bary. V sousedství najdete Staroměstské náměstí, Starou židovskou čtvrť, Karlův most, Rudolfinum, divadla nebo Pařížskou ulici s luxusními butiky světových značek. V okolí nemovitosti se nachází několik mateřských, základních, středních a vysokých škol. Pro volnočasové aktivity můžete využít Letenské sady, Park Lannova nebo cyklostezku na náplavce Vltavy.



Výše vyúčtovatelných měsíčních záloh činí 1 250 Kč na osobu + elektřina a plyn.


Poptávající klient je srozuměn s úhradou provize ve výši 1 měsíčního nájmu plus DPH. 


Pokud si nemovitost nemůžete prohlédnout osobně, nabízíme Vám také videoprohlídku z pohodlí Vašeho domova v reálném čase přes Messenger, WhatsApp a další komunikační platformy.

Makléř

Máte zájem o tento byt?

Tímto, v souladu s nařízením Evropského parlamentu a Rady (EU) 2016/679, v platném znění, prohlašuji, že mi je alespoň 16 let a uděluji tak svůj souhlas se zpracováním zadaných údajů (jméno, telefon, e-mail, ip adresa) společnosti B3 Technology, s.r.o., IČ: 07330600, se sídlem Novostavby 126/23, 435 11 Lom (správce dat), za účelem předání dotazu z tohoto formuláře Vámi vybranému inzerentovi a zpětného kontaktování mé osoby. Osobní údaje bude správce zpracovávat manuálně i automaticky přímo prostřednictvím svých zaměstnanců. Informace předané tímto formulářem budou uloženy v databázi správce maximálně po dobu 10 let. Odvolání souhlasu s uložením a zpracováním poskytnutých dat lze e-mailem na info@origo-reality.cz. V případě podezření na neoprávněné použití Vámi poskytnutých údajů máte právo předat podnět k šetření Úřadu pro ochranu osobních údajů. Více informací
Chystáte se prodat nemovitost?
Pomůžeme Vám!