Pronájem výrobních prostor, Ústí nad Labem, U Tonasa, 1168 m2 (ID: 1937513)

U Tonasa, Ústí nad Labem, Neštěmice

Cena na vyžádání
/za měsíc
Získejte výhodnou HYPOTÉKU Chci hypotéku

Parametry nemovitosti

AdresaU Tonasa, Ústí nad Labem, Neštěmice
StavbaSmíšená
Stav objektuDobrý
Lokalita objektuOkraj obce
Užitná plocha1168 m2
Plocha zahrady600 m2
Elektřina230V
PlynPlynovod
OdpadVeřejná kanalizace
KomunikaceBetonová, Asfaltová, Zpevněná, Štěrková
TelekomunikaceInternet
DopravaVlak, Silnice, MHD, Autobus
VodaVodovod
Zdroj topeníPlynový kotel
Výtah

Origo partneři v Ústí nad Labem

Okna a dveře

Rekonstrukce

Popis

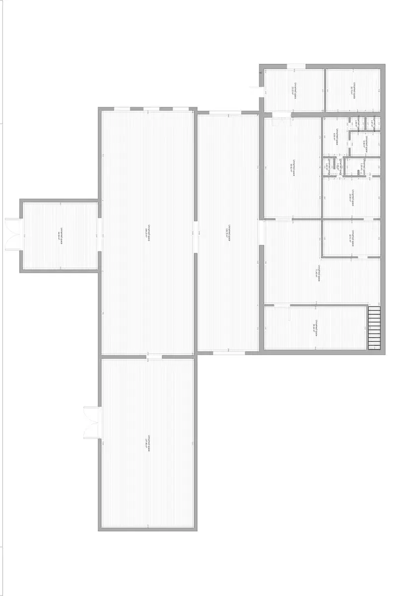
Pronájem skladové či výrobní haly č.706 nacházející se v průmyslové zóně TONASO Neštěmice.

Stručný popis:
- celková vnitřní plocha cca 1168 m2.
- Venkovní zpevněná plocha cca 600m2.
- V budově jsou k dispozici kanceláře se sociálním zázemím.
- Energie: Plyn, elektřina, voda, kanalizace.
- Připojení k internetu - optická síť.
- Ve výrobní hale se nachází celkem 2x Mostový jeřáb nosnost 3200Kg a 2x sloupový otočný jeřáb nosnost 250Kg.
- Prostor je součástí uzavřeného střeženého areálu.

- Možnost rozšíření pronájmu i o další prostory a venkovních plochy nacházejících se okolí haly.

Makléř

Máte zájem o tuto nemovistost?

Tímto, v souladu s nařízením Evropského parlamentu a Rady (EU) 2016/679, v platném znění, prohlašuji, že mi je alespoň 16 let a uděluji tak svůj souhlas se zpracováním zadaných údajů (jméno, telefon, e-mail, ip adresa) společnosti B3 Technology, s.r.o., IČ: 07330600, se sídlem Novostavby 126/23, 435 11 Lom (správce dat), za účelem předání dotazu z tohoto formuláře Vámi vybranému inzerentovi a zpětného kontaktování mé osoby. Osobní údaje bude správce zpracovávat manuálně i automaticky přímo prostřednictvím svých zaměstnanců. Informace předané tímto formulářem budou uloženy v databázi správce maximálně po dobu 10 let. Odvolání souhlasu s uložením a zpracováním poskytnutých dat lze e-mailem na info@origo-reality.cz. V případě podezření na neoprávněné použití Vámi poskytnutých údajů máte právo předat podnět k šetření Úřadu pro ochranu osobních údajů. Více informací
Chystáte se prodat nemovitost?
Pomůžeme Vám!

Přihlášení k odběru

Nenechte si ujít nejnovější nabídky pronájmu výrobních prostor v Ústí nad Labem.