Remax Monarcha

Pronájem bytu 2+kk, Olomouc, Loudova, 56 m2 (ID: 1937502)

Loudova, Olomouc, Slavonín

18 000 Kč
/za měsíc
+ zálohy na energie a internet 3.500,-
Získejte výhodnou HYPOTÉKU Chci hypotéku

Parametry bytu

AdresaLoudova, Olomouc, Slavonín
ID0114
StavbaCihlová
Stav objektuVelmi dobrý
Patro3. z 5
VlastnictvíOsobní
Užitná plocha56 m2
Třída energetické náročnostiB - Velmi úsporná
PlynPlynovod
OdpadVeřejná kanalizace
Garáž
Sklep
Lodžie
Výtah

Origo partneři v Olomouci

Popis

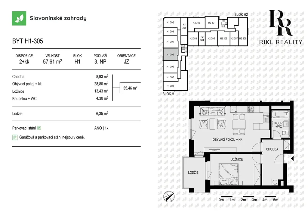
Nabízíme k pronájmu krásný, zcela nový byt o dispozici 2+kk s lodžií, který se nachází v právě dokončeném bytovém domě v moderním rezidenčním projektu Slavonínské zahrady na ulici Loudova v Olomouci. Jedná se o klidnou čtvrť bytových novostaveb na okraji města s výbornou dostupností do centra. Lokalita nabízí kompletní občanskou vybavenost včetně škol, školek, pošty, obchodů i tramvajové zastávky, která zajišťuje pohodlné spojení do centra města. Velkou výhodou je také blízkost přírody a rychlé napojení na dálniční obchvat.

Byt se nachází v pětipodlažním, plně bezbariérovém bytovém domě s energetickým štítkem třídy B, který zajišťuje úsporný provoz. Samotný byt o užitné ploše 55,46 m² je situován ve 3. nadzemním podlaží a je orientován na jihozápadní stranu, díky čemuž je velmi světlý a příjemný. K bytu náleží také komora o velikosti 3,7 m² a lodžie o ploše 6,35 m².

Dispozice bytu nabízí prostornou vstupní chodbu se samostatnými vstupy do jednotlivých místností a koupelnu s toaletou. Dominantou bytu je velký, velmi dobře prosvětlený obytný prostor s novou, plně vybavenou kuchyňskou linkou, jídelní a obytnou částí. Pro maximální komfort je byt vybaven klimatizací a žaluziemi. Z ložnice je přímý vstup na lodžii, která poskytuje ideální místo k odpočinku.

Byt je k nastěhování od 1. 2. 2026. Momentálně probíhá montáž nábytku .K bytu je možné si pronajmout vnitřní parkovací stání za cenu 1.500 Kč měsíčně. Preferujeme dlouhodobého nájemce, nekuřáka, bez domácích mazlíčků. V případě zájmu o prohlídku nás neváhejte kontaktovat, rádi vám byt osobně představíme. Při podpisu Rezervační smlouvy, klient skládá Rezervační zálohu ve výši 1 nájmu + DPH, 1 nájem dopředu a kauci ve výši dvou nájmů.

Makléř

Máte zájem o tento byt?

Tímto, v souladu s nařízením Evropského parlamentu a Rady (EU) 2016/679, v platném znění, prohlašuji, že mi je alespoň 16 let a uděluji tak svůj souhlas se zpracováním zadaných údajů (jméno, telefon, e-mail, ip adresa) společnosti B3 Technology, s.r.o., IČ: 07330600, se sídlem Novostavby 126/23, 435 11 Lom (správce dat), za účelem předání dotazu z tohoto formuláře Vámi vybranému inzerentovi a zpětného kontaktování mé osoby. Osobní údaje bude správce zpracovávat manuálně i automaticky přímo prostřednictvím svých zaměstnanců. Informace předané tímto formulářem budou uloženy v databázi správce maximálně po dobu 10 let. Odvolání souhlasu s uložením a zpracováním poskytnutých dat lze e-mailem na info@origo-reality.cz. V případě podezření na neoprávněné použití Vámi poskytnutých údajů máte právo předat podnět k šetření Úřadu pro ochranu osobních údajů. Více informací
Chystáte se prodat nemovitost?
Pomůžeme Vám!

Přihlášení k odběru

Nenechte si ujít nejnovější nabídky pronájmu bytů 2+kk v Olomouci.