Soccer reality

Prodej rodinného domu, Praha - Hostavice, 330 m2

Praha, Hostavice

24 950 000 Kč
/za nemovitost
Hypotéka od 111 511 Kč /měs. Chci hypotéku

Parametry domu

AdresaPraha, Hostavice
StavbaCihlová
Stav objektuVelmi dobrý
Druh objektuSamostatný
Lokalita objektuKlidná část obce
Užitná plocha330 m2
Zastavěná plocha128 m2
Plocha pozemku558 m2
Plocha zahrady430 m2
Třída energetické náročnostiG - Mimořádně nehospodárná
PlynPlynovod
OdpadVeřejná kanalizace
DopravaVlak, Dálnice, MHD, Autobus
VodaVodovod
Topné tělesoRadiátory
Zdroj topeníPlynový kotel
Zdroj teplé vodyPlynový kotel
Garáž
Sklep

Origo partneři v Praze 9

Stěhovací služby

Výkup a prodej starého nábytku

Popis

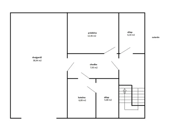
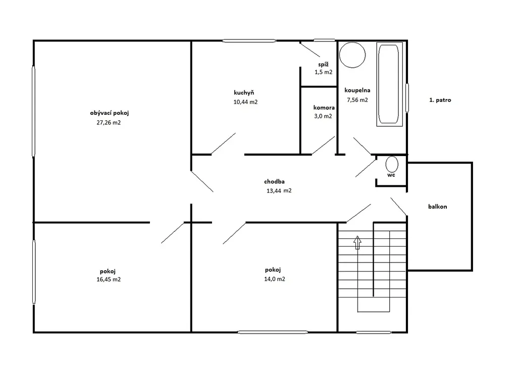
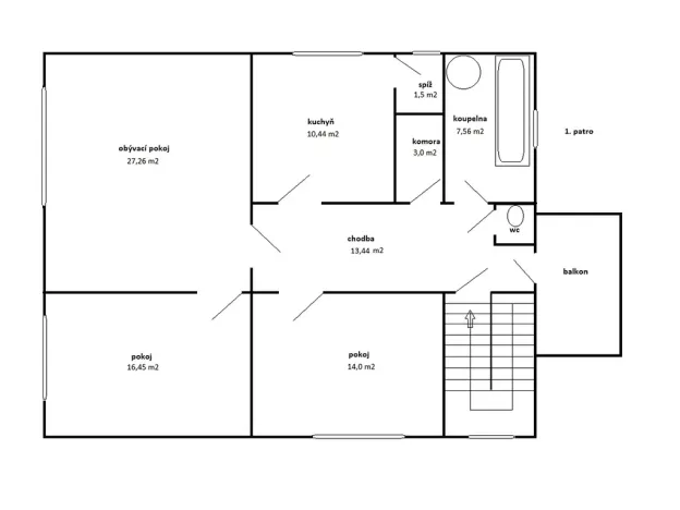
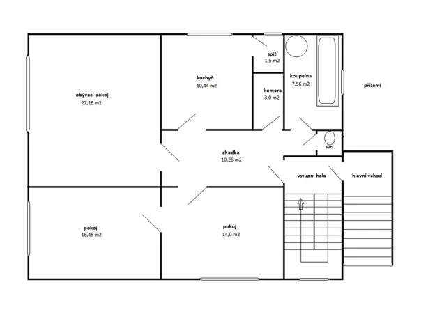
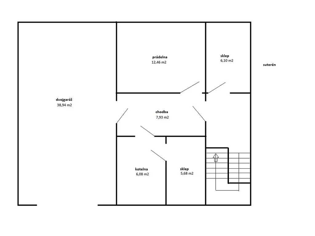
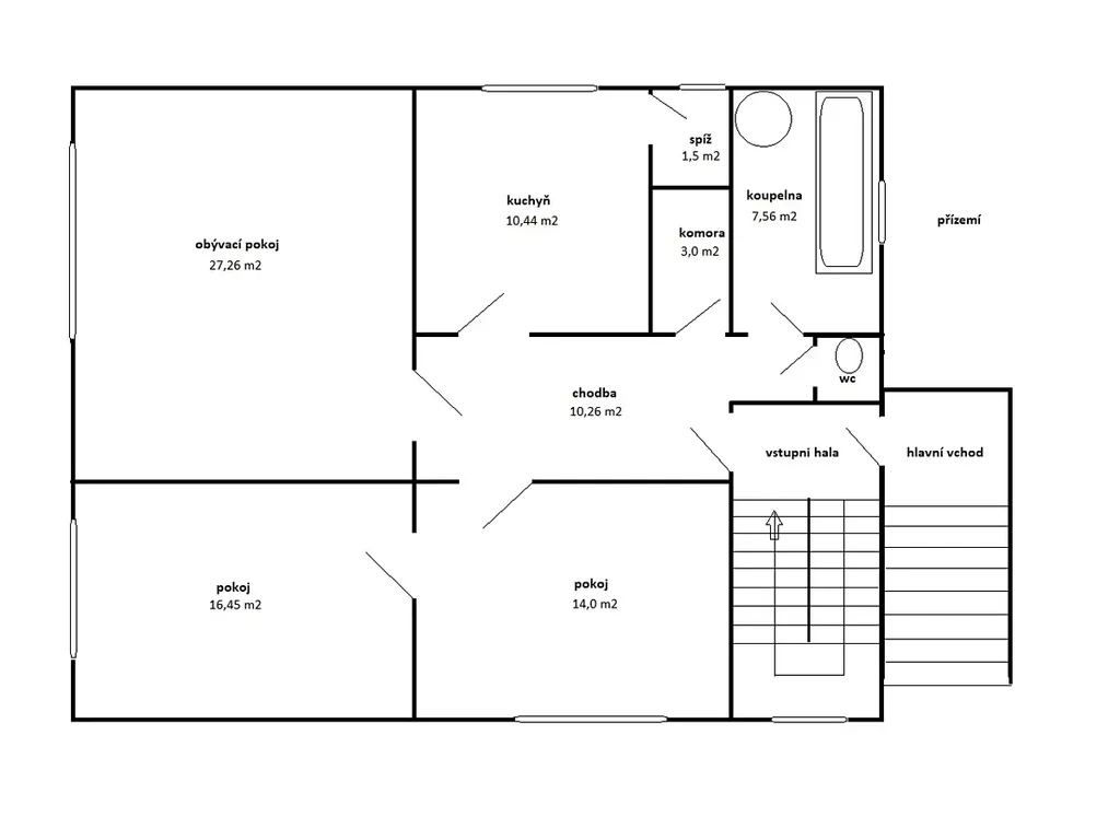
Nabízíme k prodeji dvougenerační rodinný dům o celkové podlahové ploše 330 m2. Dům pochází z 80. let a je pečlivě udržován. Skládá se ze dvou samostatných bytových jednotek o dispozici 3+1, každá o celkové ploše cca 100 m2 (viz. plánek) se společným schodištěm. V suterénu domu se kromě sklepů nachází prostorná dvojgaráž s el. otevíráním vrat. Teplo v celém domě zajišťuje plynový kotel. Dům má plastová okna a je obklopen zahradou (430 m2) se zahradním domkem.
Nachází se v klidné vilové čtvrti. V blízkosti jsou obchody, restaurace, školka a autobusová zastávka, ze které se dostanete za 7 min. na stanici metra Rajská zahrada, za 16 min. na stanici metra Palmovka nebo za 15 min. na stanici metra Depo Hostivař. Dále je možné využívat blízkou stanici Českých drah s dojezdem 13 min. na Masarykovo nádraží.
Ukazatel energetické náročnosti: G* (v tuto chvíli probíhá vypracování PENB, údaj bude aktualizován).

Makléř

Máte zájem o tento dům?

Tímto, v souladu s nařízením Evropského parlamentu a Rady (EU) 2016/679, v platném znění, prohlašuji, že mi je alespoň 16 let a uděluji tak svůj souhlas se zpracováním zadaných údajů (jméno, telefon, e-mail, ip adresa) společnosti B3 Technology, s.r.o., IČ: 07330600, se sídlem Novostavby 126/23, 435 11 Lom (správce dat), za účelem předání dotazu z tohoto formuláře Vámi vybranému inzerentovi a zpětného kontaktování mé osoby. Osobní údaje bude správce zpracovávat manuálně i automaticky přímo prostřednictvím svých zaměstnanců. Informace předané tímto formulářem budou uloženy v databázi správce maximálně po dobu 10 let. Odvolání souhlasu s uložením a zpracováním poskytnutých dat lze e-mailem na info@origo-reality.cz. V případě podezření na neoprávněné použití Vámi poskytnutých údajů máte právo předat podnět k šetření Úřadu pro ochranu osobních údajů. Více informací
Chystáte se prodat nemovitost?
Pomůžeme Vám!

Přihlášení k odběru

Nenechte si ujít nejnovější nabídky prodeje rodinných domů v Praze 9.