Prodej bytu 2+1, Sobotín, 60 m2

Sobotín

2 650 000 Kč
/za nemovitost
včetně provize RK
Hypotéka od 11 844 Kč /měs. Chci hypotéku

Parametry bytu

Náklady na bydlení3.175 Kč + elektřina a plyn
AdresaSobotín
IDflat424
StavbaPanelová
Stav objektuVelmi dobrý
Patro2.
VybavenoČástečně
Lokalita objektuKlidná část obce
VlastnictvíOsobní
Užitná plocha60 m2
Třída energetické náročnostiD - Méně úsporná
Elektřina230V
PlynPlynovod
OdpadVeřejná kanalizace
TelekomunikaceKabelové rozvody
DopravaVlak, Silnice, Autobus
VodaVodovod
Topné tělesoRadiátory
Zdroj topeníPlynový kotel
Zdroj teplé vodyBojler - elektro
Balkon
Sklep
Výtah
Bezbarierový přístup

Origo partneři v Sobotíně

Popis

PRODEJ BYTU 2+1 V OSOBNÍM VLASTNICTVÍ – SOBOTÍN, OKR. ŠUMPERK

Hledáte klidné a dobře řešené bydlení v příjemném prostředí s dostatkem zeleně? Tento světlý a velmi pečlivě udržovaný byt 2+1 v osobním vlastnictví nabízí komfortní bydlení s praktickou dispozicí a příjemnou atmosférou. Nachází se v oblíbené obci Sobotín, v klidné části obklopené přírodou Jeseníků, která je ideální jak pro trvalé bydlení, tak jako dlouhodobá investice.

BYT / DISPOZICE A PROSTOR
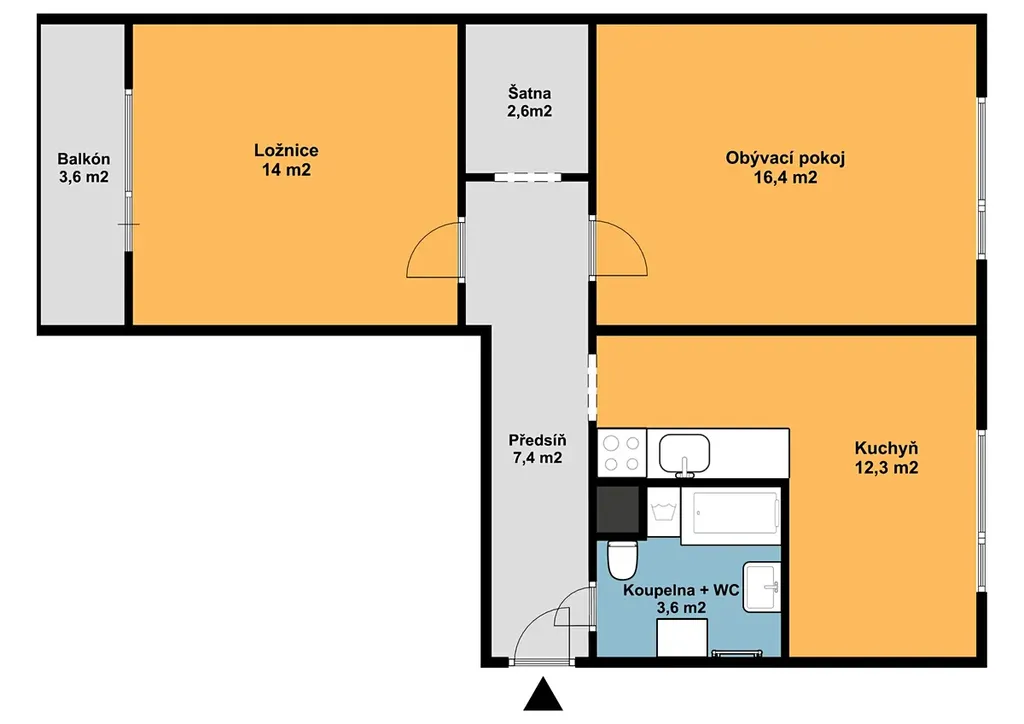
Byt o celkové podlahové ploše 59,65 m² je situován ve 2. nadzemním podlaží panelového domu s pouhými 12 bytovými jednotkami. Dům je klidný, bez výtahu, s příjemnou sousedskou atmosférou. Dispozice 2+1 je mimořádně praktická – samostatné místnosti, dostatek úložných prostor a příjemný balkon jako bonus.

• obývací pokoj 16,39 m²
• ložnice 13,94 m²
• kuchyně 12,25 m²
• předsíň 7,36 m²
• koupelna s WC 3,60 m²
• šatna / komora 2,61 m²
• balkon 3,55 m²
• sklep 3,30 m²

INTERIÉR / TECHNICKÝ STAV
Interiér prošel rekonstrukcí v roce 2008, která přinesla zděné bytové jádro, nové omítky, interiérové dveře a kuchyňskou linku. V roce 2018 byly doplněny kvalitní protipožární a bezpečnostní vstupní dveře, které podtrhují pocit klidu a soukromí.

• plastová okna s izolačními dvojskly a žaluziemi
• ústřední vytápění z plynové kotelny v domě
• radiátory s termoregulačními ventily a měřiči tepla

NÁKLADY A ENERGETIKA
Byt je provozně velmi rozumný, vhodný jak pro vlastní bydlení, tak jako investice.

• měsíční náklady: 3.175 Kč
• elektřina a plyn dle skutečné spotřeby
• energetická náročnost budovy: třída D

PRÁVNÍ STAV
Nemovitost je v osobním vlastnictví, bez jakýchkoli právních vad, zástav, exekucí či omezení vlastnického práva. Převod je tak přímý, transparentní a bez komplikací.
• byt bez zástavních práv
• bez věcných břemen
• vhodné i pro financování hypotékou


LOKALITA / ŽIVOT V JESENÍKÁCH
Sobotín patří mezi vyhledávané obce pro ty, kteří chtějí bydlet v klidu, ale neztratit kontakt se světem. Kombinace přírody, historie a občanské vybavenosti zde funguje přirozeně a dlouhodobě.

• mateřská a základní škola, obchody, obecní úřad, lékaři
• železniční zastávka
• lyžařský areál, turistické a cyklistické trasy
• zámek, tradiční pivovar

Tento byt představuje vyvážené, stabilní a nadčasové bydlení v lokalitě, která si dlouhodobě drží svou hodnotu i kouzlo. Možnost financování hypotékou.

Makléř

Máte zájem o tento byt?

Tímto, v souladu s nařízením Evropského parlamentu a Rady (EU) 2016/679, v platném znění, prohlašuji, že mi je alespoň 16 let a uděluji tak svůj souhlas se zpracováním zadaných údajů (jméno, telefon, e-mail, ip adresa) společnosti B3 Technology, s.r.o., IČ: 07330600, se sídlem Novostavby 126/23, 435 11 Lom (správce dat), za účelem předání dotazu z tohoto formuláře Vámi vybranému inzerentovi a zpětného kontaktování mé osoby. Osobní údaje bude správce zpracovávat manuálně i automaticky přímo prostřednictvím svých zaměstnanců. Informace předané tímto formulářem budou uloženy v databázi správce maximálně po dobu 10 let. Odvolání souhlasu s uložením a zpracováním poskytnutých dat lze e-mailem na info@origo-reality.cz. V případě podezření na neoprávněné použití Vámi poskytnutých údajů máte právo předat podnět k šetření Úřadu pro ochranu osobních údajů. Více informací
Chystáte se prodat nemovitost?
Pomůžeme Vám!

Přihlášení k odběru

Nenechte si ujít nejnovější nabídky prodeje bytů 2+1 v Sobotíně.