Prodej bytu 2+kk, Kašperské Hory, Česká, 46 m2 (ID: 1936043)

Česká, Kašperské Hory

Cena na vyžádání
/za nemovitost
Získejte výhodnou HYPOTÉKU Chci hypotéku

Parametry bytu

AdresaČeská, Kašperské Hory
StavbaSmíšená
Stav objektuVe výstavbě
Patro3. z 3
Lokalita objektuKlidná část obce
VlastnictvíOsobní
Užitná plocha46 m2
Třída energetické náročnostiB - Velmi úsporná
Elektřina400V
OdpadVeřejná kanalizace
KomunikaceAsfaltová
DopravaSilnice, Autobus
VodaVodovod
Topné tělesoRadiátory
Zdroj topeníCentrální dálkové
Zdroj teplé vodyCentrální dálkový ohřev
Balkon
Sklep
Výtah
Bezbarierový přístup

Origo partneři v Kašperských Horách

Podlahy

Stěhovací služby

Popis

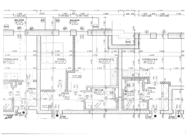
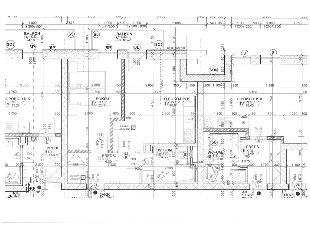
Nabízíme Vám k prodeji nový byt o velikosti 2+kk+balkon označený jako byt 18, nacházející se ve 3. NP o celkové ploše včetně balkonů a zděného sklepa 46 m2, který bude stavěn v rámci projektu Byty Kašperky ve velmi klidné části Kašperských Hor v České ul. s výhledem na okolní krajinu a přitom v docházkové vzdálenosti od centra Kašperských Hor, které se nacházejí kousek od hranic Národního parku Šumava.

V bytě bude k dispozici obývací pokoj s kuchyňským koutem (16,61 m2), pokoj (12,17 m2), předsíň (6,00 m2), koupelna s WC (4,66 m2) a balkon (4,18 m2). Dále k bytu náleží zděný sklep (cca 1,9 m2) v 1. podzemním podlaží domu. Byt bude osazen dobrými standardy zařizovacích předmětů.

Tento byt zde uvádíme jako modelový, v prodeji jsou ještě další byty 2+kk umístěné v různých podlažích domu. K dispozici jsou pro Vás také byty 1+kk.

Podrobné informace získáte u prodejce bytů ABJ reality s.r.o.

K bytu je možné si zakoupit kryté parkovací stání v 1.PP objektu nebo venkovní parkovací stání nacházející se na přilehlém pozemku u domu.

Projekt Byty Kašperky tak představuje ideální kombinaci bydlení či místa pro rekreaci v klidné části Kašperských Hor s centrem dostupným v docházkové vzdálenosti, kde je k dispozici velmi dobrá občanská vybavenost. Ve vzdálenosti cca 100 m od bytového domu je k dispozici oplocené velké dětské hřiště.

Samotná budova bytového domu má tři nadzemních podlaží a jedno podzemní podlaží, ve kterém budou k dispozici krytá parkovací stání a sklepy pro jednotlivé byty. Bytový dům má jeden centrální vchod s výtahem. Nebudou zde žádné komerční prostory. Vytápění domu a ohřev vody bude zajištěno centrálně pomocí teplovodu.

Stavba bytového domu se zahajuje v říjnu 2024, dokončení domu je naplánováno na podzim roku 2026.

Aktuality z výstavby domu: byla dokončena venkovní fasáda domu, provádí se modelace příjezdové komunikace a v bytech se provádí práce na koupelnách a kompletace bytů.

Makléř

Máte zájem o tento byt?

Tímto, v souladu s nařízením Evropského parlamentu a Rady (EU) 2016/679, v platném znění, prohlašuji, že mi je alespoň 16 let a uděluji tak svůj souhlas se zpracováním zadaných údajů (jméno, telefon, e-mail, ip adresa) společnosti B3 Technology, s.r.o., IČ: 07330600, se sídlem Novostavby 126/23, 435 11 Lom (správce dat), za účelem předání dotazu z tohoto formuláře Vámi vybranému inzerentovi a zpětného kontaktování mé osoby. Osobní údaje bude správce zpracovávat manuálně i automaticky přímo prostřednictvím svých zaměstnanců. Informace předané tímto formulářem budou uloženy v databázi správce maximálně po dobu 10 let. Odvolání souhlasu s uložením a zpracováním poskytnutých dat lze e-mailem na info@origo-reality.cz. V případě podezření na neoprávněné použití Vámi poskytnutých údajů máte právo předat podnět k šetření Úřadu pro ochranu osobních údajů. Více informací
Chystáte se prodat nemovitost?
Pomůžeme Vám!

Přihlášení k odběru

Nenechte si ujít nejnovější nabídky prodeje bytů 2+kk v Kašperských Horách.