Pronájem bytu 1+1, Praha - Braník, Nad malým mýtem, 39 m2

Nad malým mýtem, Praha, Braník

19 900 Kč
/za měsíc
Získejte výhodnou HYPOTÉKU Chci hypotéku

Parametry bytu

AdresaNad malým mýtem, Praha, Braník
ID965388
StavbaCihlová
Stav objektuDobrý
Patro4. z 5
VlastnictvíOsobní
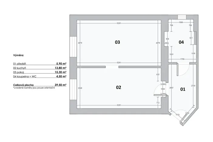
Užitná plocha39 m2
Podlahová plocha39 m2
Třída energetické náročnostiC - Úsporná
Elektřina230V
OdpadVeřejná kanalizace
DopravaMHD
VodaVodovod

Origo partneři v Praze 4

Stěhovací služby

Výkup a prodej starého nábytku

Popis

Nabízíme k pronájmu byt 1+1 o celkové ploše 39,5 m², který se nachází ve 4. nadzemním podlaží cihlového domu bez výtahu v klidné lokalitě pražského Braníka.

Kuchyň o velikosti 13,8 m² je vybavena moderní kuchyňskou linkou se sklokeramickou varnou deskou, troubou, vestavěnou myčkou a lednicí s mrazákem. Kuchyň a hlavní obytný prostor jsou orientovány na východ s příjemným výhledem do klidného dvora se zelení.

Byt je po částečné rekonstrukci a je vybaven bezpečnostními vstupními dveřmi. Laminátová plovoucí podlaha je položena ve všech místnostech, vyjma koupelny. V bytě je instalované elektrické přímotopné topení s digitálním termostatem. Ohřev teplé vody je zajištěn elektrickým bojlerem.

Byt je ideální pro jednu osobu nebo pár a je k okamžitému nastěhování.

výše nájemného: 19.900 Kč/měs
zúčtovatelné zálohy pro 1 osobu 1.100 Kč/měs, pro 2 osoby 1.500 Kč/měs
el. energie se přepisuje na nájemníka (zálohy 1500 Kč/měs)
výše jistoty (kauce): 39.800 Kč
provize RK: 10.000 Kč + DPH

Makléř

Máte zájem o tento byt?

Tímto, v souladu s nařízením Evropského parlamentu a Rady (EU) 2016/679, v platném znění, prohlašuji, že mi je alespoň 16 let a uděluji tak svůj souhlas se zpracováním zadaných údajů (jméno, telefon, e-mail, ip adresa) společnosti B3 Technology, s.r.o., IČ: 07330600, se sídlem Novostavby 126/23, 435 11 Lom (správce dat), za účelem předání dotazu z tohoto formuláře Vámi vybranému inzerentovi a zpětného kontaktování mé osoby. Osobní údaje bude správce zpracovávat manuálně i automaticky přímo prostřednictvím svých zaměstnanců. Informace předané tímto formulářem budou uloženy v databázi správce maximálně po dobu 10 let. Odvolání souhlasu s uložením a zpracováním poskytnutých dat lze e-mailem na info@origo-reality.cz. V případě podezření na neoprávněné použití Vámi poskytnutých údajů máte právo předat podnět k šetření Úřadu pro ochranu osobních údajů. Více informací
Chystáte se prodat nemovitost?
Pomůžeme Vám!