Pronájem bytu 1+kk, Praha - Stodůlky, Holýšovská, 12052 m2

Holýšovská, Praha 5

16 000 Kč
/za měsíc
Získejte výhodnou HYPOTÉKU Chci hypotéku

Parametry bytu

AdresaHolýšovská, Praha 5
ID18448
StavbaSmíšená
Stav objektuVelmi dobrý
Patro10. z 13
VybavenoČástečně
Lokalita objektuSídliště
VlastnictvíOsobní
Užitná plocha12052 m2
Zastavěná plocha1504 m2
Podlahová plocha12052 m2
Třída energetické náročnostiG - Mimořádně nehospodárná
Elektřina230V
PlynPlynovod
OdpadVeřejná kanalizace
KomunikaceAsfaltová
DopravaDálnice, Silnice, MHD, Autobus
VodaVodovod
Balkon
Sklep
Výtah

Origo partneři v Praze 5

Stěhovací služby

Výkup a prodej starého nábytku

Popis

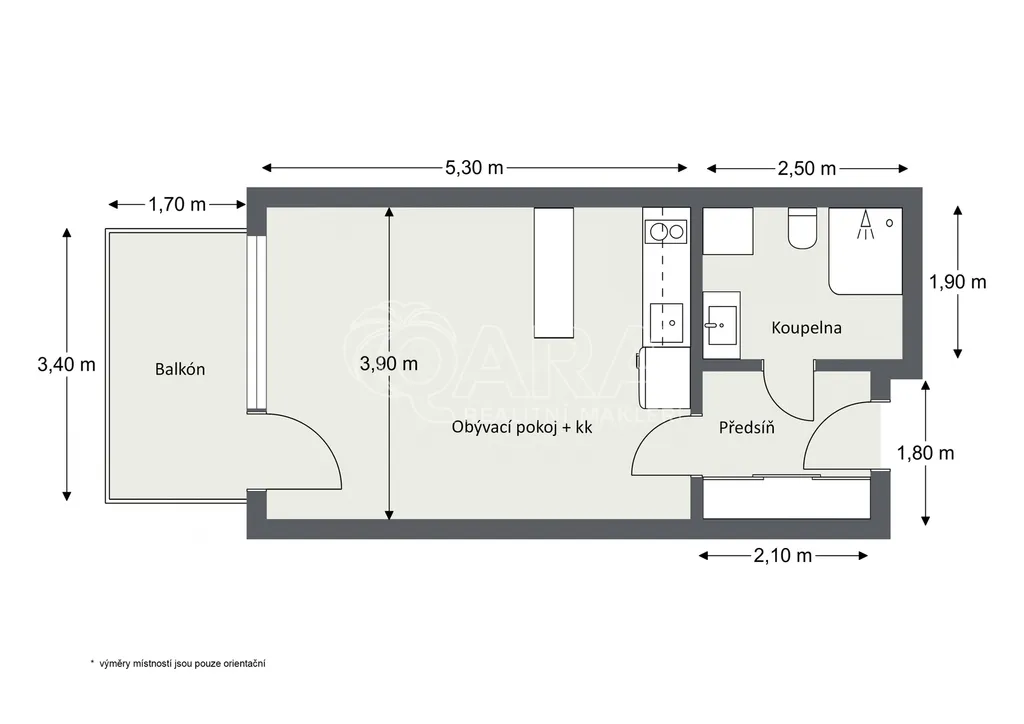
Nabízím k pronájmu světlý byt 1+kk s balkonem. Podlahová plocha bytu je 30 m2 a další rozšíření životního prostoru Vám nabízí balkon o rozloze 6m2.
Byt se nachází v 9. patře moderního domu ve Stodůlkách. V domě máte k dispozici 2 výtahy. Součástí vybavení bytu je kuchyňská linka, lednice, pračka a velká šatní skříň.

Byt má vlastní vodoměr i elektroměr, výši spotřeby si tedy určujete sami. Poplatky za energie si majitelé ponechají přepsané na sebe, platit budete zálohové platby a vyúčtování proběhne jednou ročně. K bytu patří také sklepní komora vhodná k uložení kola nebo lyží.
Majitelé preferují klidné nájemníky – jednoznačně nekuřáky. Zvířecí mazlíčci zde nejsou vítáni. Pro majitele hledám nájemníky, kteří budou schopni dodržovat zásady klidného sousedského soužití. Stejně tak majitelé očekávají ohleduplnost vůči pronajímanému zařízení bytu.

Měsíční nájemné je ve výši 16 000 Kč + poplatky včetně zálohy za elektřinu ve výši 4000 Kč. Byt je připravený k okamžitému nastěhování.
Do 5 minut chůze najdete kompletní občanskou vybavenost – obchody, fitness, kavárny, lékárnu. To vše je u stanice metra Luka. Dobré dopravní spojení s centrem vám zajišťují i nedaleké autobusové zastávky.

Počáteční platba se skládá z vratné kauce 16 000 Kč + nájemné 16 000 Kč + poplatky 4000 Kč + provize zprostředkovatele 16 000 Kč.
Pro jakékoli další dotazy mi kdykoli zavolejte.

Makléř

Máte zájem o tento byt?

Tímto, v souladu s nařízením Evropského parlamentu a Rady (EU) 2016/679, v platném znění, prohlašuji, že mi je alespoň 16 let a uděluji tak svůj souhlas se zpracováním zadaných údajů (jméno, telefon, e-mail, ip adresa) společnosti B3 Technology, s.r.o., IČ: 07330600, se sídlem Novostavby 126/23, 435 11 Lom (správce dat), za účelem předání dotazu z tohoto formuláře Vámi vybranému inzerentovi a zpětného kontaktování mé osoby. Osobní údaje bude správce zpracovávat manuálně i automaticky přímo prostřednictvím svých zaměstnanců. Informace předané tímto formulářem budou uloženy v databázi správce maximálně po dobu 10 let. Odvolání souhlasu s uložením a zpracováním poskytnutých dat lze e-mailem na info@origo-reality.cz. V případě podezření na neoprávněné použití Vámi poskytnutých údajů máte právo předat podnět k šetření Úřadu pro ochranu osobních údajů. Více informací
Chystáte se prodat nemovitost?
Pomůžeme Vám!