Prodej vily, Praha, Na pískách, 528 m2

Na pískách, Praha 6

79 980 000 Kč
/za nemovitost
Hypotéka od 357 462 Kč /měs. Chci hypotéku

Parametry domu

AdresaNa pískách, Praha 6
IDR321
StavbaCihlová
Stav objektuPřed rekonstrukcí
VybavenoNe
Typ objektuPatrový
Druh objektuSamostatný
Lokalita objektuKlidná část obce
Užitná plocha528 m2
Zastavěná plocha269 m2
Plocha pozemku985 m2
Plocha zahrady716 m2
Třída energetické náročnostiG - Mimořádně nehospodárná
PlynPlynovod
OdpadVeřejná kanalizace
KomunikaceAsfaltová
VodaVodovod
Garáž
Převod do OV

Origo partneři v Praze 6

Stěhovací služby

Výkup a prodej starého nábytku

Pojištění a finance

Popis

(R321) Nabízíme k prodeji prvorepublikovou, vícegenerační, samostatnou vilu z 30.let na pozemku o velikosti 985 m2 v rezidenční čtvrti Prahy 6 – Hanspaulka
Celková užitná plocha domu je cca 528 m2
Vila má jedno podzemní a 3 nadzemní podlaží.
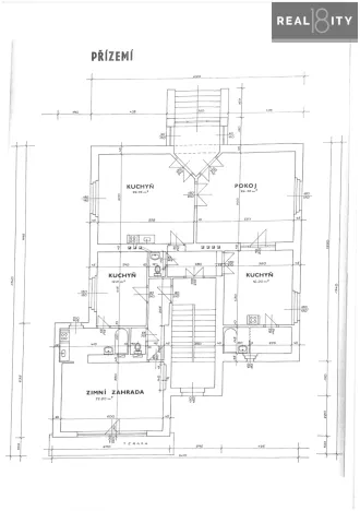
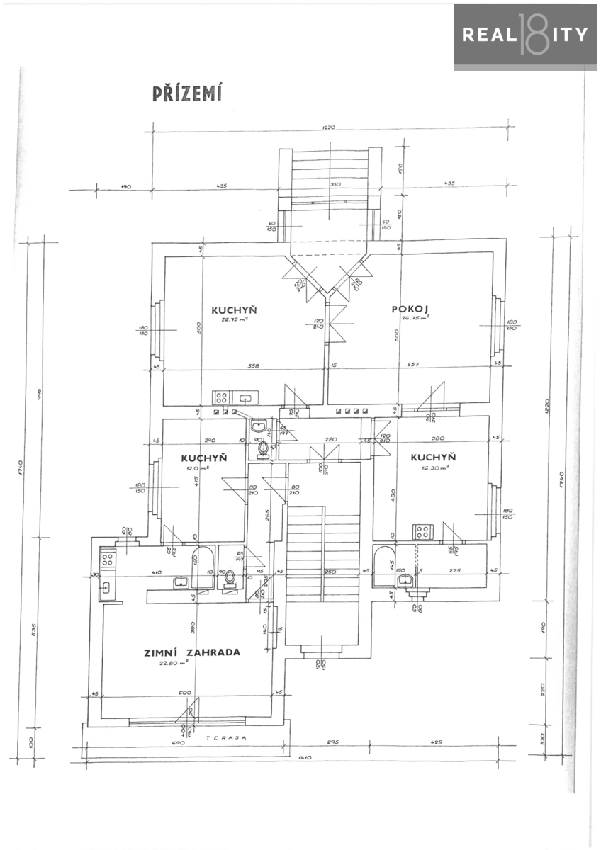
V přízemí domu se nachází vstupní hala se schodištěm, kuchyň, čtyři pokoje, koupelna, samostatná toaleta a komora.
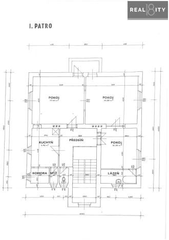
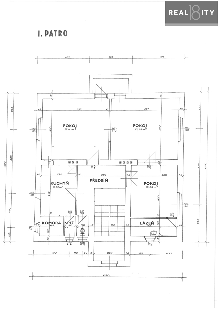
V 1. patře se nachází kuchyň, komora, 3 pokoje, zimní zahrada, koupelna, samostatná toaleta.
V podkroví jsou dva pokoje, koupelna s vanou, toaletou, vstup na půdu, kde lze vybudovat další obytný prostor.
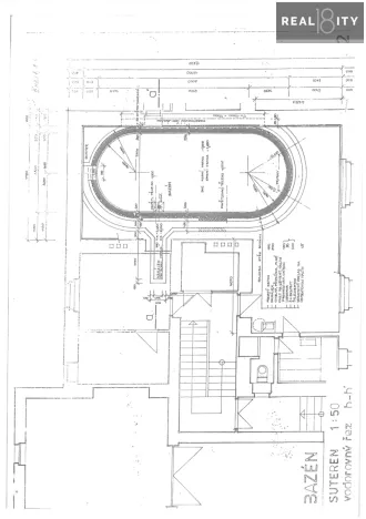
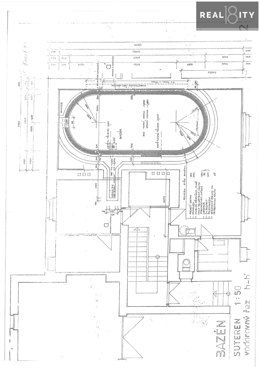
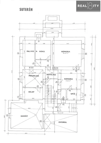
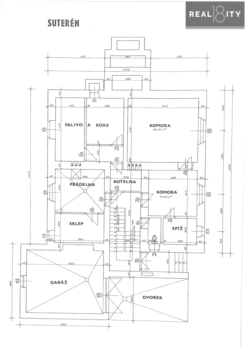
V 1. podzemním podlaží se nachází prádelna se sušárnou, kotelna, bazén, sauna, koupelna se sprchovým koutem a toaletou.
Podlahu pokrývají parkety, dlažba. Špaletová okna. Vytápění plynovým kotlem, ohřev vody bojlerem.
Garáž, další možnost parkování na zpevněném povrchu u domu.
Vila je z roku 1932 v původním, avšak v udržovaném stavu, má valbovou (zkosení ze všech 4 stran) střechu.
Vila má velký potenciál využití. Je vhodná pro bydlení i pro podnikání.
Výborné spojení autem i MHD do centra Prahy a na letiště, u domu autobusová zastávka Dyrinka.
V okolí jsou v docházkové vzdálenosti tenisové kurty, obchod, restaurace, park.
Pro rezidenty parkovaní zajištěno na modré zóně.
Dům byl postaven před r. 1947, PENB se nevyžaduje.
Výhradní zprostředkování koupě této nemovitosti vám zajistí klidný a bezstarostný průběh celé transakce.
V případě zájmu o prohlídku či jakýchkoliv dotazů týkajících se koupě této nemovitosti nás neváhejte kontaktovat na uvedeném telefonním čísle či prostřednictvím e-mailu.
Majitel si vyhrazuje právo prodat nemovitost nejvýhodnější nabídce.
Koupi je možné financovat i hypotečním úvěrem. Vyřízení hypotéky pro případného zájemce je zajištěno, nabídneme Vám zdarma srovnání všech bank a vyjednáme nejpříznivější podmínky financování.
Najdete nás přímo u „Kulaťáku“ na Praze 6 od pondělí do čtvrtka (9:00 – 18:00 hod.) a v pátek (9:00 – 16:00 hod.).

Makléř

Máte zájem o tento dům?

Tímto, v souladu s nařízením Evropského parlamentu a Rady (EU) 2016/679, v platném znění, prohlašuji, že mi je alespoň 16 let a uděluji tak svůj souhlas se zpracováním zadaných údajů (jméno, telefon, e-mail, ip adresa) společnosti B3 Technology, s.r.o., IČ: 07330600, se sídlem Novostavby 126/23, 435 11 Lom (správce dat), za účelem předání dotazu z tohoto formuláře Vámi vybranému inzerentovi a zpětného kontaktování mé osoby. Osobní údaje bude správce zpracovávat manuálně i automaticky přímo prostřednictvím svých zaměstnanců. Informace předané tímto formulářem budou uloženy v databázi správce maximálně po dobu 10 let. Odvolání souhlasu s uložením a zpracováním poskytnutých dat lze e-mailem na info@origo-reality.cz. V případě podezření na neoprávněné použití Vámi poskytnutých údajů máte právo předat podnět k šetření Úřadu pro ochranu osobních údajů. Více informací
Chystáte se prodat nemovitost?
Pomůžeme Vám!
Theleadway banner

Přihlášení k odběru

Nenechte si ujít nejnovější nabídky prodeje vil v Praze 6.