Soccer reality

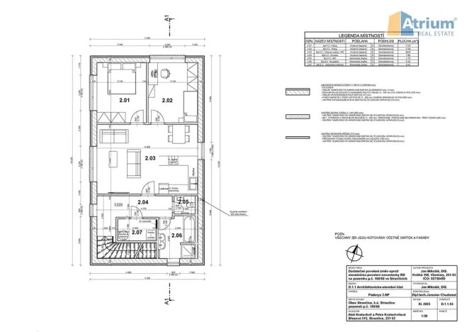
Pronájem bytu 3+kk, Strančice, Březová, 76 m2

Březová, Strančice

28 000 Kč
/za měsíc
Cena je uvedena bez vyúčtovatelných poplatků ( elektřina, vodné, stočné ).
Získejte výhodnou HYPOTÉKU Chci hypotéku

Parametry bytu

AdresaBřezová, Strančice
ID939428
StavbaCihlová
Stav objektuNovostavba
Patro2. z 2
VybavenoČástečně
VlastnictvíOsobní
Užitná plocha76 m2
Podlahová plocha82 m2
Plocha zahrady35 m2
Třída energetické náročnostiC - Úsporná
Elektřina230V
OdpadVeřejná kanalizace
KomunikaceAsfaltová
TelekomunikaceInternet
DopravaVlak, Dálnice, Silnice, MHD, Autobus
VodaVodovod
Topné tělesoPodlahové vytápění
Zdroj topeníTepelné čerpadlo
Parkování

Origo partneři v Strančicích

Popis

Nabízím exkluzivně pronájem novostavby bytu 3+kk o rozloze 82 m², situovanou v prvním patře zděného, zatepleného domu v malebné obci Strančice, v ulici Březová, 100 m od lesa. Tato nabídka je ideální pro ty, kteří hledají moderní bydlení v klidné lokalitě s výbornou občanskou vybaveností a dostupností do Prahy.

Byt se pyšní prostorným obývacím pokojem spojeným s novou kuchyní ORESI (kuchyňským koutem), kde jsou instalovány kvalitní spotřebiče indukční varná deska, mikrovlnná trouba, vestavěná elektrická trouba, myčka a samostatně stojící lednice. Celková obytná plocha bytu činí 82 m² s dostatečným množstvím přirozeného světla a pohodlným uspořádáním, které novému nájemníkovi poskytne ideální prostor pro relaxaci i práci z domova.

Dům je postaven z kvalitních cihel a zateplen, což zajišťuje výbornou izolaci a nízké provozní náklady. Výška stropu 2,9 metru dodává bytu vzdušnost a prostorný pocit. K dispozici jsou také dvě parkovací místa přímo u domu. Zahrada o velikosti 35 m² poskytuje dostatek prostoru pro odpočinek na čerstvém vzduchu.

Celková cena nájmu činí 28 000 Kč měsíčně + vyúčtovatelné poplatky ( elektřina, vodné, stočné) cca 5 000 Kč. Kauce je stanovena na 30 000 Kč. Byt je dostupný od 1.4.2026, což je skvělé pro ty, kteří plánují bezproblémové stěhování. Domácí mazlíčci po dohodě, u psů pouze malá plemena! Provize RK 30.000, Kč.

Poloha v obci Strančice nabízí výbornou dostupnost do centra Prahy jak automobilovou dopravou, tak veřejnou dopravou. V těsné blízkosti se nachází zastávky autobusu a vlaku, což umožňuje pohodlné a rychlé spojení do metropole i dalších částí regionu. Obec je vybavena veškerou potřebnou infrastrukturou – školou, školkou, lékařem, obchody a restauracemi, což zajišťuje komfortní životní prostředí pro rodiny i jednotlivce.

Tento nový byt poskytuje nejen komfortní a moderní bydlení, ale i krásné okolí a klid, který ocení každý, kdo hledá útočiště od ruchu velkoměsta. Jeho poloha a vybavenost jsou zárukou spokojeného a pohodlného bydlení v atraktivní lokalitě. Pokud hledáte místo, které kombinuje moderní bydlení s příjemným prostředím, tento byt v Strančicích je tou pravou volbou pro Vás.

Makléř

Máte zájem o tento byt?

Tímto, v souladu s nařízením Evropského parlamentu a Rady (EU) 2016/679, v platném znění, prohlašuji, že mi je alespoň 16 let a uděluji tak svůj souhlas se zpracováním zadaných údajů (jméno, telefon, e-mail, ip adresa) společnosti B3 Technology, s.r.o., IČ: 07330600, se sídlem Novostavby 126/23, 435 11 Lom (správce dat), za účelem předání dotazu z tohoto formuláře Vámi vybranému inzerentovi a zpětného kontaktování mé osoby. Osobní údaje bude správce zpracovávat manuálně i automaticky přímo prostřednictvím svých zaměstnanců. Informace předané tímto formulářem budou uloženy v databázi správce maximálně po dobu 10 let. Odvolání souhlasu s uložením a zpracováním poskytnutých dat lze e-mailem na info@origo-reality.cz. V případě podezření na neoprávněné použití Vámi poskytnutých údajů máte právo předat podnět k šetření Úřadu pro ochranu osobních údajů. Více informací
Chystáte se prodat nemovitost?
Pomůžeme Vám!