Pronájem restaurace, Karlovy Vary - Rybáře, Sokolovská, 156 m2

Sokolovská, Karlovy Vary, Rybáře

18 000 Kč
/za měsíc
Získejte výhodnou HYPOTÉKU Chci hypotéku

Parametry nemovitosti

AdresaSokolovská, Karlovy Vary, Rybáře
ID294-NP01726
StavbaCihlová
Stav objektuVelmi dobrý
Typ objektuPřízemní
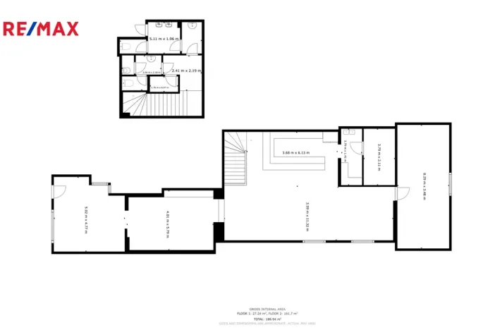
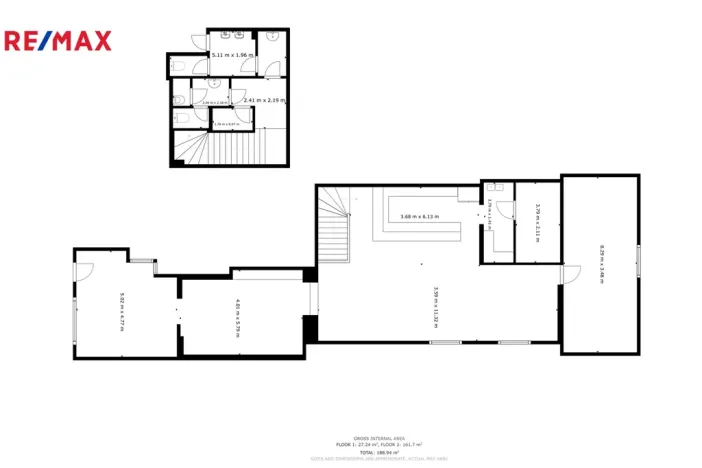
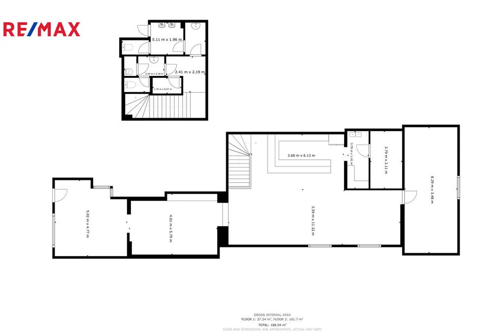
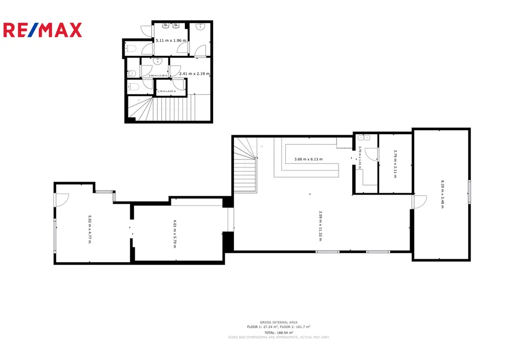
Užitná plocha156 m2
Zastavěná plocha156 m2
Plocha pozemku396 m2
Třída energetické náročnostiG - Mimořádně nehospodárná
PlynPlynovod
OdpadVeřejná kanalizace
Převod do OV

Origo partneři v Karlových Varech

Popis

Nabízím přenechání nájemních práv s odstupným ke kompletně zařízenému a funkčnímu prostoru vedenému jako specializovaný bar / čajovna, připravenému k okamžitému provozu bez nutnosti dalších investic.

Prostor je promyšleně členěn do několika zón:

při vstupu se nachází posezení se stolečky,

navazuje herní kout se třemi herními konzolemi PlayStation,

dále hlavní barová část se stolovým sezením,

samostatná soukromá místnost s karaoke systémem, ideální pro večírky, narozeniny, oslavy a party.

V podzemním podlaží jsou k dispozici:

dámské a pánské sociální zařízení,

technická místnost.

Prostory jsou po rekonstrukci, vybaveny novou elektroinstalací s chytrým ovládáním, kamerovým systémem a jsou kompletně zařízené. Vše je připraveno k okamžitému zahájení provozu – přesně tak, jak vidíte na fotografiích.

Jedná se o odstoupení nájemní smlouvy včetně prodeje veškerého vybavení. Tento hotový business může být vaším novým podnikáním i zábavou.

Podmínky:

měsíční nájemné: 18.000 Kč,

měsíční náklady na energie: cca 10.000 Kč,

nájemní smlouva: možnost uzavření na 5 let a více (dle dohody),

odstupné včetně veškerého vybavení: 1.600.000 Kč.

V případě zájmu je možné veškeré podmínky osobně projednat při prohlídce.

📞 Neváhejte mě kontaktovat pro více informací nebo domluvení termínu prohlídky. Prodávající si vyhrazuje právo vybrat kupujícího na základě jím zvolených kritérií.

Makléř

Máte zájem o tuto nemovistost?

Tímto, v souladu s nařízením Evropského parlamentu a Rady (EU) 2016/679, v platném znění, prohlašuji, že mi je alespoň 16 let a uděluji tak svůj souhlas se zpracováním zadaných údajů (jméno, telefon, e-mail, ip adresa) společnosti B3 Technology, s.r.o., IČ: 07330600, se sídlem Novostavby 126/23, 435 11 Lom (správce dat), za účelem předání dotazu z tohoto formuláře Vámi vybranému inzerentovi a zpětného kontaktování mé osoby. Osobní údaje bude správce zpracovávat manuálně i automaticky přímo prostřednictvím svých zaměstnanců. Informace předané tímto formulářem budou uloženy v databázi správce maximálně po dobu 10 let. Odvolání souhlasu s uložením a zpracováním poskytnutých dat lze e-mailem na info@origo-reality.cz. V případě podezření na neoprávněné použití Vámi poskytnutých údajů máte právo předat podnět k šetření Úřadu pro ochranu osobních údajů. Více informací
Chystáte se prodat nemovitost?
Pomůžeme Vám!

Přihlášení k odběru

Nenechte si ujít nejnovější nabídky pronájmu restaurací v Karlových Varech.