Pronájem bytu 4+kk, Praha - Smíchov, Holečkova, 211 m2 (ID: 1934598)

Holečkova, Praha, Smíchov

5 400 €
/za měsíc
+ poplatky/měsíc: 1259 EUR
Získejte výhodnou HYPOTÉKU Chci hypotéku

Parametry bytu

AdresaHolečkova, Praha, Smíchov
ID528243
StavbaCihlová
Stav objektuNovostavba
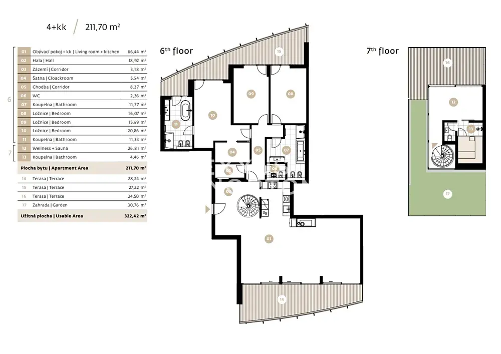
Patro6. z 7
VybavenoNe
VlastnictvíOsobní
Užitná plocha211 m2
Plocha zahrady31 m2
Třída energetické náročnostiB - Velmi úsporná
Sklep
Terasa
Výtah
Převod do OV

Origo partneři v Praze 5

Stěhovací služby

Výkup a prodej starého nábytku

Popis

Atraktivní lokalita Prahy 5 - Smíchova nabízí jedinečnou možnost bydlení v blízkosti několika parků a se skvělou dopravní dostupností. Představujeme Vám luxusní, nezařízený, mezonetový byt 4+kk k pronájmu (211 m2) se 3 terasami, zahradou a privátním wellness se saunou, který je součástí nového bytového projektu.


Byt je situován v 6. nadzemním podlaží a nabízí k užívání obývací pokoj s krbem a kuchyňským koutem odkud je rovněž uzpůsoben vstup na terasu (28 m2). Jednotka dále nabízí k užívání 3 ložnice rovněž se vstupy na terasu (27 m2), 3 koupelny, šatnu a samostatnou toaletu. Horní úroveň bytu je tvořena privátním wellness se saunou a vstupem na střešní terasu (25 m2) a zahradu (31 m2). Možnost využívání Wellness přímo v bytovém projektu za členský poplatek 2500 Kč/měsíčně. Možnost pronájmu garážového stání za 230 EUR + DPH měsíčně. V přízemí rezidence se nachází také fitness Prisma institut.


Interiér bytu je vybaven kuchyňskými spotřebiči včetně sklokeramické desky, trouby, lednice, mrazáku, myčky nádobí, mikrovlnné trouby. Byt disponuje třemi koupelnami, všechny jsou vybaveny vanou, přičemž jedna z nich má navíc sprchový kout. Dvě koupelny zahrnují toaletu a bidet. K bytu náleží sklep.


Jedinečná lokalita Holečkovy ulice disponuje skvělou dopravní dostupností, veškerou občanskou vybaveností v místě včetně supermarketu Lidl, OC Nový Smíchov, Cinema City Nový Smíchov nebo CineStar Anděl. Rodiny s dětmi dozajista ocení mnoho dětských hřišť, základních škol, mateřských škol, středních škol a gymnázií. Dobrá dostupnost do mezinárodních škol na Praze 5. Romantických procházek a příjemných posezení si můžete dopřát v nedalekých Dienzenhoferových sadech, parku Sacré Coeur, Petřínských sadech nebo zahradě Kinských.



Výše vyúčtovatelných měsíčních záloh za domovní služby, energie a internet činí 150 Kč/m2/měsíc + DPH.


Poptávající klient je srozuměn s úhradou provize ve výši 1 měsíčního nájmu plus DPH.


Pokud si nemovitost nemůžete prohlédnout osobně, nabízíme Vám také videoprohlídku z pohodlí Vašeho domova v reálném čase přes Messenger, WhatsApp a další komunikační platformy.

Makléř

Máte zájem o tento byt?

Tímto, v souladu s nařízením Evropského parlamentu a Rady (EU) 2016/679, v platném znění, prohlašuji, že mi je alespoň 16 let a uděluji tak svůj souhlas se zpracováním zadaných údajů (jméno, telefon, e-mail, ip adresa) společnosti B3 Technology, s.r.o., IČ: 07330600, se sídlem Novostavby 126/23, 435 11 Lom (správce dat), za účelem předání dotazu z tohoto formuláře Vámi vybranému inzerentovi a zpětného kontaktování mé osoby. Osobní údaje bude správce zpracovávat manuálně i automaticky přímo prostřednictvím svých zaměstnanců. Informace předané tímto formulářem budou uloženy v databázi správce maximálně po dobu 10 let. Odvolání souhlasu s uložením a zpracováním poskytnutých dat lze e-mailem na info@origo-reality.cz. V případě podezření na neoprávněné použití Vámi poskytnutých údajů máte právo předat podnět k šetření Úřadu pro ochranu osobních údajů. Více informací
Chystáte se prodat nemovitost?
Pomůžeme Vám!

Přihlášení k odběru

Nenechte si ujít nejnovější nabídky pronájmu bytů 4+kk v Praze 5.