Prodej bytu 1+kk, Šenov, Do Dědiny, 39 m2

Do Dědiny, Šenov

2 785 100 Kč
/za nemovitost
Hypotéka od 12 448 Kč /měs. Chci hypotéku

Parametry bytu

AdresaDo Dědiny, Šenov
ID28690
StavbaCihlová
Stav objektuNovostavba
Patro1.
Lokalita objektuKlidná část obce
VlastnictvíOsobní
Užitná plocha39 m2
Zastavěná plocha325 m2
Podlahová plocha68 m2
Plocha zahrady2395 m2
Třída energetické náročnostiG - Mimořádně nehospodárná
Elektřina230V
OdpadVeřejná kanalizace
KomunikaceAsfaltová
DopravaDálnice, Silnice, MHD, Autobus
VodaVodovod
Bezbarierový přístup
Nízkoenergetický

Origo partneři v Šenově

Popis

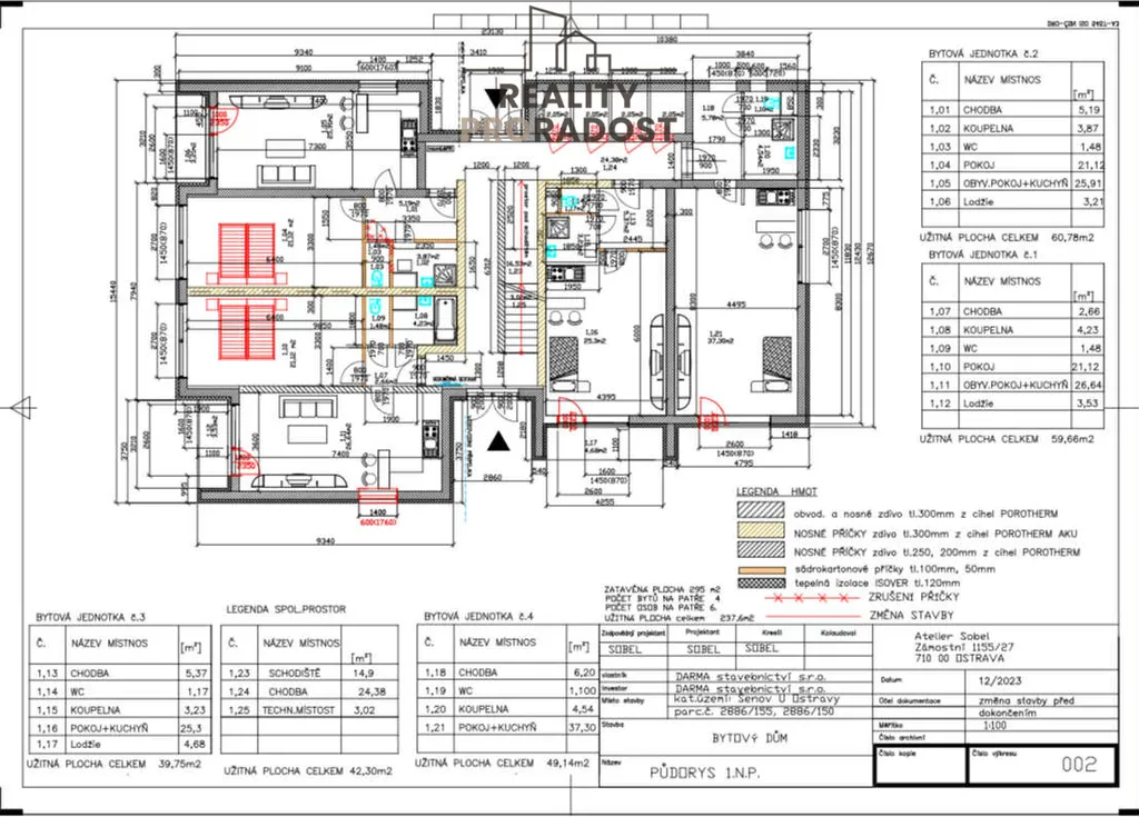
Nabízíme k prodeji byt 1KK v NOVÉ Rezidenci Šenov ll. Jenž navazuje na předchozí projekt Rezidence Šenov.
Jedná se o byty nově zahájené výstavbě bytového domu v Ostravě - Šenově. Která již započala na konci roku loňského roku 2025.
Byt je o velikosti 1KK s podlahovou plochou 39,65m2 Vám však nabídne další výhodu a to je předzahrádka o velikosti 28m2 a sklep o velikosti 2,05m2. Jenž jsou jeho součástí.
V domě se bude nacházet celkem 10 bytových jednotek a to této dispozici a umístění:
1.NP - Byty ( 1kk, 1kk-2kk, 2x2kk - všechny tyto byty mají svou vlastní krásnou předzahrádku )
2NP - Byty ( jsou dva byty 2kk a jeden 3kk - všechny byty s balkóny )
3NP - Byty ( jsou dva byty 2kk a jeden 3kk - všechny byty s balkóny )
Koupelna a toaleta jsou samostatně odděleny. Vstupní hala je součástí každého bytu.
Vzhledem k tomu, že se jedná o novostavbu bytového domu tak máme v bytech všechno nové ( sádrové omítky, nové el. rozvody, voda v plastu, okna plastová tří komorová, plovoucí podlaha s podlahovým el. vytápěním, obklady moderního vzhledu, nová sanita a nové dveře i s obložky ). Stropy se sádrokartonovým podhledem.
Všechny byty mají krásný balkón a výhled po okolí na nedaleké Beskydy či okolní krajinu.
U domu je možnost zakoupení parkovacího stání na oploceném pozemku s pojezdovou bránou na dálkové ovládání.
Cena parkovacího stání činí 100 000,- 1/Ks. Parkovací místo je nad rámec inzerované ceny. Kuchyně je v režii nového vlastníka.
Celkové náklady na bydlení jsou velice nízké. K domu náleží dále i oplocená zahrada.
V dostupnosti máme jak ZŠ, MŠ, obchody a MHD. Tato nemovitost zaručuje velice klidné a krásné bydlení na samém okraji Ostravy a Havířova.
V inzerci nejdete jak půdorys tak vizualizace s dispozičním řešením daného bytu.
V případě zájmu o byt 1kk v 1NP Vám ráda zprostředkuji prohlídku a sdělím bližší informace. Kolaudace plánována ke konci roku 2027.
Máme svého hypotečního specialistu, který Vám zajistí ten nejlepší úvěr s nejnižší úrokovou sazbou.
Velice ráda Vám pomohu jak s koupí této nemovitosti tak prodejem té Vaší. Veškeré fotky s výstavbou Vám průběžně budu přidávat.

Makléř

Máte zájem o tento byt?

Tímto, v souladu s nařízením Evropského parlamentu a Rady (EU) 2016/679, v platném znění, prohlašuji, že mi je alespoň 16 let a uděluji tak svůj souhlas se zpracováním zadaných údajů (jméno, telefon, e-mail, ip adresa) společnosti B3 Technology, s.r.o., IČ: 07330600, se sídlem Novostavby 126/23, 435 11 Lom (správce dat), za účelem předání dotazu z tohoto formuláře Vámi vybranému inzerentovi a zpětného kontaktování mé osoby. Osobní údaje bude správce zpracovávat manuálně i automaticky přímo prostřednictvím svých zaměstnanců. Informace předané tímto formulářem budou uloženy v databázi správce maximálně po dobu 10 let. Odvolání souhlasu s uložením a zpracováním poskytnutých dat lze e-mailem na info@origo-reality.cz. V případě podezření na neoprávněné použití Vámi poskytnutých údajů máte právo předat podnět k šetření Úřadu pro ochranu osobních údajů. Více informací
Chystáte se prodat nemovitost?
Pomůžeme Vám!

Přihlášení k odběru

Nenechte si ujít nejnovější nabídky prodeje bytů 1+kk v Šenově.