Pronájem výrobních prostor, Ostrava - Slezská Ostrava, Podzámčí, 594 m2

Podzámčí, Slezská Ostrava

Cena na vyžádání
/za metr čtvereční / měsíc
Získejte výhodnou HYPOTÉKU Chci hypotéku

Parametry nemovitosti

AdresaPodzámčí, Slezská Ostrava
IDN6293
StavbaSkeletová
Stav objektuNovostavba
Typ objektuPřízemní
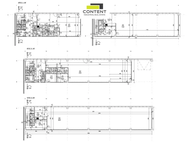
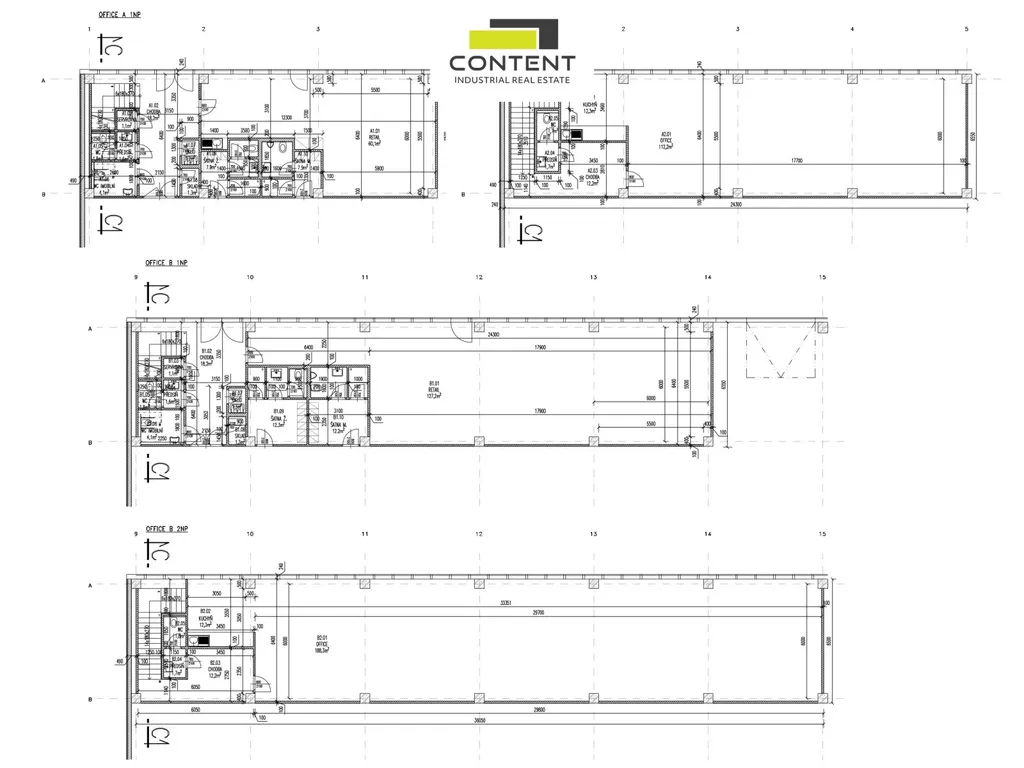
Užitná plocha594 m2
Třída energetické náročnostiC - Úsporná
Parkování

Origo partneři v Ostravě

Popis

Pronájem skladu, výrobních prostor Ostrava, Slezská - Zárubek.
V zastoupení majitele a bez provize nabízíme industriální prostory ve výstavbě na velice strategickém místě poblíže OC Nová Karolína administrativního komplexu ORGANICA. Budova bude dodána s nejmodernějšími technologiemi a trendy ze stavebnictví. Jednotky se ideálně hodí jako sídlo firmy se showroomem, prodejnou, servisem, skladem, nebo lehkou výrobou. Umístění areálu je dále ideální na city logistiku, distribuci v rámci centra Ostravy, atd.

- jednotka o velikosti 594 m² ihned k dispozici
- z toho 108 m² showroom + kanceláře v 1.NP a 2.NP
- k dispozici samostatné jednotky od 594 m² - 4608 m² v rámci jedné budovy
- výroba, sklad, servis, dílna, distribuce, kanceláře, výdejny
- možnost klientských změn a úprav dle požadavků nájemníka
- nosnost podlahy minimálně 5 t/m²
- voda, plyn, elektřina, kanalizace
- přímé vjezdy, nakládací rampy
- kanceláře vytápěné tepelným čerpadlem
- hala vytápěná plynovými saharami
- certifikace budovy BREEAM VERY GOOD
- FVE + bateriové úložiště pro udržitelný provoz budovy

Cena bude stanovena dle konkrétních podmínek smlouvy.
Pro více informací nás kontaktujte. V případě zájmu Vám rádi zajistíme prohlídku.

Makléř

Máte zájem o tuto nemovistost?

Tímto, v souladu s nařízením Evropského parlamentu a Rady (EU) 2016/679, v platném znění, prohlašuji, že mi je alespoň 16 let a uděluji tak svůj souhlas se zpracováním zadaných údajů (jméno, telefon, e-mail, ip adresa) společnosti B3 Technology, s.r.o., IČ: 07330600, se sídlem Novostavby 126/23, 435 11 Lom (správce dat), za účelem předání dotazu z tohoto formuláře Vámi vybranému inzerentovi a zpětného kontaktování mé osoby. Osobní údaje bude správce zpracovávat manuálně i automaticky přímo prostřednictvím svých zaměstnanců. Informace předané tímto formulářem budou uloženy v databázi správce maximálně po dobu 10 let. Odvolání souhlasu s uložením a zpracováním poskytnutých dat lze e-mailem na info@origo-reality.cz. V případě podezření na neoprávněné použití Vámi poskytnutých údajů máte právo předat podnět k šetření Úřadu pro ochranu osobních údajů. Více informací
Chystáte se prodat nemovitost?
Pomůžeme Vám!

Přihlášení k odběru

Nenechte si ujít nejnovější nabídky pronájmu výrobních prostor v Ostravě.