Prodej domu na klíč, Chrudim, Na Valech, 116 m2

Na Valech, Chrudim II

Cena na vyžádání
/za nemovitost
Získejte výhodnou HYPOTÉKU Chci hypotéku

Parametry domu

AdresaNa Valech, Chrudim II
ID15122025
StavbaCihlová
Stav objektuVe výstavbě
Užitná plocha116 m2
Plocha pozemku500 m2
Třída energetické náročnostiB - Velmi úsporná
Parkování

Origo partneři v Chrudimi

Popis

Výstavba domu na klíč - moderní vily 4+kk se západní terasou. Začněte stavět hned.

Chcete bydlet v novém, ale děsí vás roky vyřizování povolení? Mám pro vás řešení. Nabízím k prodeji připravený projekt výstavby rodinného domu (Dům B) v centru Chrudimi. Stavební povolení máme, stačí začít stavět.

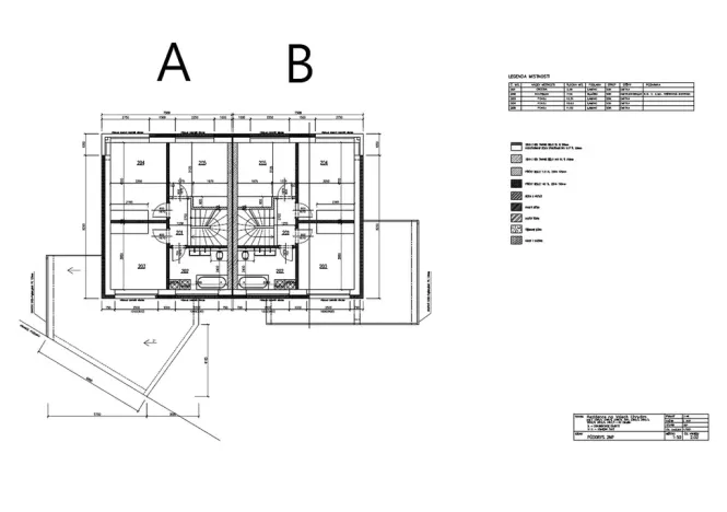
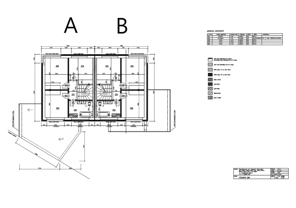
O projektu: Jedná se o pravou polovinu moderního dvojdomu ve slepé ulici Na Valech. Pozemek je vyvýšený nad okolím, což zajišťuje soukromí. Protože dům zatím nestojí, máte jedinečnou možnost ovlivnit design interiéru.

Dispozice a pozemek (Dům B): Navrženo jako efektivní 4+kk

Celková výměra: K domu náleží pozemky o celkové rozloze 500 m² (zahrada 378 m² + podíl na příjezdové cestě 122 m²).

Orientace: Zahrada směřuje na Jih a Západ – slunce až do večera.

Variabilita: Projekt umožňuje vybudování většího carportu (dvojgarážové stání) nebo domácí dílny.

Vysoký standard novostavby: Projekt je koncipován nízkoenergeticky a designově:

Vzhled: Elegantní plechová střecha v odstínu antracit.

Konstrukce: Poctivá cihla HELUZ 30 + 20 cm zateplení.

Komfort: Tepelné čerpadlo, teplovodní podlahové vytápění, příprava na FVE a rekuperaci.

Parkování: V ceně je realizace vlastního carportu a podíl na 3 sdílených stáních pro návštěvy na nové příjezdové cestě.

Bezpečné financování: Kupujete pozemek a smlouvu o dílo na výstavbu domu.

1. Krok: První investice je koupě pozemku. Lze financovat hotově i hypotékou.

2. Krok: Samotnou stavbu platíte postupně. Peníze stavební firmě posíláte, až když vidíte hotovou práci (etapové financování).

Celková cena projektu: na dotaz (vč. pozemku, podílu na cestě a výstavby na klíč s DPH)

Zaujala vás tato nabídka? Přijďte se podívat na místo, kde bude váš nový dům stát. Všechna povolení jsou vyřízena.

Makléř

Máte zájem o tento dům?

Tímto, v souladu s nařízením Evropského parlamentu a Rady (EU) 2016/679, v platném znění, prohlašuji, že mi je alespoň 16 let a uděluji tak svůj souhlas se zpracováním zadaných údajů (jméno, telefon, e-mail, ip adresa) společnosti B3 Technology, s.r.o., IČ: 07330600, se sídlem Novostavby 126/23, 435 11 Lom (správce dat), za účelem předání dotazu z tohoto formuláře Vámi vybranému inzerentovi a zpětného kontaktování mé osoby. Osobní údaje bude správce zpracovávat manuálně i automaticky přímo prostřednictvím svých zaměstnanců. Informace předané tímto formulářem budou uloženy v databázi správce maximálně po dobu 10 let. Odvolání souhlasu s uložením a zpracováním poskytnutých dat lze e-mailem na info@origo-reality.cz. V případě podezření na neoprávněné použití Vámi poskytnutých údajů máte právo předat podnět k šetření Úřadu pro ochranu osobních údajů. Více informací
Chystáte se prodat nemovitost?
Pomůžeme Vám!

Přihlášení k odběru

Nenechte si ujít nejnovější nabídky prodeje domů na klíč v Chrudimi.

Origo tipy

Podobné nabídky