Pronájem bytu 4+1, Ostrava, Markova, 87 m2

Markova, Ostrava, Zábřeh

15 000 Kč
/za měsíc
detail plateb v textu inzerce
Získejte výhodnou HYPOTÉKU Chci hypotéku

Parametry bytu

Náklady na bydlenídetail plateb v textu inzerce
AdresaMarkova, Ostrava, Zábřeh
IDN08700
StavbaPanelová
Stav objektuVelmi dobrý
Patro6. z 6
VybavenoČástečně
VlastnictvíOsobní
Užitná plocha87 m2
Třída energetické náročnostiG - Mimořádně nehospodárná
Balkon
Lodžie

Origo partneři v Ostravě

Popis

V případě zájmu o prohlídku nás kontaktujte na čísle: +420 734 443 633.
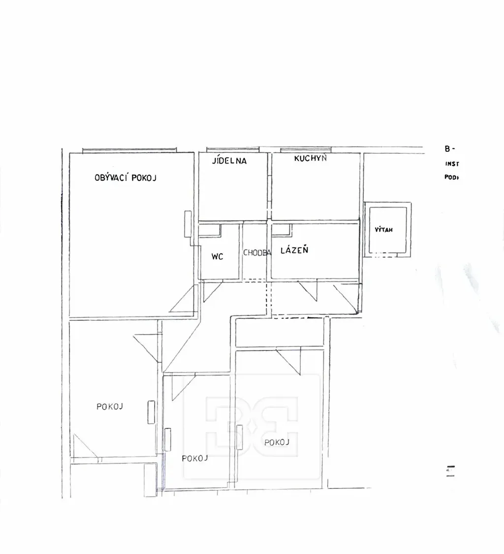
Nabízíme k pronájmu prostorný byt o dispozici 4+1 a výměře 86 m², který se nachází v 6. podlaží bytového domu na adrese Markova 15, Ostrava. Byt je díky své poloze světlý a nabízí příjemný výhled z oken.
Dispozičně je byt velmi prakticky řešen – všechny pokoje jsou samostatné a neprůchozí, což zajišťuje dostatek soukromí i pohodlí pro rodinu nebo spolubydlení. Dominantou bytu je velmi prostorná předsíň, ze které je přístup do jednotlivých místností. výhodou je jistě také klimatizace.
K dispozici je samostatná toaleta, prostorná koupelna s vanou a kuchyně vybavená spotřebiči včetně myčky. Z jednoho z pokojů je vstup na balkon.
Hlavní parametry:
• Dispozice: 4+1
• Užitná plocha: 86 m²
• Podlaží: nejvyšší
• Balkon: ano
• Kuchyně včetně spotřebičů a myčky
• Byt k dispozici: ihned
Cena:
• Nájemné: 15 000 Kč / měsíc
• Zálohové platby: cca 6 500 Kč / měsíc
• Kauce: 1× měsíční nájem
• Provize: 1× měsíční nájem
Podmínky pronájmu:
Majitel požaduje čistý rejstřík exekucí a insolvencí.
Byt je vhodný pro zájemce, kteří hledají velkorysé bydlení s dostatkem prostoru, soukromí a dobrou dostupností služeb.
V případě zájmu o prohlídku nás kontaktujte na čísle: +420 734 443 633

Makléř

Máte zájem o tento byt?

Tímto, v souladu s nařízením Evropského parlamentu a Rady (EU) 2016/679, v platném znění, prohlašuji, že mi je alespoň 16 let a uděluji tak svůj souhlas se zpracováním zadaných údajů (jméno, telefon, e-mail, ip adresa) společnosti B3 Technology, s.r.o., IČ: 07330600, se sídlem Novostavby 126/23, 435 11 Lom (správce dat), za účelem předání dotazu z tohoto formuláře Vámi vybranému inzerentovi a zpětného kontaktování mé osoby. Osobní údaje bude správce zpracovávat manuálně i automaticky přímo prostřednictvím svých zaměstnanců. Informace předané tímto formulářem budou uloženy v databázi správce maximálně po dobu 10 let. Odvolání souhlasu s uložením a zpracováním poskytnutých dat lze e-mailem na info@origo-reality.cz. V případě podezření na neoprávněné použití Vámi poskytnutých údajů máte právo předat podnět k šetření Úřadu pro ochranu osobních údajů. Více informací
Chystáte se prodat nemovitost?
Pomůžeme Vám!

Přihlášení k odběru

Nenechte si ujít nejnovější nabídky pronájmu bytů 4+1 v Ostravě.