Pronájem bytu 2+1, České Budějovice, Generála Svobody, 70 m2

Generála Svobody, České Budějovice 7

13 000 Kč
/za měsíc
Získejte výhodnou HYPOTÉKU Chci hypotéku

Parametry bytu

Náklady na bydlenízáloha na byt cca 4.000,-Kč/měs podle počtu osob
AdresaGenerála Svobody, České Budějovice 7
IDAD-2752-2026
StavbaCihlová
Stav objektuDobrý
Patro1.
VybavenoČástečně
Lokalita objektuCentrum obce
VlastnictvíOsobní
Užitná plocha70 m2
Podlahová plocha74 m2
Třída energetické náročnostiD - Méně úsporná
Elektřina230V
PlynPlynovod
OdpadVeřejná kanalizace
KomunikaceDlážděná
TelekomunikaceInternet
DopravaVlak, Dálnice, Silnice, MHD, Autobus
VodaVodovod
Topné tělesoRadiátory
Zdroj topeníÚstřední dálkové
Zdroj teplé vodyCentrální dálkový ohřev
Sklep
Výtah
Bezbarierový přístup

Origo partneři v Českých Budějovicích

Výkup a prodej starého nábytku

Popis

Ve výhradním zastoupení majitele nabízíme k pronájmu prostorný zděný byt velikosti 2+1 resp. 2,5+1 v blízkosti centra Českých Budějovic – poblíž areálu Nemocnice ČB (ulice Generála Svobody).
Byt je nabízen částečně zařízený (vybavení bytu viz fotky). V bytě je instalována nová kuchyňské linka, nový kombi sporák, je nově obložená koupelna s vanou. Podlahy v obytných místnostech parkety a PVC. Přípojka pračka/myčka v rámci kuchyňské linky. Součástí bytu jsou úložné prostory (komora a spíž). Prostorný obývací pokoj bytu ve tvaru do L umožňuje rozdělit / oddělit část prostoru např. jako pracovní kout.
K dispozici je byt včetně částečného zařízení: kuchyňská linka, kombi sporák, základním nábytkem (obývací stěna, jídelní stůl, šatní skříně, vybavení nábytkem ale není podmínkou pronájmu). Okna v bytě plastová včetně žaluzií a sítí proti hmyzu.
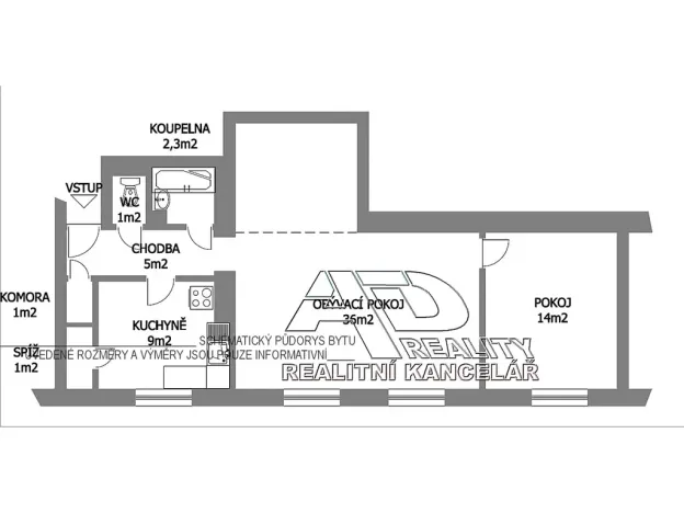
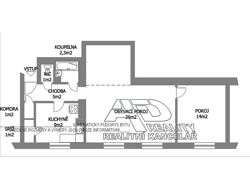
Dispozice bytu: obývací pokoj tvaru do L [36m2], ložnice [14m2], chodba [5m2], kuchyně [9m2] se spíží, koupelna [3m2], samostatné WC [1m2], komora [1m2].
Celková plocha bytu [74m2], podlahová plocha 70m2 + sklep.
Společné prostory domu jsou zrekonstruované (čisté a průběžně udržované). Byt i dům je klidný, tichý – bezproblémoví sousedé.
Energetická náročnost budovy – [D].
Topení: ústřední dálkové (radiátory s termoventily), ohřev vody dálkový, samostatné měření spotřeby teplé a studené vody (vodoměry), elektřiny (elektroměr), zemního plynu (plynoměr).
V bytě je možno připojit internet (Starnet). Občanská vybavenost a parkování: Veškerá občanská vybavenost včetně MHD je v místě, škola, školka, obchody, služby, banka. Parkování je zajištěno na parkovišti v blízkosti bytového domu (nevyhrazené parkování – parkovací zóna / parkovací povolení).
Podmínky / požadavky majitele bytu: Byt je vhodný pro bydlení max 3 osob (max 2dospělí + 1dítě), nekuřáci, malý domácí mazlíček po předchozí dohodě. Byt není vhodný pro spolubydlení či jiné formy sdílení. Nájem studentům / studentkám VŠ je možný po dohodě (max 3 osob). Pronajímatel si vyhrazuje právo výběru nájemce na základě jím zvolených kritérií.
Byt bude k dispozici po dohodě: (únor_2026) a je určen ke dlouhodobému pronájmu.
Nájemné: 13.000,-Kč/měs + zálohy EN (záloha na byt cca 4.000,-Kč/měs podle počtu osob).
Bytová jistina/Kauce: 30.000,-Kč (vratná při ukončení nájmu).
Provize RK: za zprostředkování pronájmu a sepsání nájemní smlouvy: 14.000,-Kč.
Nemovitost je nabízena výhradně realitní kanceláří AD-reality České Budějovice.
Pro bližší informace a termíny prohlídky volejte makléře.

Makléř

Máte zájem o tento byt?

Tímto, v souladu s nařízením Evropského parlamentu a Rady (EU) 2016/679, v platném znění, prohlašuji, že mi je alespoň 16 let a uděluji tak svůj souhlas se zpracováním zadaných údajů (jméno, telefon, e-mail, ip adresa) společnosti B3 Technology, s.r.o., IČ: 07330600, se sídlem Novostavby 126/23, 435 11 Lom (správce dat), za účelem předání dotazu z tohoto formuláře Vámi vybranému inzerentovi a zpětného kontaktování mé osoby. Osobní údaje bude správce zpracovávat manuálně i automaticky přímo prostřednictvím svých zaměstnanců. Informace předané tímto formulářem budou uloženy v databázi správce maximálně po dobu 10 let. Odvolání souhlasu s uložením a zpracováním poskytnutých dat lze e-mailem na info@origo-reality.cz. V případě podezření na neoprávněné použití Vámi poskytnutých údajů máte právo předat podnět k šetření Úřadu pro ochranu osobních údajů. Více informací
Chystáte se prodat nemovitost?
Pomůžeme Vám!