Prodej rodinného domu, Bučovice, Slovenská, 900 m2 (ID: 1931596)

Slovenská, Bučovice, Vícemilice

12 600 000 Kč
/za nemovitost
včetně poplatků, včetně provize, včetně právního servisu
Hypotéka od 56 314 Kč /měs. Chci hypotéku

Parametry domu

AdresaSlovenská, Bučovice, Vícemilice
ID18386
StavbaCihlová
Stav objektuDobrý
VybavenoČástečně
Druh objektuSamostatný
Lokalita objektuOkraj obce
Užitná plocha900 m2
Plocha pozemku503 m2
Třída energetické náročnostiG - Mimořádně nehospodárná
Elektřina230V, 400V
PlynPlynovod
OdpadVeřejná kanalizace
KomunikaceAsfaltová
DopravaVlak, Dálnice, Silnice, Autobus
VodaMístní zdroj vody, Studna
Topné tělesoPodlahové vytápění, Klimatizace
Zdroj topeníPlynový kotel
Garáž
Sklep
Parkování

Origo partneři v Bučovicích

Popis

Ve výhradním zastoupení nabízíme k prodeji unikátní stavbu v obci Bučovice - Vícemilice.
Hledáte ke svému podnikání-bydlení polyfunkční nemovitost, která je strategicky výhodně umístěna v Bučovicích, u silnice E50 mezi Brnem a Uherským Hradištěm? Plánujete rozšířit své působení s výbornou dojezdností do těchto dvou moravských metropolí? Pokud je vašim cílem najít objekt k výrobě, uskladnění, prodeji, školícím či ubytovacím aktivitám, je tato nemovitost právě pro vás.

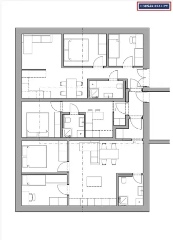
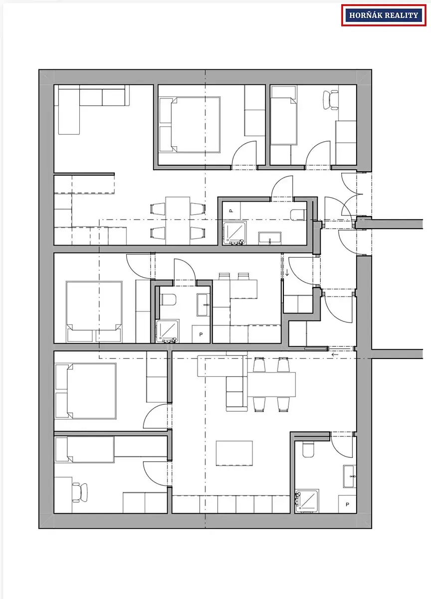
Unikátní multifunční stavba v Bučovicích původně sloužila jako mlýn. Z této doby bylo v interiéru částečně zachováno původní zdivo, což dodává nemovitosti nevšední ráz. Stavba je podsklepená a má 3 nadzemní podlaží, které byly v minulosti využívány jako motosalon a restaurace. Vrchní patro je připraveno pro dostavbou bytových jednotek, viz návrh v prezentovaném výkresu.

Celková výměra pozemku je 528m2, užitná plocha je 900m2 včetně rozsáhlých teras. Nemovitost je napojena na veškeré energie - plynovod, elektřina 220V i 380V, místní vodovod i kanalizaci. Součástí pozemku jsou i dvě studny s napojením užitkové vody. Topení je v 1NP řešeno podlahovým topením s plynovým kotlem, v ostatních podlažích plynovým kotlem a vzduchotechnikou. Střecha je titan zinková s dlouhou životností. Přístup do objektu je zajištěn i pro nákladní vozidla, na zaměstnance či zákazníky čeká přilehlé vlastní parkoviště.

Zaujala vás tato zajímavá podnikatelská příležitost? Požádejte si o prohlídku! Budu se na vás těšit.

Makléř

Máte zájem o tento dům?

Tímto, v souladu s nařízením Evropského parlamentu a Rady (EU) 2016/679, v platném znění, prohlašuji, že mi je alespoň 16 let a uděluji tak svůj souhlas se zpracováním zadaných údajů (jméno, telefon, e-mail, ip adresa) společnosti B3 Technology, s.r.o., IČ: 07330600, se sídlem Novostavby 126/23, 435 11 Lom (správce dat), za účelem předání dotazu z tohoto formuláře Vámi vybranému inzerentovi a zpětného kontaktování mé osoby. Osobní údaje bude správce zpracovávat manuálně i automaticky přímo prostřednictvím svých zaměstnanců. Informace předané tímto formulářem budou uloženy v databázi správce maximálně po dobu 10 let. Odvolání souhlasu s uložením a zpracováním poskytnutých dat lze e-mailem na info@origo-reality.cz. V případě podezření na neoprávněné použití Vámi poskytnutých údajů máte právo předat podnět k šetření Úřadu pro ochranu osobních údajů. Více informací
Chystáte se prodat nemovitost?
Pomůžeme Vám!

Přihlášení k odběru

Nenechte si ujít nejnovější nabídky prodeje rodinných domů v Bučovicích.