Pronájem rodinného domu, Řehenice, 106 m2

Řehenice, Křiváček

39 000 Kč
/za měsíc
+ poplatky a odměna pro RK
Získejte výhodnou HYPOTÉKU Chci hypotéku

Parametry domu

AdresaŘehenice, Křiváček
IDPAVE5882
StavbaMontovaná
Stav objektuNovostavba
Druh objektuSamostatný
Lokalita objektuOkraj obce
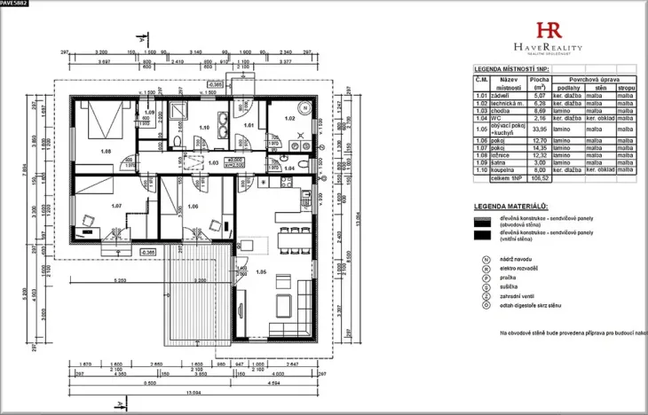
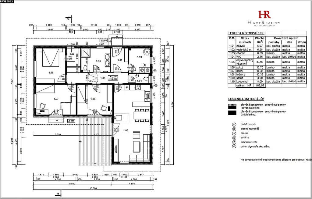
Užitná plocha106 m2
Zastavěná plocha127 m2
Podlahová plocha106 m2
Plocha pozemku807 m2
Plocha zahrady680 m2
KomunikaceAsfaltová

Origo partneři v Řehenicích

Popis

Dovolujeme si Vám s okamžitou platností nabídnout do pronájmu novostavbu nízkonákladového rodinného domu 4+kk/šatna/terasa, vnitřní podlahová plocha 106m2, v části obce Řehenice – Křiváček, č.p. 22. Dispozičně je členěn na: obývací pokoj s kuchyňským koutem (34m2), linkou a vstupem na terasu (15m2), 3 samostatné pokoje přístupné z chodby (12,7m2+ 14,35m2 + 12,32m2), 1 koupelna (8m2) s prostorným sprchovým koutem, WC, umyvadlem a vertikálním topným tělesem na sušení ručníků, další samostatné WC (2,16m2) s umyvadlem, 1 šatna (3m2) přístupná ložnice, vestavná skříň na chodbě (8,6m2), 1 technická místnost (6,28m2) mj. s vývody pro pračku a sušičku, půda přístupná z chodby domu – sloužící jako úložný prostor. K dispozici jsou parkovací stání pro 2 automobily, zahradní domek (6 m2), napojení na IS – elektřina 25 A, vodovod, odpadní jímka 12 m3, akumulační jímka na dešťovku 7 m3. Způsob vytápění domu: kamna na pelety, nebo alternativně elektrický ohřev TUV (3 el. patrony), podlahové vodní vytápění celého domu, zásobník na TUV 394 l. Příprava na fotovoltaiku – bude instalována. Podlahy – plovoucí a dlažba. Okna plastová – 3sklo. Betonová taška. Dům splňuje nízkoenergetický standard – PENB – třída A – mimořádně úsporná. Rozvody internetu a TV antény – příprava do zásuvky. Dálkově ovládaná samonosná pojezdová brána 4,5 m, vstupní branka. Pozemek je oplocený. Požadované měsíční nájemné činí 39.000,- Kč + 5.000,- Kč poplatky včetně spotřeby el. energie v domě. Jistota (dříve kauce) ve výši 50.000,- Kč. Provize pro RK činí 1měsíční nájemné. Nájemné je splatné do 25. dne předcházejícího měsíce. Lokalita: 13 km od Benešova u Prahy, kde je veškerá občanská vybavenost a 30 km jihovýchodně od Prahy. V místě je obecní úřad, mateřská škola, autobus – PID, hostinec – restaurace. 3 km od pozemku se nachází oblíbený golfový areál – Loreta Golf Club Pyšely. V případě Vašeho zájmu o prohlídku nás neváhejte kontaktovat na uvedeném čísle.

Makléř

Máte zájem o tento dům?

Tímto, v souladu s nařízením Evropského parlamentu a Rady (EU) 2016/679, v platném znění, prohlašuji, že mi je alespoň 16 let a uděluji tak svůj souhlas se zpracováním zadaných údajů (jméno, telefon, e-mail, ip adresa) společnosti B3 Technology, s.r.o., IČ: 07330600, se sídlem Novostavby 126/23, 435 11 Lom (správce dat), za účelem předání dotazu z tohoto formuláře Vámi vybranému inzerentovi a zpětného kontaktování mé osoby. Osobní údaje bude správce zpracovávat manuálně i automaticky přímo prostřednictvím svých zaměstnanců. Informace předané tímto formulářem budou uloženy v databázi správce maximálně po dobu 10 let. Odvolání souhlasu s uložením a zpracováním poskytnutých dat lze e-mailem na info@origo-reality.cz. V případě podezření na neoprávněné použití Vámi poskytnutých údajů máte právo předat podnět k šetření Úřadu pro ochranu osobních údajů. Více informací
Chystáte se prodat nemovitost?
Pomůžeme Vám!

Přihlášení k odběru

Nenechte si ujít nejnovější nabídky pronájmu rodinných domů v Řehenicích.