Pronájem kanceláře, Praha, Na příkopě, 460 m2

Na příkopě, Praha 1

Cena na vyžádání
/za metr čtvereční / měsíc
+ poplatky, provize se neplatí
Získejte výhodnou HYPOTÉKU Chci hypotéku

Parametry nemovitosti

AdresaNa příkopě, Praha 1
ID11904
StavbaCihlová
Stav objektuVelmi dobrý
Patro5. z 6
VybavenoNe
Typ objektuPatrový
Lokalita objektuCentrum obce
Užitná plocha460 m2
Zastavěná plocha560 m2
Třída energetické náročnostiD - Méně úsporná
OdpadVeřejná kanalizace
VodaVodovod
Výtah
Převod do OV

Origo partneři v Praze 1

Stěhovací služby

Výkup a prodej starého nábytku

Popis

Realitní společnost GEPADR nabízí k pronájmu kanceláře o ploše 410m2 + terasa 50m2 v domě v ul. Na Příkopě 29, Staré Město. Prostory jsou vhodné i pro školy.
Je možné pronajmout jednotlivé patro/patra nebo celý objekt tj. 2169m2 kromě přízemí.
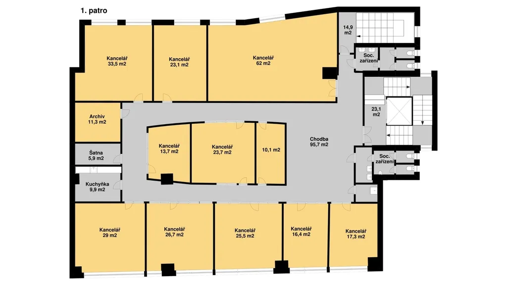
1. patro - 461m2, 12 místností od 10m2 do 62m2, 2x toalety, kuchyňka, skládek
2. patro - 442m2, 9 místností od 17m2 do 38m2, 2x toalety, kuchyňka, 3 místnosti bez oken
3. patro - 460m2 (terasa), 11 místností od 13m2 do 52m2, 3x toalety, kuchyňka, skládek
4. patro - 400m2 , 12 místností, 4x toalety, kuchyňka, 2x skládek
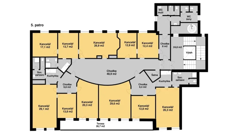
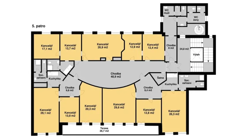
5. patro - 404m2 + terasa 26m2, 11 místností od 12m2 do 30m2, 5x toalety, 2x kuchyňka, skládek
více viz. plánky.
Vytápění je řešeno plynovým kotlem, je zde instalována klimatizace, EPS a EZS, výtah, k dispozici je ostraha 24/7.
Jedná se o podnájem od České spořitelny od 1.9.2026 do 30.6.2029 s možností pokračování v nájmu (dle dohody s majitelem).
Více informací na uvedených kontaktech.

Makléř

Máte zájem o tuto nemovistost?

Tímto, v souladu s nařízením Evropského parlamentu a Rady (EU) 2016/679, v platném znění, prohlašuji, že mi je alespoň 16 let a uděluji tak svůj souhlas se zpracováním zadaných údajů (jméno, telefon, e-mail, ip adresa) společnosti B3 Technology, s.r.o., IČ: 07330600, se sídlem Novostavby 126/23, 435 11 Lom (správce dat), za účelem předání dotazu z tohoto formuláře Vámi vybranému inzerentovi a zpětného kontaktování mé osoby. Osobní údaje bude správce zpracovávat manuálně i automaticky přímo prostřednictvím svých zaměstnanců. Informace předané tímto formulářem budou uloženy v databázi správce maximálně po dobu 10 let. Odvolání souhlasu s uložením a zpracováním poskytnutých dat lze e-mailem na info@origo-reality.cz. V případě podezření na neoprávněné použití Vámi poskytnutých údajů máte právo předat podnět k šetření Úřadu pro ochranu osobních údajů. Více informací
Chystáte se prodat nemovitost?
Pomůžeme Vám!

Přihlášení k odběru

Nenechte si ujít nejnovější nabídky pronájmu kanceláří v Praze 1.