Prodej domu na klíč, Vratimov, 92 m2 (ID: 1931089)

Vratimov, Horní Datyně

6 349 000 Kč
/za nemovitost
Modelová kalkulace hypotéky: 80% LTV, splátka 24.809,- Kč, splatnost 30 let, úroková sazba od 4,19%.
Hypotéka od 28 376 Kč /měs. Chci hypotéku

Parametry domu

AdresaVratimov, Horní Datyně
ID0724
StavbaDřevěná
Stav objektuProjekt
VybavenoNe
Druh objektuSamostatný
Lokalita objektuKlidná část obce
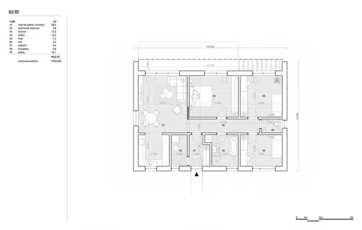
Užitná plocha92 m2
Zastavěná plocha117 m2
Plocha pozemku1200 m2
Plocha zahrady1083 m2
Třída energetické náročnostiB - Velmi úsporná

Origo partneři v Vratimově

Popis

Nabízíme ke koupi dům na klíč situovaný v Horní Datyni, obci Vratimov. Tento projekt zahrnuje dřevostavbu, která se nachází na samostatném pozemku s celkovou plochou 1.200 m². Dům je přízemní s jedním podlažím a zastavěnou plochou 117 m², přičemž užitná plocha dosahuje 92 m². Vizualizace domu je pouze ilustrační, slouží pouze jako příklad možné výstavby na tomto pozemku.

Rozsah dodávky domu na klíč: kompletní konstrukční systém ILO, základová deska, krovy, vazníky nebo nosníky, kompletní střešní krytina vč. doplňků a odvodnění střechy, tepelné čerpadlo, fasádní systém, vnitřní rozvody vody a odpadů, rozvody podlahového topení, vchodové dveře + okna + garážová vrata, rozvody elektroinstalace, kompletní příprava všech povrchů pod malby, kompletní výmalba, kompletace elektroinstalace - rozvaděč, kompletace elektroinstalace - zásuvky a vypínače, kompletní skladba podlah vč. podlahové krytiny, obklady, dlažby, sanita, interiérové dveře.

V rámci projektu není zahrnuta kuchyňská linka.

Dispozice 1.NP nabízí ložnici, obývací pokoj propojený s kuchyňským prostorem, 2x pokoj, koupelnu, samostatnou toaletu, zádveří a technickou místnost.

Výborná dostupnost inženýrských sítí, které jsou umístěny na hranici pozemku. To zajišťuje snadné napojení na vodu a elektrickou energií. K pozemku vede asfaltová příjezdová cesta, což garantuje pohodlný přístup.

Horní Datyně představují ideální místo pro milovníky přírody, neboť nabízí široké možnosti pro turistiku, cykloturistiku a relaxaci ve volné přírodě. Okolí si uchovává klidnou atmosféru, která je příjemná pro život a zároveň je snadno dostupná od rušnějších částí města.

Tento projekt představuje ideální příležitost pro ty, kteří hledají nový domov v klidné lokalitě s možností vlastního přizpůsobení.

Cena zahrnuje pozemek a dům na klíč.
Uvedená cena je včetně provize a právního servisu.
V případě zájmu neváhejte kontaktovat makléře.

Makléř

Máte zájem o tento dům?

Tímto, v souladu s nařízením Evropského parlamentu a Rady (EU) 2016/679, v platném znění, prohlašuji, že mi je alespoň 16 let a uděluji tak svůj souhlas se zpracováním zadaných údajů (jméno, telefon, e-mail, ip adresa) společnosti B3 Technology, s.r.o., IČ: 07330600, se sídlem Novostavby 126/23, 435 11 Lom (správce dat), za účelem předání dotazu z tohoto formuláře Vámi vybranému inzerentovi a zpětného kontaktování mé osoby. Osobní údaje bude správce zpracovávat manuálně i automaticky přímo prostřednictvím svých zaměstnanců. Informace předané tímto formulářem budou uloženy v databázi správce maximálně po dobu 10 let. Odvolání souhlasu s uložením a zpracováním poskytnutých dat lze e-mailem na info@origo-reality.cz. V případě podezření na neoprávněné použití Vámi poskytnutých údajů máte právo předat podnět k šetření Úřadu pro ochranu osobních údajů. Více informací
Chystáte se prodat nemovitost?
Pomůžeme Vám!

Přihlášení k odběru

Nenechte si ujít nejnovější nabídky prodeje domů na klíč v Vratimově.