Prodej rodinného domu, Černá Hora, nám. Míru, 295 m2

nám. Míru, Černá Hora

7 800 000 Kč
/za nemovitost
včetně provize RK
Hypotéka od 34 861 Kč /měs. Chci hypotéku

Parametry domu

Adresanám. Míru, Černá Hora
ID00829
StavbaCihlová
Stav objektuDobrý
Typ objektuPatrový
Druh objektuŘadový
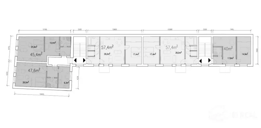
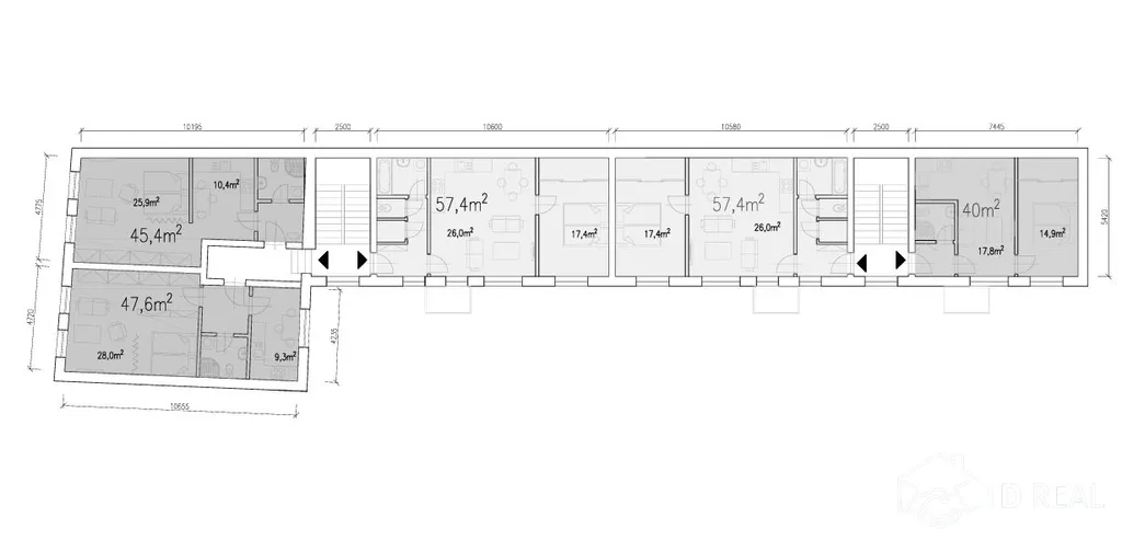
Užitná plocha295 m2
Plocha pozemku782 m2
Třída energetické náročnostiG - Mimořádně nehospodárná

Origo partneři v Černé Hoře

Popis

Exklusivně Vám nabízím velký rodinný dům v samotném srdci Černé Hory. Jedinečná poloha domu naskýtá maximální klid s veškerou občanskou vybaveností s perfektním umístěním na ulici nám. Míru. Dům je velmi prostorný, se 180 m2 užitné plochy a prostornou zahradou se do něj vleze každá rodina.

Dispozičně je dům rozdělen na:
2 komerční prostory v přízemí (1 prostor v pronájmu)
1 bytová jednotky 2+1 v dobrém stavu (momentálně pronajato)
V 1. NP dále prostor na vytvoření další bytové jednotky 2+kk.
2. NP je možno vytvořit další podkrovní byty, případně jeden vetší byt.

Vhodné pro developery, velké rodiny či spojení podnikání a bydlení.
Černá Hora poskytuje venkovský ráz s výborným dojezdem do Brna, Boskovic i Blanska.

V případě dotazů a zájmu o prohlídku Vám budu velmi rád k dispozici, Jan Bartošík.

Makléř

Máte zájem o tento dům?

Tímto, v souladu s nařízením Evropského parlamentu a Rady (EU) 2016/679, v platném znění, prohlašuji, že mi je alespoň 16 let a uděluji tak svůj souhlas se zpracováním zadaných údajů (jméno, telefon, e-mail, ip adresa) společnosti B3 Technology, s.r.o., IČ: 07330600, se sídlem Novostavby 126/23, 435 11 Lom (správce dat), za účelem předání dotazu z tohoto formuláře Vámi vybranému inzerentovi a zpětného kontaktování mé osoby. Osobní údaje bude správce zpracovávat manuálně i automaticky přímo prostřednictvím svých zaměstnanců. Informace předané tímto formulářem budou uloženy v databázi správce maximálně po dobu 10 let. Odvolání souhlasu s uložením a zpracováním poskytnutých dat lze e-mailem na info@origo-reality.cz. V případě podezření na neoprávněné použití Vámi poskytnutých údajů máte právo předat podnět k šetření Úřadu pro ochranu osobních údajů. Více informací
Chystáte se prodat nemovitost?
Pomůžeme Vám!

Přihlášení k odběru

Nenechte si ujít nejnovější nabídky prodeje rodinných domů v Černé Hoře.