Pronájem bytu 4+1, Teplice, Jiřího Wolkera, 125 m2

Jiřího Wolkera, Teplice

18 750 Kč
/za měsíc
+ 500 za osobu voda, elektřina a plyn přepis
Získejte výhodnou HYPOTÉKU Chci hypotéku

Parametry bytu

AdresaJiřího Wolkera, Teplice
StavbaCihlová
Stav objektuDobrý
Patro2. z 4
VybavenoNe
Lokalita objektuKlidná část obce
VlastnictvíOsobní
Užitná plocha125 m2
Plocha zahrady100 m2
Třída energetické náročnostiD - Méně úsporná
Elektřina230V
PlynPlynovod
OdpadVeřejná kanalizace
KomunikaceAsfaltová
TelekomunikaceKabelové rozvody
DopravaVlak, Silnice, MHD, Autobus
VodaVodovod
Topné tělesoRadiátory
Zdroj topeníPlynový kondenzační kotel
Zdroj teplé vodyPlynový kondenzační kotel
Sklep
Lodžie
Výtah
Bezbarierový přístup

Origo partneři v Teplicích

Okna a dveře

Rekonstrukce

Popis

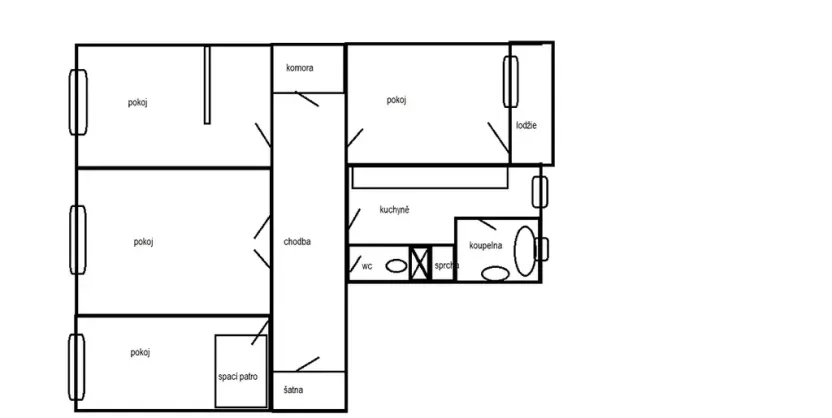
Nabízím dlouhodobý pronájem v prostorném čtyřpokojovém bytě s lodžií a šatnou.
Byt je v 1.patře menšího činžovního domu se zahrádkou na okraji Šanova.
Byt je bez nábytku, pouze kuchyňská linka se sporákem, nový plynový kondenzační kotel. v předsíni a 2 pokojích je oddělená šatna, v nejmenším pokoji spací patro.
Koupelna je vybavená vanou i sprchovým koutem, samostatné wc.
Za domem je zahrádka pro nájemníky, v suterénu samostatný prostorný sklep.
V době jsou pouze 4 byty s bezproblémovými nájemníky.
Volné začátkem února, bude bílá nová výmalba.
Podmínkou pronájmu je vyšší kauce, v ceně nejsou energie.

Makléř

Máte zájem o tento byt?

Tímto, v souladu s nařízením Evropského parlamentu a Rady (EU) 2016/679, v platném znění, prohlašuji, že mi je alespoň 16 let a uděluji tak svůj souhlas se zpracováním zadaných údajů (jméno, telefon, e-mail, ip adresa) společnosti B3 Technology, s.r.o., IČ: 07330600, se sídlem Novostavby 126/23, 435 11 Lom (správce dat), za účelem předání dotazu z tohoto formuláře Vámi vybranému inzerentovi a zpětného kontaktování mé osoby. Osobní údaje bude správce zpracovávat manuálně i automaticky přímo prostřednictvím svých zaměstnanců. Informace předané tímto formulářem budou uloženy v databázi správce maximálně po dobu 10 let. Odvolání souhlasu s uložením a zpracováním poskytnutých dat lze e-mailem na info@origo-reality.cz. V případě podezření na neoprávněné použití Vámi poskytnutých údajů máte právo předat podnět k šetření Úřadu pro ochranu osobních údajů. Více informací
Chystáte se prodat nemovitost?
Pomůžeme Vám!

Přihlášení k odběru

Nenechte si ujít nejnovější nabídky pronájmu bytů 4+1 v Teplicích.