Pronájem bytu 3+kk, Benešov, Křižíkova, 62 m2

Křižíkova, Benešov

15 000 Kč
/za měsíc
+popl. 4213, cena měsíčního pronájmu nezahrnuje poplatky za užívání bytu (vodné, teplo, energie)
Získejte výhodnou HYPOTÉKU Chci hypotéku

Parametry bytu

AdresaKřižíkova, Benešov
ID650889
StavbaCihlová
Stav objektuDobrý
Patro2. z 3
VlastnictvíOsobní
Užitná plocha62 m2
Podlahová plocha62 m2
Třída energetické náročnostiE - Nehospodárná
Ukazatel energetické náročnosti109 kWh/m2 za rok
TopeníÚstřední dálkové
Balkon
Sklep

Origo partneři v Benešově

Popis

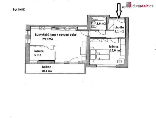
Dumrealit.cz Vám zprostředkuje pronájem bytu 3 + KK, 62 m² +10 m² balkón, v ul. Křižíkova, v Benešově. Bytová jednotka se nachází v cihlovém domě z r. 20210, v 2.NP. Dispozice: ze vstupní chodby je samostatný vstup do ložnice s vestavěnou skříní, koupelny osazené vanou, umyvadlem a WC, dále do obývacího pokoje s kuchyňským koutem se spotřebiči (el. varná deska, el. trouba, digestoř). Z této centrální části bytu je vstup do maličké ložnice a na balkón. Součástí pronájmu je koje (cca 2 m²) a nekryté parkovací stání pro jeden automobil před domem. Měsíční nájemné činí15.000 Kč + 4.213 Kč poplatky. Zálohy na spotřebu elektrické energie si nájemce převede u dodavatele na sebe. Vratná kauce činí 30.000 Kč. Při podpisu nájemní smlouvy je třeba uhradit odměnu RK ve výši jednoho nájemného. Byt bude připravený k pronájmu od 2/2026. Lokalita je klidná, v okolí bytové domy, 10 min. pěší chůze na nádraží BUS, vlak. Benešov poskytuje plnou občanskou vybavenost. Pro více informací, volejte na uvedené telefonní číslo. Ráda Vám byt osobně představím. Ev. číslo: 650275.

Makléř

Máte zájem o tento byt?

Tímto, v souladu s nařízením Evropského parlamentu a Rady (EU) 2016/679, v platném znění, prohlašuji, že mi je alespoň 16 let a uděluji tak svůj souhlas se zpracováním zadaných údajů (jméno, telefon, e-mail, ip adresa) společnosti B3 Technology, s.r.o., IČ: 07330600, se sídlem Novostavby 126/23, 435 11 Lom (správce dat), za účelem předání dotazu z tohoto formuláře Vámi vybranému inzerentovi a zpětného kontaktování mé osoby. Osobní údaje bude správce zpracovávat manuálně i automaticky přímo prostřednictvím svých zaměstnanců. Informace předané tímto formulářem budou uloženy v databázi správce maximálně po dobu 10 let. Odvolání souhlasu s uložením a zpracováním poskytnutých dat lze e-mailem na info@origo-reality.cz. V případě podezření na neoprávněné použití Vámi poskytnutých údajů máte právo předat podnět k šetření Úřadu pro ochranu osobních údajů. Více informací
Chystáte se prodat nemovitost?
Pomůžeme Vám!

Přihlášení k odběru

Nenechte si ujít nejnovější nabídky pronájmu bytů 3+kk v Benešově.