Soccer reality

Prodej rodinného domu, Kostelec u Křížků, 191 m2 (ID: 1929808)

Kostelec u Křížků

12 900 000 Kč
/za nemovitost
Hypotéka od 57 655 Kč /měs. Chci hypotéku

Parametry domu

AdresaKostelec u Křížků
IDN00379
StavbaCihlová
Stav objektuVelmi dobrý
Druh objektuSamostatný
Lokalita objektuKlidná část obce
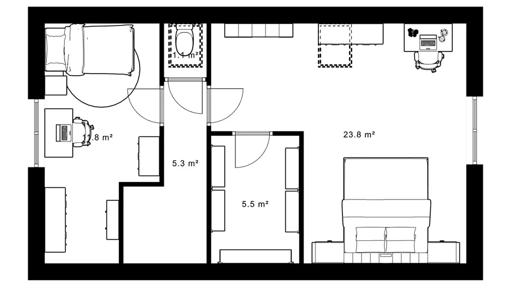
Užitná plocha191 m2
Zastavěná plocha80 m2
Plocha pozemku2124 m2
Plocha zahrady1195 m2
Třída energetické náročnostiG - Mimořádně nehospodárná
Elektřina230V, 400V
OdpadČOV pro celý objekt
TelekomunikaceInternet
DopravaDálnice, Silnice
VodaMístní zdroj vody
Garáž
Parkování
Bazén

Origo partneři v Kostelci u Křížků

Popis

Exkluzivní nabídka prodeje rodinného domu na ojedinělém místě v obci Kostelec u Křížků.
Dům kolaudovaný v roce 2004 se nachází na okraji obce v klidném prostředí poskytujícím příjemné soukromí s krásnými výhledy do okolní přírody.

V současnosti je dispozice domu koncipována jako 3 + 1 s možností navýšení počtu obytných místností a změny dispozice prostřednictvím stavební úpravy přízemí domu - podrobné informace v kanceláři.


Zastavěná plocha domu je 80 m2.
Příjemnou atmosféru při výhledech z domu, nebo při posezení na terase dotváří udržovaná zahrada nepravidelného tvaru o výměře 1195m2.
Předmětem prodeje je také velkorysý pozemek s vysokým potenciálem využití bezprostředně navazující na zahradu o výměře 849m2.
Celková výměra pozemků náležících k domu je 2124m2.




V minulosti byl dům připojený k plynové přípojce, připojení lze znovu obnovit.
Voda je zajištěna vrtem.
Odpadní vody jsou svedeny do jímky.
Vytápění tepelným čerpadlem.

Kompletní informace v kanceláři.

Makléř

Máte zájem o tento dům?

Tímto, v souladu s nařízením Evropského parlamentu a Rady (EU) 2016/679, v platném znění, prohlašuji, že mi je alespoň 16 let a uděluji tak svůj souhlas se zpracováním zadaných údajů (jméno, telefon, e-mail, ip adresa) společnosti B3 Technology, s.r.o., IČ: 07330600, se sídlem Novostavby 126/23, 435 11 Lom (správce dat), za účelem předání dotazu z tohoto formuláře Vámi vybranému inzerentovi a zpětného kontaktování mé osoby. Osobní údaje bude správce zpracovávat manuálně i automaticky přímo prostřednictvím svých zaměstnanců. Informace předané tímto formulářem budou uloženy v databázi správce maximálně po dobu 10 let. Odvolání souhlasu s uložením a zpracováním poskytnutých dat lze e-mailem na info@origo-reality.cz. V případě podezření na neoprávněné použití Vámi poskytnutých údajů máte právo předat podnět k šetření Úřadu pro ochranu osobních údajů. Více informací
Chystáte se prodat nemovitost?
Pomůžeme Vám!

Přihlášení k odběru

Nenechte si ujít nejnovější nabídky prodeje rodinných domů v Kostelci u Křížků.