Prodej rodinného domu, Řitka, Ke Stráni, 151 m2 (ID: 1929067)

Ke Stráni, Řitka

21 990 000 Kč
/za nemovitost
Hypotéka od 98 282 Kč /měs. Chci hypotéku

Parametry domu

AdresaKe Stráni, Řitka
ID531138
StavbaDřevěná
Stav objektuVelmi dobrý
VybavenoAno
Užitná plocha151 m2
Plocha pozemku1154 m2
Plocha zahrady790 m2
Třída energetické náročnostiB - Velmi úsporná
Garáž
Výtah
Parkování
Bazén

Origo partneři v Řitce

Popis

Hledáte místo, kde můžete okamžitě žít – bez kompromisů, bez starostí a bez čekání?

Dům, kde si děti hrají na zahradě, vy relaxujete u bazénu a večery trávíte na terase s výhledem do zeleně?

Pak právě pro vás je tu tento promyšleně navržený domov v malebné obci Řitka, jen 20 minut od Prahy.


Dokonale připravený domov pro rodinu

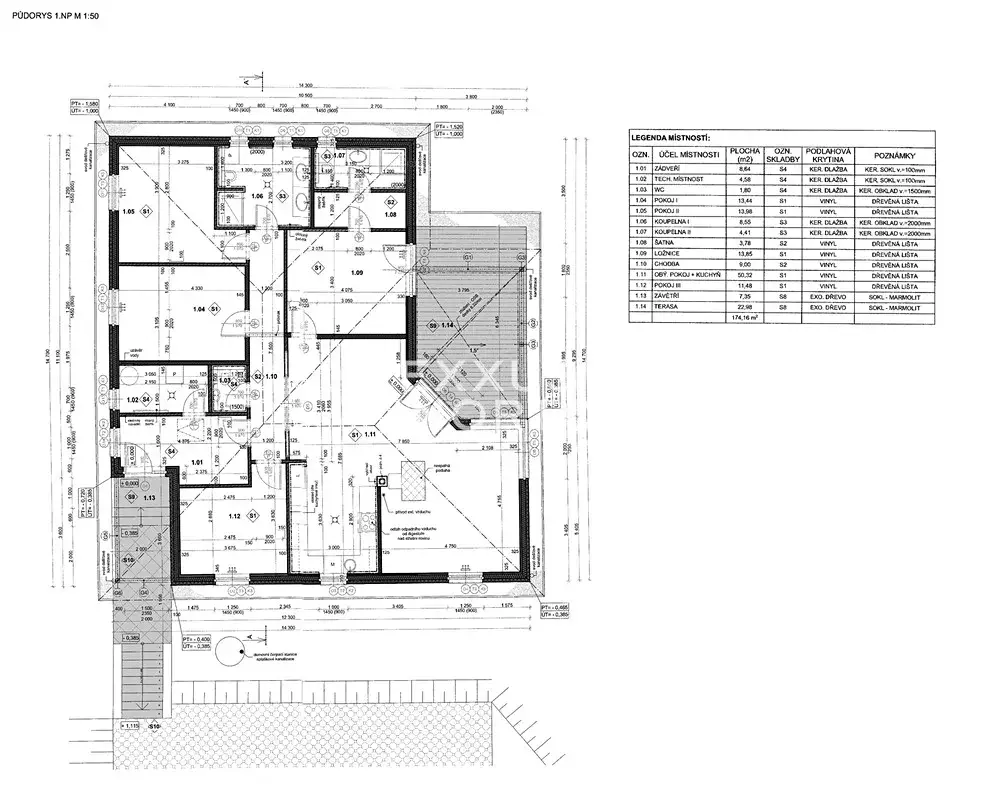
Rodinný dům o dispozici 5+kk a užitné ploše 151 m², postavený v roce 2016, nabízí veškerý komfort moderního bydlení. Jeho přízemní uspořádání ve tvaru L vytváří soukromí, klid a přirozené propojení interiéru se zahradou.

Srdcem domu je prostorný obývací pokoj s krbem, kuchyňským koutem a jídelnou – ideální prostor pro každodenní rodinný život i víkendová setkání s přáteli. Přímý vstup na krytou terasu propojuje dům se zahradou, kde můžete v klidu odpočívat, grilovat, nebo se osvěžit v bazénu se slanou vodou.


Příroda všude kolem, město na dosah

Dům se nachází v klidné části Řitky, obklopený zelení a soukromím, jen kousek od Brdských lesů a oblíbených cyklotras. Zároveň však s výbornou dostupností do centra Prahy – do 20 minut jste na Smíchově nebo Barrandově. Skvělá volba pro každého, kdo touží po klidném zázemí v přírodě, ale nechce se vzdát městského života.


Klíčové benefity domu:

- Kvalitní dřevostavba (DNK, 2016) – okamžitě k nastěhování, bez nutnosti dalších investic.

- 5+kk – až 4 ložnice + šatna, 2 koupelny, technická místnost, ideální i pro dvougenerační bydlení.

- Bazén 4 × 7 m se slanou vodou a tepelným čerpadlem – soukromé wellness na vlastní zahradě.

- Fotovoltaika s bateriovým úložištěm, krbová kamna, elektrické podlahové topení – nízké provozní náklady.

- Zateplená garáž + venkovní stání, zahradní domek, pergola, skleník a vyvýšené záhony.

- Možnost přepnutí mezi obecní vodou a vlastní studnou.


Zahrada jako z katalogu

Zahrada o rozloze téměř 1 000 m² je pečlivě udržovaná a promyšleně osázená – ovocné stromy, levandule, keře, túje, a nechybí ani prostor pro vlastní pěstování. Celý pozemek je oplocený a chráněný, s elektrickými vraty a maximálním soukromím.


Lokalita, která si vás získá

Řitka nabízí ideální zázemí pro rodiny – školku, školu, poštu, obchody, restaurace i sportovní vyžití (jezdecký klub, Sokol). A hlavně: čisté ovzduší, klid a bezpečí. Skvělé místo pro dětství i dospělost.


K nastěhování po dohodě

Makléř

Máte zájem o tento dům?

Tímto, v souladu s nařízením Evropského parlamentu a Rady (EU) 2016/679, v platném znění, prohlašuji, že mi je alespoň 16 let a uděluji tak svůj souhlas se zpracováním zadaných údajů (jméno, telefon, e-mail, ip adresa) společnosti B3 Technology, s.r.o., IČ: 07330600, se sídlem Novostavby 126/23, 435 11 Lom (správce dat), za účelem předání dotazu z tohoto formuláře Vámi vybranému inzerentovi a zpětného kontaktování mé osoby. Osobní údaje bude správce zpracovávat manuálně i automaticky přímo prostřednictvím svých zaměstnanců. Informace předané tímto formulářem budou uloženy v databázi správce maximálně po dobu 10 let. Odvolání souhlasu s uložením a zpracováním poskytnutých dat lze e-mailem na info@origo-reality.cz. V případě podezření na neoprávněné použití Vámi poskytnutých údajů máte právo předat podnět k šetření Úřadu pro ochranu osobních údajů. Více informací
Chystáte se prodat nemovitost?
Pomůžeme Vám!

Přihlášení k odběru

Nenechte si ujít nejnovější nabídky prodeje rodinných domů v Řitce.