Prodej obchodního prostoru, Praha - Žižkov, Žižkovo náměstí, 113 m2 (ID: 1928763)

Žižkovo náměstí, Praha

12 900 000 Kč
/za nemovitost
Hypotéka od 57 655 Kč /měs. Chci hypotéku

Parametry nemovitosti

AdresaŽižkovo náměstí, Praha
StavbaCihlová
Stav objektuVelmi dobrý
Patro1.
Užitná plocha113 m2
Třída energetické náročnostiD - Méně úsporná
Zdroj topeníCentrální dálkové

Origo partneři v Praze 3

Stěhovací služby

Výkup a prodej starého nábytku

Popis

Nabízíme k prodeji jedinečný komerční prostor o velikosti 113 m² na rozhraní Královských Vinohrad a Žižkova, v jedné z nejžádanějších částí Prahy.

Prostor je zkolaudován jako specializované dětské centrum a je okamžitě připraven k provozu miniškolky či edukačního centra. Díky své dispozici je však využití velmi flexibilní – vhodný je také pro kosmetický či masážní salon, kadeřnictví, kanceláře, umělecký ateliér, poradenské služby, bistro a další podnikatelské aktivity. Součástí interiéru je i kvalitní kuchyňská linka.

Investiční potenciál
• V současné době je prostor výhodně pronajat za tržní cenu (40.000 Kč plus poplatky) spolehlivému nájemníkovi
• Kupující tak získá stabilní a okamžitý výnos z pronájmu.
• Díky atraktivní lokalitě a univerzální dispozici je zde zajištěna dlouhodobá poptávka po pronájmu a možnost dalšího růstu hodnoty nemovitosti.

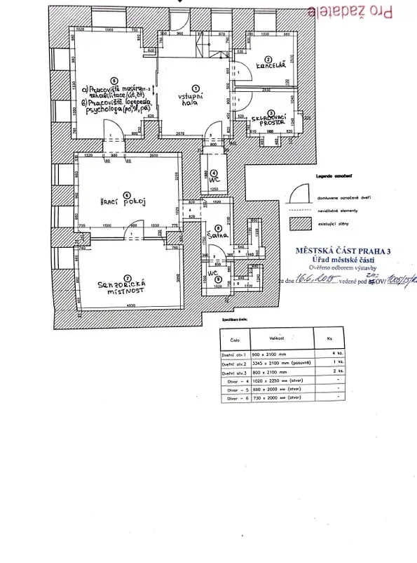
Dispozice a vybavení

• Vstupní hala s dostatkem místa pro uvítání klientů
• Kancelář – ideální jako zázemí pro administrativu
• Hrací a edukační místnost – prostorná, světlá, s příjemnou atmosférou
• Pracoviště specialistů – vhodné pro konzultace či terapie
• Unikátní senzorická místnost – vybavená pro rozvoj smyslového vnímání dětí
• Šatna
• Sanitární zázemí – WC pro děti, WC pro personál
• Úklidová komora s výlevkou s teplou a studenou vodou
• Skladové prostory
• Moderní kuchyňská linka – pro rychlé občerstvení
• Centrální vytápění a ohřev vody – zajišťující komfortní provoz

Výhody lokality

• Vynikající poloha – v blízkosti Vinohrad, Riegrových sadů a Žižkovské věže
• Přímý vstup z ulice – snadný přístup pro klienty
• Možnost parkování přímo před domem
• Okolí plné života – kavárny, restaurace, obchody
• Dětské hřiště přímo naproti – ideální pro venkovní aktivity

Skvělá dopravní dostupnost

• Tramvajová zastávka Olšanské náměstí – cca 8 minut pěšky
• Metro C – Náměstí Jiřího z Poděbrad – pár minut chůze

Tento prostor představuje jedinečnou investiční příležitost v prestižní části Prahy – ať už pro vlastní podnikání, nebo jako stabilně výnosná nemovito. Kontaktujte nás pro více informací a sjednání prohlídky.

Makléř

Máte zájem o tuto nemovistost?

Tímto, v souladu s nařízením Evropského parlamentu a Rady (EU) 2016/679, v platném znění, prohlašuji, že mi je alespoň 16 let a uděluji tak svůj souhlas se zpracováním zadaných údajů (jméno, telefon, e-mail, ip adresa) společnosti B3 Technology, s.r.o., IČ: 07330600, se sídlem Novostavby 126/23, 435 11 Lom (správce dat), za účelem předání dotazu z tohoto formuláře Vámi vybranému inzerentovi a zpětného kontaktování mé osoby. Osobní údaje bude správce zpracovávat manuálně i automaticky přímo prostřednictvím svých zaměstnanců. Informace předané tímto formulářem budou uloženy v databázi správce maximálně po dobu 10 let. Odvolání souhlasu s uložením a zpracováním poskytnutých dat lze e-mailem na info@origo-reality.cz. V případě podezření na neoprávněné použití Vámi poskytnutých údajů máte právo předat podnět k šetření Úřadu pro ochranu osobních údajů. Více informací
Chystáte se prodat nemovitost?
Pomůžeme Vám!

Přihlášení k odběru

Nenechte si ujít nejnovější nabídky prodeje obchodních prostor v Praze 3.