Pronájem obchodního prostoru, Brno, Joštova, 78 m2 (ID: 1928086)

Joštova, Brno

65 000 Kč
/za měsíc
Získejte výhodnou HYPOTÉKU Chci hypotéku

Parametry nemovitosti

AdresaJoštova, Brno
StavbaCihlová
Stav objektuVelmi dobrý
Patro1.
VybavenoČástečně
Lokalita objektuCentrum obce
Užitná plocha78 m2
Třída energetické náročnostiG - Mimořádně nehospodárná
Elektřina230V
OdpadVeřejná kanalizace
KomunikaceAsfaltová
TelekomunikaceInternet
DopravaMHD
VodaVodovod
Topné tělesoRadiátory
Zdroj topeníCentrální dálkové
Zdroj teplé vodyPrůtokový ohřívač
Bezbarierový přístup

Origo partneři v Brně

Popis

Pronájem obchodních prostor v centru Brna – ul. Joštova

Nabízíme k pronájmu atraktivní obchodní prostory v prestižní a frekventované lokalitě na ulici Joštova, přímo v centru Brna. Prostory jsou vhodné zejména pro obchod či různé typy služeb (např. bankovní, finanční, advokátní, realitní, daňové aj.).
Prostory se nacházejí v přízemí budovy a disponují výkladci a přímým vstupem z ulice.

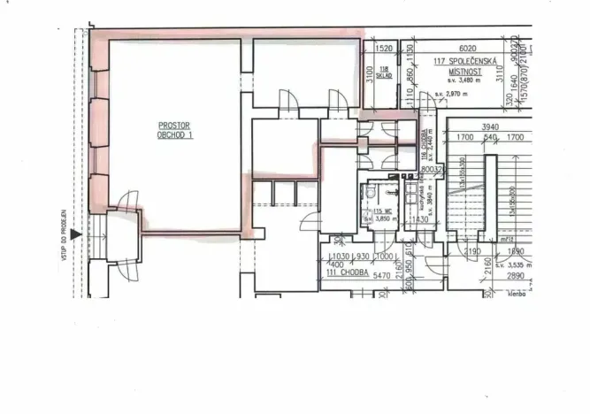
Dispozice a výměry prostor (celkem cca 78 m²):
• hlavní obchodní plocha: 52 m²
• sklad: 15 m²
• kuchyňka
• WC s předsíňkou

Vybavení a technické parametry:
• ústřední vytápění
• klimatizační jednotka
• samostatné měření energií
• průkaz energetické náročnosti budovy: PENB třídy G

Dostupnost a cena:
• prostory budou k dispozici od 1. 3. 2026
• nájemné: 65 000 Kč / měsíc + zálohy na energie a služby
• provize RK je ve výši 1 měsíčního nájmu

V případě zájmu rádi poskytneme další informace nebo domluvíme prohlídku.

Makléř

Máte zájem o tuto nemovistost?

Tímto, v souladu s nařízením Evropského parlamentu a Rady (EU) 2016/679, v platném znění, prohlašuji, že mi je alespoň 16 let a uděluji tak svůj souhlas se zpracováním zadaných údajů (jméno, telefon, e-mail, ip adresa) společnosti B3 Technology, s.r.o., IČ: 07330600, se sídlem Novostavby 126/23, 435 11 Lom (správce dat), za účelem předání dotazu z tohoto formuláře Vámi vybranému inzerentovi a zpětného kontaktování mé osoby. Osobní údaje bude správce zpracovávat manuálně i automaticky přímo prostřednictvím svých zaměstnanců. Informace předané tímto formulářem budou uloženy v databázi správce maximálně po dobu 10 let. Odvolání souhlasu s uložením a zpracováním poskytnutých dat lze e-mailem na info@origo-reality.cz. V případě podezření na neoprávněné použití Vámi poskytnutých údajů máte právo předat podnět k šetření Úřadu pro ochranu osobních údajů. Více informací
Chystáte se prodat nemovitost?
Pomůžeme Vám!