Pronájem bytu 2+kk, Brno, Bulharská, 73 m2 (ID: 1928085)

Bulharská, Brno, Královo Pole

18 700 Kč
/za měsíc
Získejte výhodnou HYPOTÉKU Chci hypotéku

Parametry bytu

AdresaBulharská, Brno, Královo Pole
StavbaCihlová
Stav objektuVelmi dobrý
Patro3.
Lokalita objektuKlidná část obce
VlastnictvíOsobní
Užitná plocha73 m2
Třída energetické náročnostiD - Méně úsporná
PlynPlynovod
OdpadVeřejná kanalizace
KomunikaceAsfaltová
DopravaMHD
VodaVodovod
Topné tělesoRadiátory
Zdroj topeníPlynový kotel
Zdroj teplé vodyPlynový kotel

Origo partneři v Brně

Popis

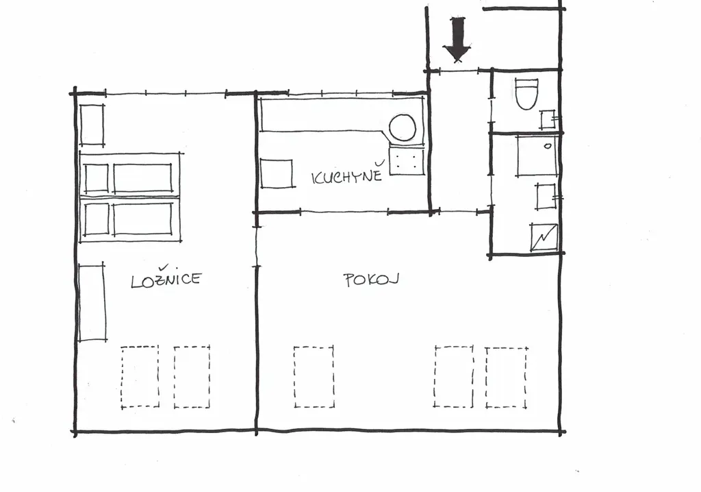
Nabízíme k dlouhodobému pronájmu prostorný a světlý byt 2+kk o výměře 73 m², který se nachází ve 3. nadzemním podlaží domu ve vyhledávané lokalitě Brno – Královo Pole, ulice Bulharská.
Velkou výhodou je výborná dopravní dostupnost – v blízkosti MHD, vysokých škol i nájezdu na Svitavskou radiálu. Okolí domu je klidné, se zelení.
Dispozice bytu:
• obývací pokoj (cca 30 m², průchozí),
• kuchyňský kout (cca 9 m²),
• ložnice (cca 27 m²),
• koupelna,
• samostatné WC,
• předsíň,
• úložný prostor (cca 5 m²).
Okna jsou orientována do klidné zahrady a do ulice Bulharská.
Byt je vybaven kuchyňskou linkou, elektrickou troubou, plynovou varnou deskou a digestoří. Vytápění a ohřev vody zajišťuje vlastní plynový kotel. Po dohodě se stávajícím nájemcem je možné ponechat část nábytku a elektrospotřebičů.
Energie (plyn, elektřina, voda) jsou měřeny samostatnými měřiči a vyúčtovávány dle skutečné spotřeby.
Byt je k nastěhování od 1. 2. 2026. Vhodné pro 2–4 pracující osoby nebo studenty, nekuřáky, bez domácích zvířat.
Finanční podmínky:
• nájemné: 18 700 Kč / měsíc
• zálohy na služby a energie (2 osoby): 3 500 Kč / měsíc
• vratná jistota (kauce): 18 700 Kč
• provize RK: 18 700 Kč
PENB: třída D – dům byl nově zateplen, očekává se lepší energetická úspornost.

Makléř

Máte zájem o tento byt?

Tímto, v souladu s nařízením Evropského parlamentu a Rady (EU) 2016/679, v platném znění, prohlašuji, že mi je alespoň 16 let a uděluji tak svůj souhlas se zpracováním zadaných údajů (jméno, telefon, e-mail, ip adresa) společnosti B3 Technology, s.r.o., IČ: 07330600, se sídlem Novostavby 126/23, 435 11 Lom (správce dat), za účelem předání dotazu z tohoto formuláře Vámi vybranému inzerentovi a zpětného kontaktování mé osoby. Osobní údaje bude správce zpracovávat manuálně i automaticky přímo prostřednictvím svých zaměstnanců. Informace předané tímto formulářem budou uloženy v databázi správce maximálně po dobu 10 let. Odvolání souhlasu s uložením a zpracováním poskytnutých dat lze e-mailem na info@origo-reality.cz. V případě podezření na neoprávněné použití Vámi poskytnutých údajů máte právo předat podnět k šetření Úřadu pro ochranu osobních údajů. Více informací
Chystáte se prodat nemovitost?
Pomůžeme Vám!

Přihlášení k odběru

Nenechte si ujít nejnovější nabídky pronájmu bytů 2+kk v Brně.