Prodej výrobních prostor, Liptál, 1097 m2 (ID: 1928069)

Liptál

12 490 000 Kč
/za nemovitost
Hypotéka od 55 823 Kč /měs. Chci hypotéku

Parametry nemovitosti

AdresaLiptál
ID1779-EDD/25
StavbaCihlová
Stav objektuDobrý
Patro3. z 3
Lokalita objektuCentrum obce
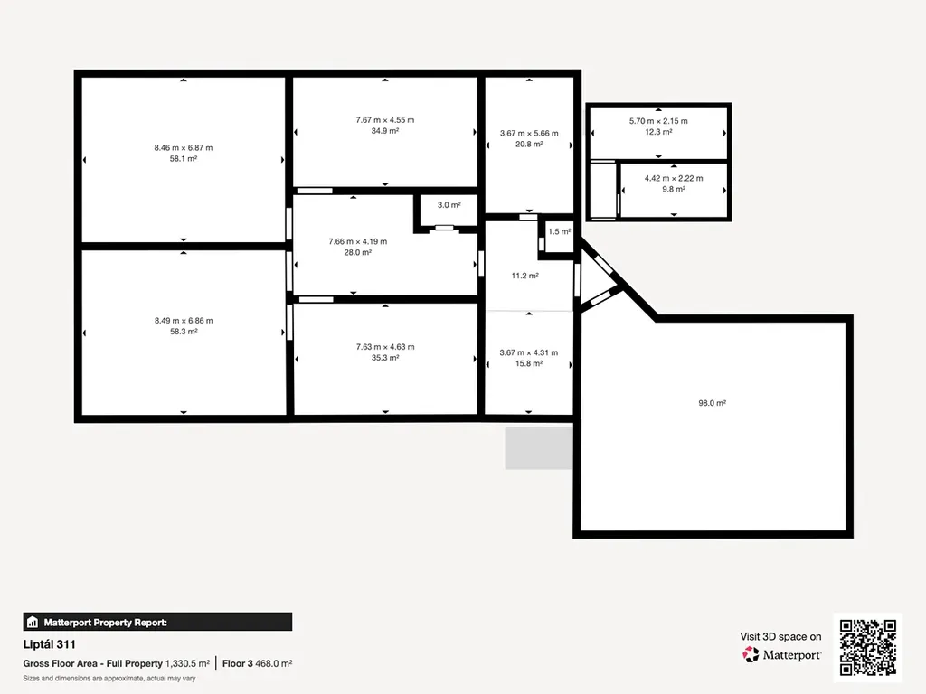
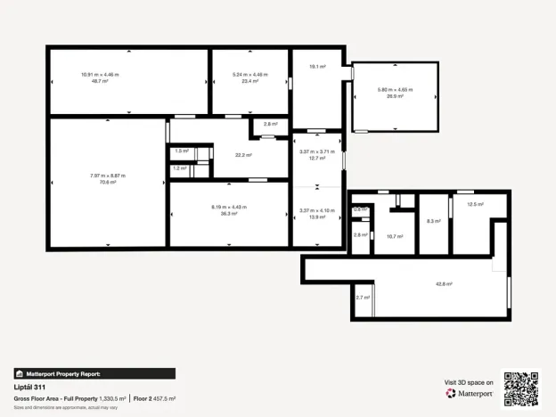
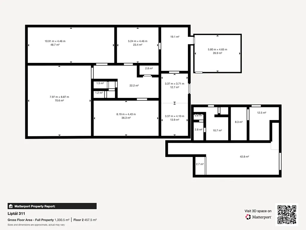
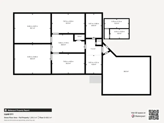
Užitná plocha1097 m2
Třída energetické náročnostiD - Méně úsporná
PlynPlynovod
OdpadVeřejná kanalizace
KomunikaceAsfaltová
VodaVodovod, Studna
Zdroj topeníPlynový kotel
Zdroj teplé vodyJiné
Výtah
Parkování

Origo partneři v Liptále

Popis

Nabízené nemovitosti zahrnují: budovu č.p. 311, budovu stolárny s příslušenstvím a stavebními pozemky a další pozemky a venkovní zpevněné plochy.

Prostorná budova se nachází v bezprostřední blízkosti komunikace v obci Liptál s kompletní občanskou vybaveností. Objekt slouží ideálně k výrobě společně s kancelářským zázemím. (v objektu jsou k dispozici šatny, soc. zařízení, samostatné kancelářské prostory i místnosti umístěny v kontejnerech, napojených na ÚT z hlavní budovy).

Vstup do budovy přes sekční vrata, dále přes schodiště do celého objektu. Funkční nákladní výtah propojující všechna podlaží. K dispozici rovněž krytý sklad.

Další vstup do objektu je řešen z prostoru nákladní rampy přes dvoukřídlé dveře nebo kancelářských kontejnerů. Rozdělení podlaží pomocí nenosných příček lze vybourat.

Budova je napojena na veřejný vodovod a kanalizaci, dále možnost čerpání vody z vrtu, která je rozvedena v prvním patře pro technické potřeby a na splachování toalet. Ohřev užitkové vody je řešen tepelným čerpadlem a v šatnách a denní místnosti pomocí el. boileru.

Vytápění ÚT na plynový kotel, rozděleno do tří samostatně regulovatelných větví. V samostatné kotelně je prostor na zřízení vytápění pomocí pelet.

Rozvody elektro od r. 2016 a současné připojení je 3 x 75 Ah. Téměř do všech místností je přivedeno i 380 V. Na střeše je umístěna FVE o výkonu 8,1 kWp, která je propojena s bateriovým úložištěm 12 kWh. V budově se nachází zabezpečovací zařízení napojeno na PCO vč. požárních čidel.

Makléř

Máte zájem o tuto nemovistost?

Tímto, v souladu s nařízením Evropského parlamentu a Rady (EU) 2016/679, v platném znění, prohlašuji, že mi je alespoň 16 let a uděluji tak svůj souhlas se zpracováním zadaných údajů (jméno, telefon, e-mail, ip adresa) společnosti B3 Technology, s.r.o., IČ: 07330600, se sídlem Novostavby 126/23, 435 11 Lom (správce dat), za účelem předání dotazu z tohoto formuláře Vámi vybranému inzerentovi a zpětného kontaktování mé osoby. Osobní údaje bude správce zpracovávat manuálně i automaticky přímo prostřednictvím svých zaměstnanců. Informace předané tímto formulářem budou uloženy v databázi správce maximálně po dobu 10 let. Odvolání souhlasu s uložením a zpracováním poskytnutých dat lze e-mailem na info@origo-reality.cz. V případě podezření na neoprávněné použití Vámi poskytnutých údajů máte právo předat podnět k šetření Úřadu pro ochranu osobních údajů. Více informací
Chystáte se prodat nemovitost?
Pomůžeme Vám!

Přihlášení k odběru

Nenechte si ujít nejnovější nabídky prodeje výrobních prostor v Liptále.

Podobné nabídky