Pronájem bytu 1+kk, Praha - Vinohrady, Řipská, 30 m2

Řipská, Praha, Vinohrady

19 500 Kč
/za měsíc
Provize RK 1 nájem + DPH.
Získejte výhodnou HYPOTÉKU Chci hypotéku

Parametry bytu

AdresaŘipská, Praha, Vinohrady
IDN05049
StavbaCihlová
Stav objektuVelmi dobrý
Patro6. z 7
Lokalita objektuCentrum obce
VlastnictvíOsobní
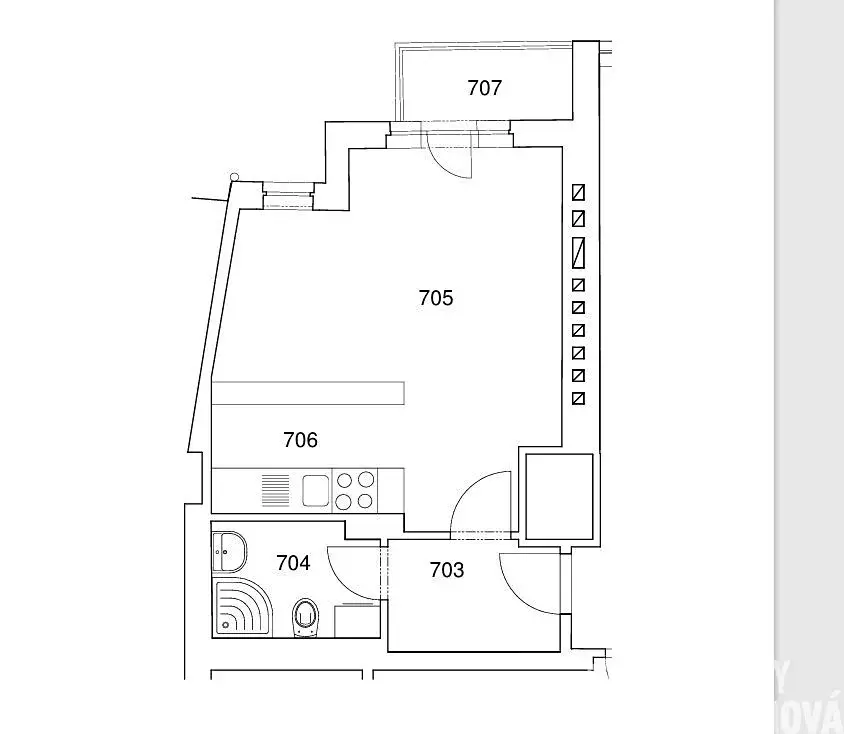
Užitná plocha30 m2
Podlahová plocha30 m2
Třída energetické náročnostiD - Méně úsporná
OdpadVeřejná kanalizace
TopeníÚstřední plynové
TelekomunikaceTelefon, Internet, Kabelové rozvody, Ostatní
DopravaMHD, Autobus
Balkon
Výtah

Origo partneři v Praze 3

Stěhovací služby

Výkup a prodej starého nábytku

Popis

Nabízíme k pronájmu luxusní byt 1+kk s balkonem o celkové podlahové ploše 30 m², situovaný v 5. patře (6. NP) domu s výtahem v prestižní lokalitě Vinohrad, v bezprostřední blízkosti náměstí Jiřího z Poděbrad. Byt je orientován do klidného a zeleného vnitrobloku, což zajišťuje příjemné bydlení v samotném centru města. K nastěhování od 1. 2. 2026.

Byt je nabízen bez nábytku, k dispozici jsou však vestavěné skříně v předsíni. Součástí je zánovní kuchyňská linka plně vybavená spotřebiči – myčka nádobí, lednice, mikrovlnná trouba, elektrická trouba a sklokeramická varná deska. V koupelně se nachází pračka, zrcadlo a úložná skříňka.

Dům prošel kompletní rekonstrukcí a nabízí vysoký standard bydlení:
– nová špaletová okna s výbornými izolačními a akustickými vlastnostmi
– moderní interiér na míru od designového studia
– LED osvětlení v celém bytě
– bezpečnostní vstupní dveře (třída 3) a příprava pro zabezpečovací systém
– centrální plynová kotelna s individuální regulací spotřeby tepla
– možnost připojení vysokorychlostního internetu a TV/SAT

Lokalita patří k nejžádanějším v Praze – metro A Jiřího z Poděbrad, tramvajové spoje i veškerá občanská vybavenost (kavárny, restaurace, obchody, farmářské trhy) jsou v docházkové vzdálenosti. Výborná dostupnost do centra i klidné rezidenční prostředí činí tuto nabídku ideální volbou.

Nájemné: 19.500 Kč / měsíc
Zálohy na služby včetně elektřiny a vytápění: 4.000 Kč / měsíc
Kauce: 25.000 Kč
PENB: D
Provize RK: 1× měsíční nájem + DPH

Vřele doporučujeme.

Makléř

Máte zájem o tento byt?

Tímto, v souladu s nařízením Evropského parlamentu a Rady (EU) 2016/679, v platném znění, prohlašuji, že mi je alespoň 16 let a uděluji tak svůj souhlas se zpracováním zadaných údajů (jméno, telefon, e-mail, ip adresa) společnosti B3 Technology, s.r.o., IČ: 07330600, se sídlem Novostavby 126/23, 435 11 Lom (správce dat), za účelem předání dotazu z tohoto formuláře Vámi vybranému inzerentovi a zpětného kontaktování mé osoby. Osobní údaje bude správce zpracovávat manuálně i automaticky přímo prostřednictvím svých zaměstnanců. Informace předané tímto formulářem budou uloženy v databázi správce maximálně po dobu 10 let. Odvolání souhlasu s uložením a zpracováním poskytnutých dat lze e-mailem na info@origo-reality.cz. V případě podezření na neoprávněné použití Vámi poskytnutých údajů máte právo předat podnět k šetření Úřadu pro ochranu osobních údajů. Více informací
Chystáte se prodat nemovitost?
Pomůžeme Vám!