Prodej bytu 2+kk, Ivančice, Kounická, 38 m2 (ID: 1924981)

Kounická, Ivančice

5 639 000 Kč
/za nemovitost
včetně DPH, včetně provize, včetně právního servisu
Hypotéka od 25 203 Kč /měs. Chci hypotéku

Parametry bytu

AdresaKounická, Ivančice
ID10254
StavbaCihlová
Stav objektuVe výstavbě
Patro3. z 3
VybavenoNe
Lokalita objektuCentrum obce
VlastnictvíOsobní
Užitná plocha38 m2
Třída energetické náročnostiB - Velmi úsporná
Ukazatel energetické náročnosti118 kWh/m2 za rok
Sklep
Terasa
Výtah
Bezbarierový přístup
Parkování

Origo partneři v Ivančicích

Popis

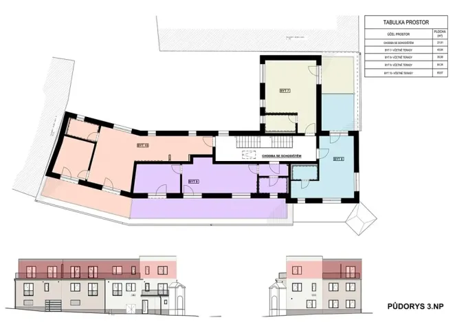
Nabízíme k prodeji byt 2+kk s výjimečně prostornou terasou v novostavbě bytového domu o 10 jednotkách v bezprostředním centru města Ivančic, na nároží ulic Kounická a Jana Fibicha.
Bytová jednotka o dispozici 2+kk a podlahové ploše 38,00 m² se nachází ve 3. nadzemním podlaží nízkoenergetického bytového domu v klidné části města Ivančice. Dominantou tohoto bytu je terasová plocha o výměře 26,34 m², která nabízí nadstandardní venkovní prostor vhodný pro posezení, grilování, pěstování rostlin i relaxaci.

Dispozice bytu:
– hala: 3,00 m²
– koupelna: 3,77 m²
– obývací pokoj s kuchyňským koutem: 19,91 m²
– ložnice: 11,32 m²
– terasa: 26,34 m²

Byt je součástí novostavby o pouhých 10 jednotkách, což zajišťuje klidné a komfortní bydlení bez anonymní atmosféry velkých rezidenčních projektů.

K bytu náleží sklepní kóje (cca 1,8 m²) a kryté parkovací stání, které poskytuje pohodlí a ochranu vozu během celého roku. Lokalita nabízí vynikající občanskou vybavenost – v pěší dostupnosti jsou obchody, škola, MHD, zdravotnická zařízení i sportovní infrastruktura.

Vybavení bytu:
– kvalitní vinylové podlahy a dlažba
– příprava na kuchyňskou linku
– plastová okna s izolačními trojskly
– předokenní žaluzie u oken orientovaných do ulice (jižní/západní strana)
– moderní sanitární vybavení

Bytový dům je aktuálně ve fázi dokončovacích prací, probíhá realizace koupelen a pokládka podlah, instalují se zařizovací předměty. Předpokládaný termín k nastěhování je 01/2026.

Pro více informací, půdorysy nebo sjednání prohlídky nás neváhejte kontaktovat.
Prodej přímo od investora – neplatíte provizi.

Makléř

Máte zájem o tento byt?

Tímto, v souladu s nařízením Evropského parlamentu a Rady (EU) 2016/679, v platném znění, prohlašuji, že mi je alespoň 16 let a uděluji tak svůj souhlas se zpracováním zadaných údajů (jméno, telefon, e-mail, ip adresa) společnosti B3 Technology, s.r.o., IČ: 07330600, se sídlem Novostavby 126/23, 435 11 Lom (správce dat), za účelem předání dotazu z tohoto formuláře Vámi vybranému inzerentovi a zpětného kontaktování mé osoby. Osobní údaje bude správce zpracovávat manuálně i automaticky přímo prostřednictvím svých zaměstnanců. Informace předané tímto formulářem budou uloženy v databázi správce maximálně po dobu 10 let. Odvolání souhlasu s uložením a zpracováním poskytnutých dat lze e-mailem na info@origo-reality.cz. V případě podezření na neoprávněné použití Vámi poskytnutých údajů máte právo předat podnět k šetření Úřadu pro ochranu osobních údajů. Více informací
Chystáte se prodat nemovitost?
Pomůžeme Vám!

Přihlášení k odběru

Nenechte si ujít nejnovější nabídky prodeje bytů 2+kk v Ivančicích.