Prodej rodinného domu, Strakonice - Dražejov, 98 m2 (ID: 1923526)
Strakonice - Dražejov
Parametry domu
| Adresa | Strakonice - Dražejov |
|---|---|
| ID | Dražejov 729 |
| Stavba | Skeletová |
| Stav objektu | Novostavba |
| Vybaveno | Ano |
| Druh objektu | Samostatný |
| Lokalita objektu | Klidná část obce |
| Vlastnictví | Osobní |
| Užitná plocha | 98 m2 |
| Zastavěná plocha | 120 m2 |
| Plocha pozemku | 917 m2 |
| Třída energetické náročnosti | C - Úsporná |
Popis
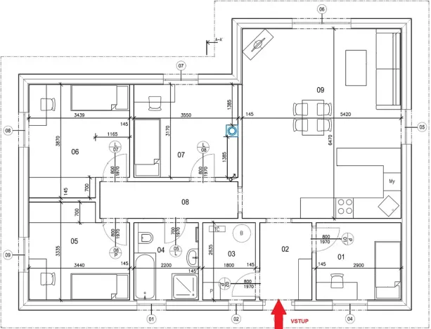
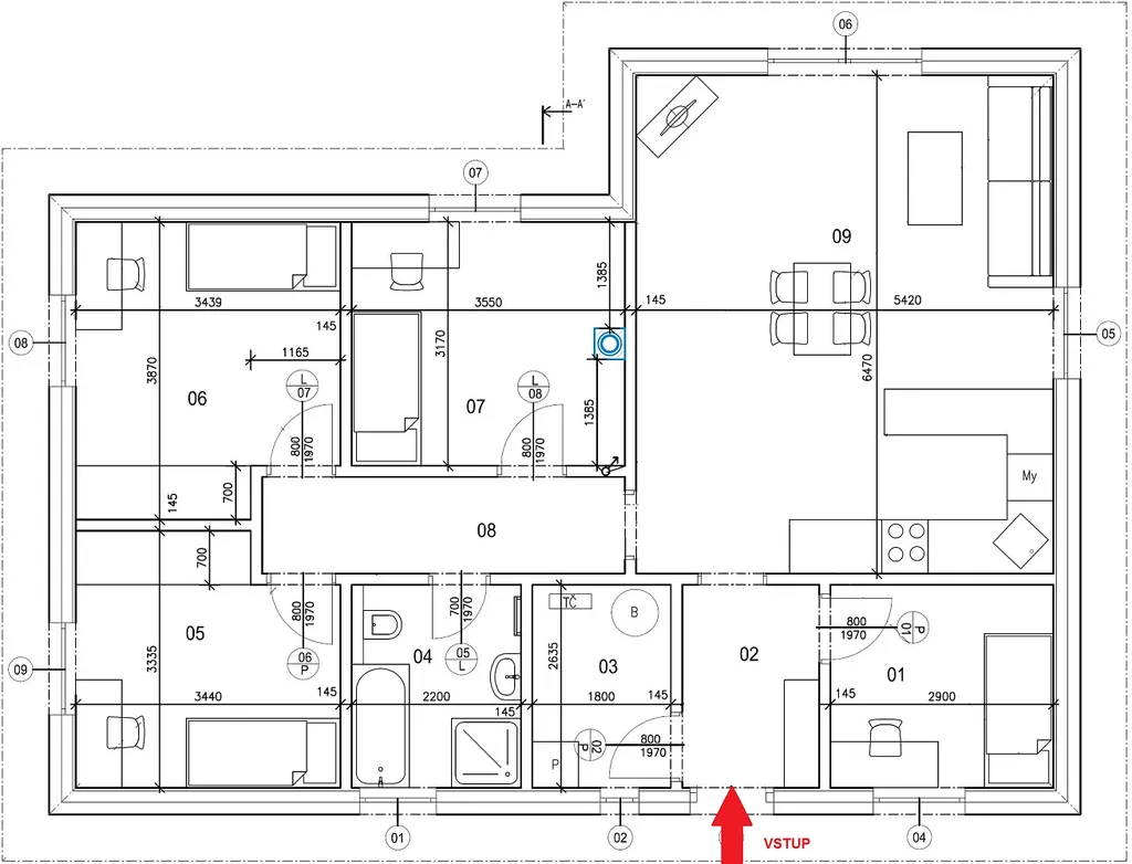
Nabízíme k prodeji stavbu přízemního rodinného domu o dispozici 5+kk ve tvaru L dokončeného v roce 2022 v klidném prostředí s výbornou dostupností do města v oblíbené části Strakonic – Dražejově. Dům je realizovaný s důrazem na pohodlí, úsporný provoz, dlouhou životnost konstrukce, bez nutnosti investic a je okamžitě obyvatelný.
Dům je řešen jako přízemní s půdou vhodnou pro uskladnění věcí. Objekt je bez podsklepení s užitnou plochou 98,3 m² a celkovou zastavěnou plochou 119,5 m². Okolní zahrada o ploše 797 m² je dostatečně veliká pro umístění herních prvků (trampolína, hrad, skluzavka, lezecká stěna …) pro děti stejně tak jako pro vytvoření dalšího posezení s přáteli u ohniště. Stavba je realizována moderním certifikovaným systémem dřevostavby Rigips s kvalitním zateplením a sendvičovými obvodovými stěnami, které zajišťují výborné tepelně – izolační vlastnosti a nízké náklady na vytápění po celý rok. Náklady na elektrickou energii spotřebovanou na topení, osvětlení a provoz všech spotřebičů jsou dlouhodobě do 5 tis/měsíc. Dům je stavebně připravený i k instalaci krbových kamen (komín). Dispozice domu odpovídá potřebám současného rodinného života – otevřený obývací prostor s plně vybavenou kuchyní s velkým pracovním ostrovem a velkými prosklenými výhledy do zahrady. Dále ložnice rodičů, dva samostatné dětské pokoje, pracovna, technická místnost a koupelna s WC. Podlahy v obytných místnostech jsou provedeny z kvalitních materiálů pro snadnou údržbu, v koupelnách a technické části je keramická dlažba. Okna a vstupní dveře jsou plastová s trojsklem a jednostranným dřevodekorem, který příjemně dotváří styl interiéru. Vytápění domu je řešeno tepelným čerpadlem vzduch – voda (cca 7 kW) s podlahovým vytápěním, což zajišťuje komfortní teplotu a velmi nízké provozní náklady. Koupelna je navíc doplněna topným tělesem. Větrání je přirozené pomocí oken. Dřevostavba je provedena z maximálně kvalitních KVH hranolů, s minerální izolací a kontaktním zateplovacím systémem – dům tak splňuje moderní standard energeticky úsporného bydlení, čemuž odpovídá zařazení objektu do klasifikační třídy C z hlediska energetické náročností budov – PENB. Valbová střecha se sklonem 25° je osazena krytinou Betonpres v břidlicově černém odstínu, přispívající k elegantnímu vzhledu domu. Fasáda je navržena ve světle béžovém tónu s tmavším soklem – kombinace působí moderně a nadčasově. Dešťová voda je zachytávaná do podzemní nádrže. Následně je využívaná k zalévání zahrady a provozu WC Stavba stojí na rovinatém pozemku v klidné části obce, s výborným příjezdem po veřejné komunikaci ve vzdálenosti 291 metrů (6 minut chůze) od zastávky MHD. Objekt je napojen na systém veřejného vodovodu a kanalizace. Místo je ideální pro rodiny s dětmi – v blízkosti je příroda, cyklostezky a ve Strakonicích kompletní občanská vybavenost (školy, školy, obchody, lékaři, služby).
Přihlášení k odběru
Nenechte si ujít nejnovější nabídky prodeje rodinných domů v Strakonicích.