Prodej rodinného domu, Brno, Zeleného, 205 m2

Zeleného, Brno, Žabovřesky

Cena na vyžádání
/za nemovitost
info v RK, včetně DPH, včetně poplatků, včetně provize, včetně právního servisu
Získejte výhodnou HYPOTÉKU Chci hypotéku

Parametry domu

AdresaZeleného, Brno, Žabovřesky
ID00014
StavbaCihlová
Stav objektuDobrý
VybavenoČástečně
Druh objektuŘadový
Lokalita objektuKlidná část obce
Užitná plocha205 m2
Zastavěná plocha112 m2
Plocha pozemku315 m2
Plocha zahrady178 m2
Třída energetické náročnostiD - Méně úsporná
Ukazatel energetické náročnosti143 kWh/m2 za rok
Elektřina230V, 400V
PlynPlynovod
OdpadVeřejná kanalizace
KomunikaceBetonová, Asfaltová
TelekomunikaceTelefon, Internet, Satelit, Kabelová televize, Kabelové rozvody
DopravaSilnice, MHD
VodaVodovod
Topné tělesoRadiátory, Krb, Klimatizace
Zdroj topeníPlynový kondenzační kotel, Krb
Zdroj teplé vodyPlynový kondenzační kotel
Garáž
Sklep
Výtah
Parkování

Origo partneři v Brně

Popis

Ve výhradním zastoupení nabízíme k prodeji prostorný rodinný dům s krásnou zahradou, s vlastní garáží a parkovacím stáním v jedné z nejžádanějších lokalit Brna - Žabovřesky, na ulici Zeleného. V klidné ulici s výbornou dostupností do centra města a kompletní občanskou vybaveností v dosahu pár minut.

Dům nabízí celkem 3 byty:
1+1 v suterénu (celkem 24,65m²)
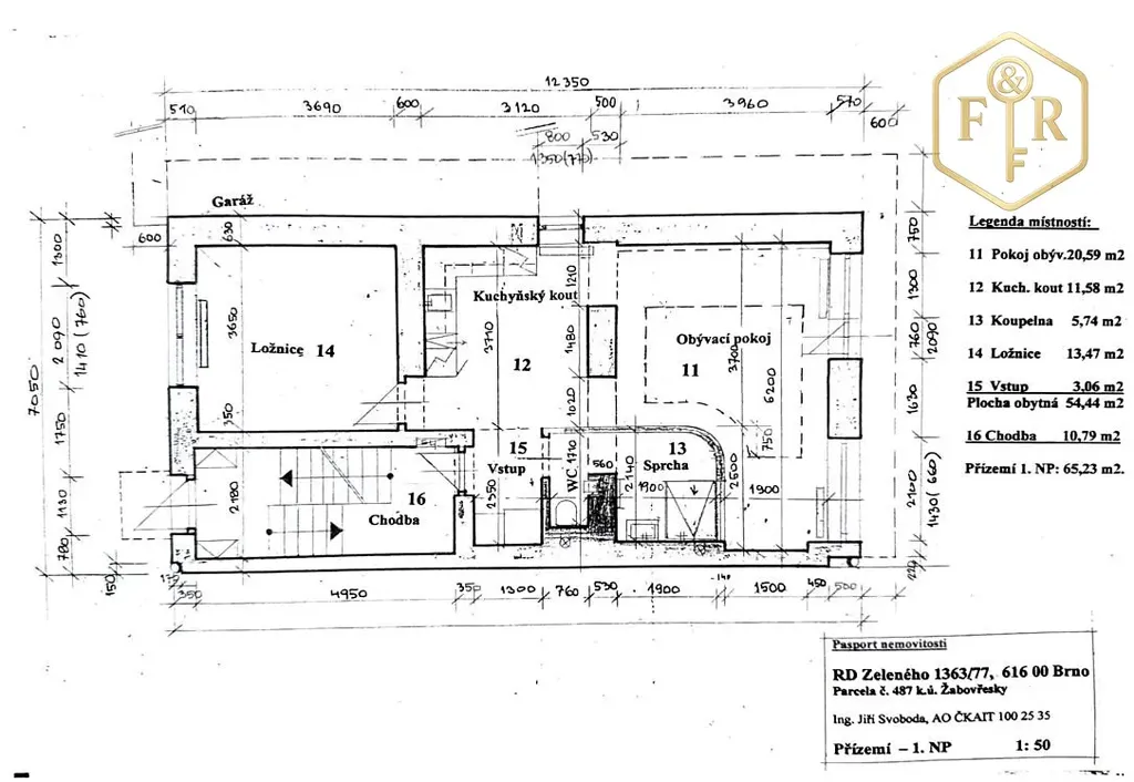
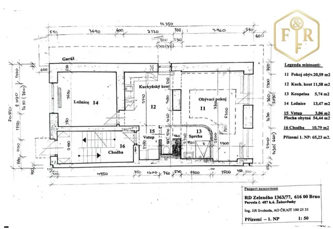
2+1 v 1.NP (celkem 54,44m²)
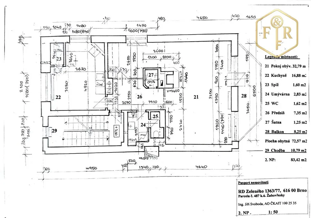
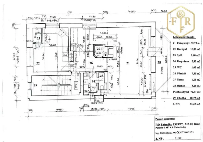
4+1 ve 2.NP a v podkroví (celkem 72,57m² + 62m²)

Celkem nabízí dům 6 pokojů, 2 koupelny, 2 kuchyně.

Možnost dvougeneračního bydlení nebo kombinace bydlení a podnikání, je v udržovaném stavu, vhodný k modernizaci podle vlastních představ či k pronájmu.

Žabovřesky patří mezi nejoblíbenější části Brna díky spojení klidného rodinného bydlení a blízkosti centra.

Perfektní pro rodiny, které chtějí bezpečné a pohodlné bydlení s veškerým komfortem.

Makléř

Máte zájem o tento dům?

Tímto, v souladu s nařízením Evropského parlamentu a Rady (EU) 2016/679, v platném znění, prohlašuji, že mi je alespoň 16 let a uděluji tak svůj souhlas se zpracováním zadaných údajů (jméno, telefon, e-mail, ip adresa) společnosti B3 Technology, s.r.o., IČ: 07330600, se sídlem Novostavby 126/23, 435 11 Lom (správce dat), za účelem předání dotazu z tohoto formuláře Vámi vybranému inzerentovi a zpětného kontaktování mé osoby. Osobní údaje bude správce zpracovávat manuálně i automaticky přímo prostřednictvím svých zaměstnanců. Informace předané tímto formulářem budou uloženy v databázi správce maximálně po dobu 10 let. Odvolání souhlasu s uložením a zpracováním poskytnutých dat lze e-mailem na info@origo-reality.cz. V případě podezření na neoprávněné použití Vámi poskytnutých údajů máte právo předat podnět k šetření Úřadu pro ochranu osobních údajů. Více informací
Chystáte se prodat nemovitost?
Pomůžeme Vám!

Přihlášení k odběru

Nenechte si ujít nejnovější nabídky prodeje rodinných domů v Brně.