Prodej bytu 2+kk, Bar, Černá Hora, 43 m2 (ID: 1922568)

Bar

144 300 €
/za nemovitost

Parametry bytu

AdresaBar
IDF16204
StavbaCihlová
Stav objektuVe výstavbě
Patro9. z 9
VybavenoČástečně
Lokalita objektuKlidná část obce
VlastnictvíOsobní
Užitná plocha43 m2
Podlahová plocha48 m2
Elektřina230V
OdpadVeřejná kanalizace
TopeníLokální elektrické
TelekomunikaceInternet
DopravaDálnice, Silnice, MHD, Autobus
VodaVodovod
Terasa
Výtah
Parkování

Origo partneři

Popis

Moderní a elegantní apartmán 2+kk o rozloze 48 m² s terasou 4 m² se nachází v osmém patře nového rezidenčního komplexu ve čtvrti Topolica, nejžádanější části města Bar. Toto místo kombinuje výhled na moře, blízkost centra a atmosféru jižního života u Jadranu. Apartmán je navržen s důrazem na komfort, moderní design a špičkové technologie.
Dispozičně nabízí praktickou předsíň, vzdušný obývací pokoj s kuchyňským koutem, samostatnou ložnici a koupelnu s kvalitními sanitárními prvky. Na terasu lze vyjít přímo z obývací části a užívat si výhledy na moře, hory a okolní krajinu.

Byt je součástí moderního komplexu Aqua Vista, který klade důraz na komfort a udržitelnost. Použité materiály a technologie splňují vysoké nároky na kvalitu i životní styl. Součástí vybavení je chytrá domácnost, multisplit klimatizace, prvotřídní dubové parkety, italská keramika, bezpečnostní dveře i okna v kombinaci dřeva a hliníku. Výjimečnou úroveň komfortu doplňuje luxusní vybavení značek Villeroy & Boch a Hansgrohe.
V budově jsou dva výtahy značky OTIS, energetickou úsporu zajišťují solární panely a promyšlená architektura středomořského stylu s prvky kamene a dřeva dotváří celkový estetický dojem.

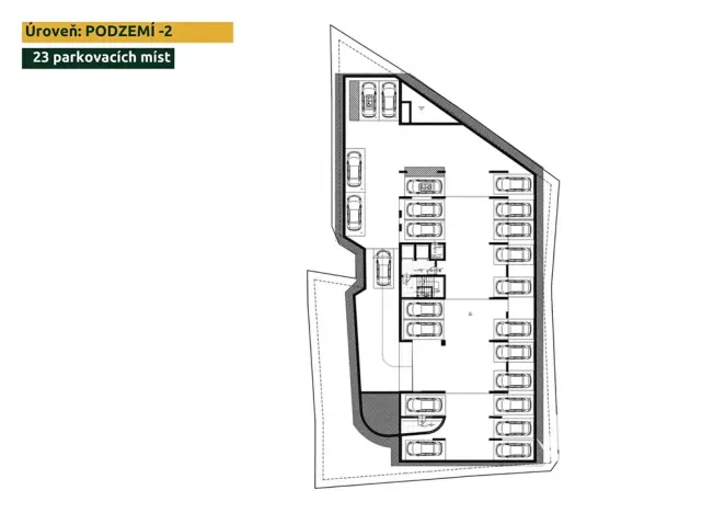
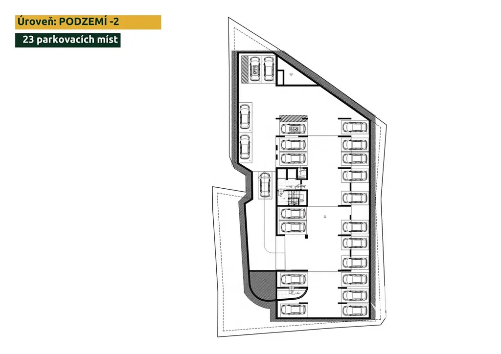
Součástí komplexu jsou dvě podzemní podlaží s celkem 58 parkovacími místy, která poskytují pohodlí i bezpečnost pro majitele i hosty. Dokončení projektu je plánováno na konec roku 2026, čímž se nabízí jedinečná příležitost zajistit si nové bydlení nebo investici ještě před dokončením výstavby.

Topolica je živá čtvrť s dokonalou infrastrukturou a skvělým napojením na město i přírodu. Jen pár kroků od apartmánu se nachází pláž s jemným štěrkem, městská promenáda, restaurace, kavárny a obchody. V blízkosti je sportovní centrum Topolica a plánovaný národní aquapark. Okolí je obklopené zelení, řekou Željeznica a horami Rumija, které vytvářejí příjemné prostředí pro aktivní i klidný život. Město Bar je dynamické přístavní město s autentickou atmosférou, historickým centrem a dlouhodobým investičním potenciálem.

Tento apartmán je skvělou volbou pro ty, kdo hledají moderní bydlení u moře, přemýšlejí o zajištění budoucnosti nebo prostě chtějí žít život v teple, světle a pohodě. Vhodný je jak pro celoroční užívání, tak jako rekreační nemovitost s vysokým potenciálem pronájmu v jedné z nejrychleji rostoucích destinací v regionu.

Makléř

Máte zájem o tento byt?

Tímto, v souladu s nařízením Evropského parlamentu a Rady (EU) 2016/679, v platném znění, prohlašuji, že mi je alespoň 16 let a uděluji tak svůj souhlas se zpracováním zadaných údajů (jméno, telefon, e-mail, ip adresa) společnosti B3 Technology, s.r.o., IČ: 07330600, se sídlem Novostavby 126/23, 435 11 Lom (správce dat), za účelem předání dotazu z tohoto formuláře Vámi vybranému inzerentovi a zpětného kontaktování mé osoby. Osobní údaje bude správce zpracovávat manuálně i automaticky přímo prostřednictvím svých zaměstnanců. Informace předané tímto formulářem budou uloženy v databázi správce maximálně po dobu 10 let. Odvolání souhlasu s uložením a zpracováním poskytnutých dat lze e-mailem na info@origo-reality.cz. V případě podezření na neoprávněné použití Vámi poskytnutých údajů máte právo předat podnět k šetření Úřadu pro ochranu osobních údajů. Více informací
Chystáte se prodat nemovitost?
Pomůžeme Vám!

Přihlášení k odběru

Nenechte si ujít nejnovější nabídky prodeje bytů 2+kk.