Prodej bytu 2+kk, Brno, Štefánikova, 60 m2

Štefánikova, Brno, Veveří

6 870 000 Kč
/za nemovitost
Hypotéka od 30 705 Kč /měs. Chci hypotéku

Parametry bytu

AdresaŠtefánikova, Brno, Veveří
StavbaSmíšená
Stav objektuNovostavba
Patro2.
VlastnictvíOsobní
Užitná plocha60 m2
Třída energetické náročnostiB - Velmi úsporná
Ukazatel energetické náročnosti203 kWh/m2 za rok

Origo partneři v Brně

Popis

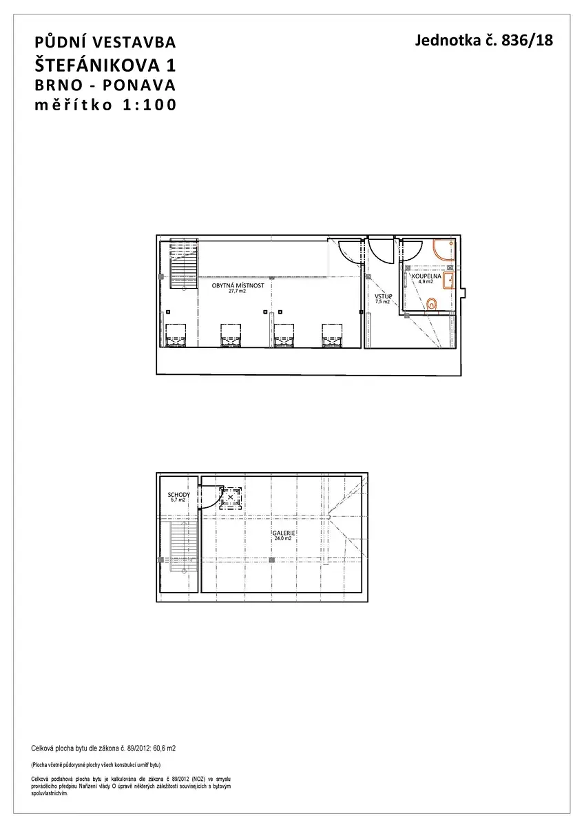
Jedná se o podkrovní byt v mansardové (černé) části střechy, což umožňuje v větší využití vnitřního prostoru než u ostatních podkrovích bytů. Šikmá stěna svírá s podlahou úhel cca 65 stupňů.

Celková plocha bytu činí 60,6 m².

Hlavní obytný prostor s kuchyňskou linkou o výměře téměř 28 m².
Z tohoto prostoru vedou schody o patro výše, kde se nachází samostatná ložnice o ploše 24 m². Ložnice má okna ve stropě a jedno malé ve stěně.
Zázemí bytu tvoří koupelna se sprchovým koutem a toaletou o výměře necelých 5 m² a vstupní hala o ploše minimálně 7 m². Za koupelnou je dostatečně velký prostor pro uložení jízdního kola.

Moderní mezonetový byt o dispozici 2+kk, dokončený v roce 2023, se nachází v podkroví historického rezidenčního paláce z 19. století.

Park Lužánky přes ulici, zastávky tramvaje 1,6 a trolejbusu 25, 26 před domem. V centru Brna jste za minutu. OD Lídl o 200 m od domu.

Jednotka je evidována v katastru nemovitostí jako byt, kolaudováno v roce 2023 jako ubytovací jednotka.

Byt je situován ve 3.NP domu bez výtahu.

Měsíční zálohy za studenou vodu, vytápění, elektřinu ve společných a úklid jsou nastaveny na 1.496,-Kč měsíčně. Je třeba ještě počítat s náklady na elektřinu v bytě a fondem oprav. Fond oprav se rozúčtování na jednotky jednou za rok, podle velikosti. V posledním vyúčtování byl tento náklad 9.000,-Kč za rok, tzn. 750,-Kč měsíčně.

Makléř

Máte zájem o tento byt?

Tímto, v souladu s nařízením Evropského parlamentu a Rady (EU) 2016/679, v platném znění, prohlašuji, že mi je alespoň 16 let a uděluji tak svůj souhlas se zpracováním zadaných údajů (jméno, telefon, e-mail, ip adresa) společnosti B3 Technology, s.r.o., IČ: 07330600, se sídlem Novostavby 126/23, 435 11 Lom (správce dat), za účelem předání dotazu z tohoto formuláře Vámi vybranému inzerentovi a zpětného kontaktování mé osoby. Osobní údaje bude správce zpracovávat manuálně i automaticky přímo prostřednictvím svých zaměstnanců. Informace předané tímto formulářem budou uloženy v databázi správce maximálně po dobu 10 let. Odvolání souhlasu s uložením a zpracováním poskytnutých dat lze e-mailem na info@origo-reality.cz. V případě podezření na neoprávněné použití Vámi poskytnutých údajů máte právo předat podnět k šetření Úřadu pro ochranu osobních údajů. Více informací
Chystáte se prodat nemovitost?
Pomůžeme Vám!

Přihlášení k odběru

Nenechte si ujít nejnovější nabídky prodeje bytů 2+kk v Brně.