Prodej rodinného domu, Těrlicko - Horní Těrlicko, Farní, 100 m2

Farní, Horní Těrlicko

9 350 000 Kč

včetně provize RK
Hypotéka od 41 789 Kč /měs. Chci hypotéku

Parametry domu

AdresaFarní, Horní Těrlicko
ID1033
StavbaCihlová
Stav objektuNovostavba
Druh objektuSamostatný
Lokalita objektuKlidná část obce
VlastnictvíOsobní
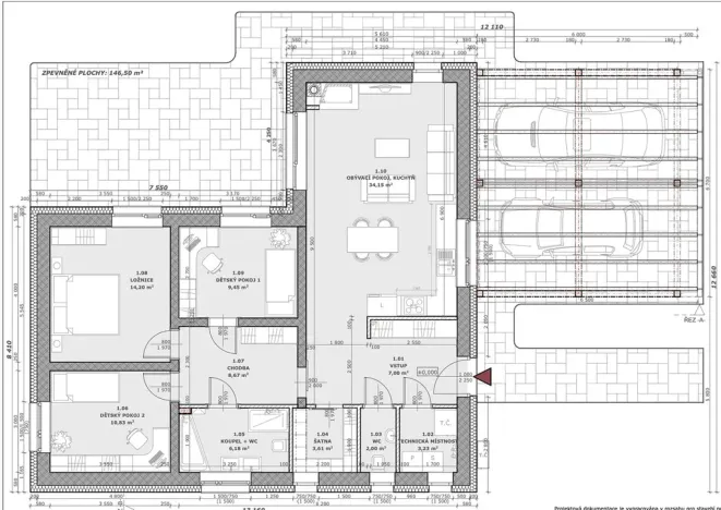
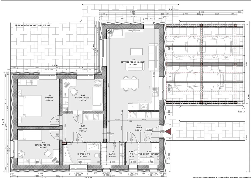
Užitná plocha100 m2
Zastavěná plocha136 m2
Plocha pozemku1466 m2
Třída energetické náročnostiB - Velmi úsporná

Origo partneři v Těrlicku

Popis

Moderní domov v harmonii s přírodou – Těrlicko, Kostelec
Představte si místo, kde se moderní architektura potkává s klidem přírody. Kde máte dostatek soukromí, prostor pro rodinu i zázemí, které odpovídá nárokům dnešního života.
Právě takový je tento zděný rodinný dům – kvalitní novostavba v Těrlicku, místní části Kostelec.

Dispozice domu je promyšlená do posledního detailu. Klidová část nabízí tři samostatné ložnice, které jsou chytře odděleny chodbou od hlavní obytné zóny. Srdcem domu je prostorný obývací pokoj propojený s kuchyní, kde přirozeně vzniká prostor pro rodinný život, setkávání s přáteli i klidné večery u krbu. Nechybí koupelna s vanou i sprchovým koutem, samostatná toaleta ani praktická technická místnost.

Dům byl navržen a realizován s mimořádným důrazem na kvalitu, funkčnost a dlouhodobý komfort. Z obytných pokojů je přímý vstup na velkorysou terasu s výhledem do okolní přírody, která se stane přirozeným prodloužením obytného prostoru.
Samozřejmostí jsou moderní technologie a detaily, které výrazně zvyšují komfort každodenního života:

bezbariérový přístup

elektrické venkovní žaluzie

příprava na kamerový systém

venkovní osvětlení domu

příprava na nabíjení elektromobilu

požární hlásič

Vytápění je řešeno tepelným čerpadlem s podlahovým vytápěním, které v kombinaci s energetickou třídou B zajišťuje nízké provozní náklady a vysoký uživatelský komfort. Atmosféru domova navíc podtrhují krbová kamna v obývacím pokoji.

Parkování je pohodlně řešeno až pro tři vozidla přímo před domem.

Dům je napojen na veřejný vodovod, elektřinu, odpad je řešen domovní ČOV.

Lokalita, která má vše
Těrlicko patří dlouhodobě mezi nejvyhledávanější lokality pro bydlení – a to nejen díky krásné přírodě, ale i možnostem aktivního odpočinku. Koupání, vodní sporty, rybaření i procházky v okolní krajině jsou zde samozřejmostí.
Zároveň oceníte výbornou dostupnost občanské vybavenosti i autobusovou zastávku vzdálenou pouhých 200 metrů, s přímým spojením do Havířova, Českého Těšína a Třince.

Tento dům není jen nemovitost.
Je to promyšlený domov pro lidi, kteří vědí, co chtějí – kvalitu, klid a dlouhodobou hodnotu.

Celková výměra pozemku: 1 466 m²
Zastavěná plocha domu: 136 m²

Makléř

Máte zájem o tento dům?

Tímto, v souladu s nařízením Evropského parlamentu a Rady (EU) 2016/679, v platném znění, prohlašuji, že mi je alespoň 16 let a uděluji tak svůj souhlas se zpracováním zadaných údajů (jméno, telefon, e-mail, ip adresa) společnosti B3 Technology, s.r.o., IČ: 07330600, se sídlem Novostavby 126/23, 435 11 Lom (správce dat), za účelem předání dotazu z tohoto formuláře Vámi vybranému inzerentovi a zpětného kontaktování mé osoby. Osobní údaje bude správce zpracovávat manuálně i automaticky přímo prostřednictvím svých zaměstnanců. Informace předané tímto formulářem budou uloženy v databázi správce maximálně po dobu 10 let. Odvolání souhlasu s uložením a zpracováním poskytnutých dat lze e-mailem na info@origo-reality.cz. V případě podezření na neoprávněné použití Vámi poskytnutých údajů máte právo předat podnět k šetření Úřadu pro ochranu osobních údajů. Více informací
Chystáte se prodat nemovitost?
Pomůžeme Vám!

Přihlášení k odběru

Nenechte si ujít nejnovější nabídky prodeje rodinných domů v Těrlicku.