Prodej rodinného domu, Hředle, 398 m2 (ID: 1920680)

Hředle

12 850 000 Kč
/za nemovitost
Hypotéka od 57 432 Kč /měs. Chci hypotéku

Parametry domu

AdresaHředle
StavbaSmíšená
Stav objektuPo rekonstrukci
Užitná plocha398 m2
Plocha pozemku1153 m2
Garáž
Sklep
Parkování

Origo partneři v Hředlích

Popis

Nabízíme k prodeji prostorný dům v klidné části obce – jen 4 km od D5 s velkou zahradou a stodolou v obci Hředle u Zdic (okres Beroun). Obec leží na okraji CHKO Křivoklátsko a díky blízké dálnici D5 (jen 4 km) má dům dobrou dostupnost Prahy i západních Čech (20 min Praha, 25 min Plzeň).

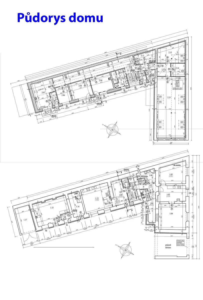
Jde o původní usedlost se dvěma nadzemními podlažími. Část domu navazuje na ulici, druhé křídlo je orientované do dvora. Součástí je i samostatná stodola v zadní části pozemku. Nemovitost prošla částečnou rekonstrukcí: nová střecha, plastová okna a vrata, nové rozvody topení, vody a elektro, zateplení střechy a stěn, nové stropy a podlahy, nové koupelny, 2 nové kuchyňské linky, nová technika, prádelna - vše ve vysokém standardu.

Podkroví:

1) zrekonstruovaná bytová jednotka 3+kk, 106 m² (ložnice, kuchyň s obývacím pokojem, 2x koupelna s WC, chodba, pokoj pro hosty, technická místnost)

2) další prostory k dokončení dle projektu s platným stavebním povolením: tři samostatné pokoje (cca 13 m², 13 m², 19 m²) se společnou koupelnou s WC (5 m²), chodba (39 m²) a další pokoj s vlastní koupelnou (22 m²),

celková podlahová plocha podkroví: 220 m².

Přízemí:

1) bytová jednotka 2+1, 86 m² (ložnice, kuchyň, pokoj, koupelna, WC, chodba, technická místnost), aktuálně v pronájmu

2) navržené společné zázemí pro podkroví dle projektu a platného stavebního povolení: jídelna (26 m²), předsíň (13 m²), chodba (6 m²), WC (2 m²), malá koupelna (2 m²)

3) možnost rozšíření o: technickou místnost (10 m²), letní kuchyň (27,5 m²), WC (2 m²) a garáž (15 m²)

Celkem podlahová plocha přízemí: 190 m².

Stodola:

zděná stodola v zadní části pozemku, aktuálně pronajata (využití dílna/sklad).

V ceně je kompletní projektová dokumentace rekonstrukce (přízemí 101 m², podkroví 78 m²) připravená k podání na stavební úřad.

Technické informace:

- vytápění radiátory: elektrokotel nebo kotel na tuhá paliva (lze kombinovat),

- odpad: aktuálně vlastní ČOV; obec plánuje výstavbu veřejné kanalizace s možností budoucího připojení.

Aktuální výnos: část domu i stodola jsou nyní pronajaté a nemovitost tak generuje pravidelný měsíční příjem; nájemní smlouvy lze po dohodě převzít nebo vypovědět.

Dům nabízí hotové bydlení v části objektu a zároveň prostor pro dokončení podle schváleného projektu. Vhodné pro větší rodinu, dvougenerační bydlení i kombinaci bydlení a podnikání / investici s okamžitým výnosem.

Makléř

Máte zájem o tento dům?

Tímto, v souladu s nařízením Evropského parlamentu a Rady (EU) 2016/679, v platném znění, prohlašuji, že mi je alespoň 16 let a uděluji tak svůj souhlas se zpracováním zadaných údajů (jméno, telefon, e-mail, ip adresa) společnosti B3 Technology, s.r.o., IČ: 07330600, se sídlem Novostavby 126/23, 435 11 Lom (správce dat), za účelem předání dotazu z tohoto formuláře Vámi vybranému inzerentovi a zpětného kontaktování mé osoby. Osobní údaje bude správce zpracovávat manuálně i automaticky přímo prostřednictvím svých zaměstnanců. Informace předané tímto formulářem budou uloženy v databázi správce maximálně po dobu 10 let. Odvolání souhlasu s uložením a zpracováním poskytnutých dat lze e-mailem na info@origo-reality.cz. V případě podezření na neoprávněné použití Vámi poskytnutých údajů máte právo předat podnět k šetření Úřadu pro ochranu osobních údajů. Více informací
Chystáte se prodat nemovitost?
Pomůžeme Vám!

Přihlášení k odběru

Nenechte si ujít nejnovější nabídky prodeje rodinných domů v Hředlích (okr. Beroun).